查看完整案例


收藏

下载
⇧
点击上方
勾勾手设计站
预计占用你90秒便可看完文章。。。。。
01-设计故事
酒店把典型的荷兰联排别墅的走廊变成了活动乐队,可以在里面搬家、住宿和睡觉。完整的重建包括一个新的地下室和一个新的四层斜屋顶。这个项目由 elida mosquera 和 jerome picard 领导,他们来自一个新的卑尔根-巴黎建筑和城市规划工作室。
这家酒店是由儿时好友泽西娅 · 洛博,弗兰顿 · 玛丽亚,于蒙 · 布劳穆勒,梦想着在繁荣的鹿特丹拥有自己独特的地位。”我们想要一个有咖啡,午餐和简单晚餐的地方。有机食品,不像其他食品,有鹿特丹产品,面向素食主义者和汉堡爱好者。”。”我们喜欢北欧设计,但我们都是在库拉岛长大的,所以颜色对我们很重要。他们补充道: “我们希望既酷,又好玩,同时色彩丰富。”。
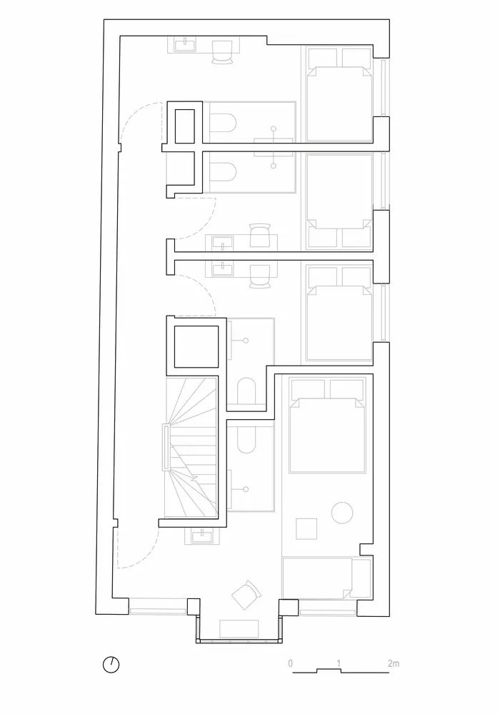
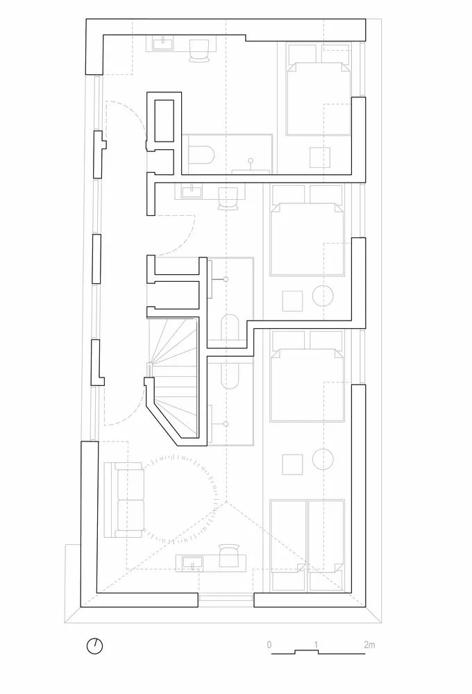
酒店有15个房间和4个不同的大小。它为单身旅行者和家庭提供了空间。一楼与鹿特丹最热闹的街道之一相连,接待处和酒吧被设计成公共厨房,在科克有一个漂浮的云层露台供座位,并为地下餐厅带来大量自然光线。
房间结合舒适和方便与定制设计,在一个最佳利用的空间。榻榻米风格的软木和竹制凉亭,与房间的明亮和通风设计相得益彰,将我们经典的市中心建筑变成了宁静的绿洲。这个房间就像一条舒服的毯子,把自己包裹起来,在城市里创造出一个属于你的宁静的角落。
02-项目图纸
2020年“勾勾手设计站”业务布局:
分享
个人住宅开发
为核心业务,业务范围主要在广佛一带。
软装设计
专注于地产项目配套服务。
餐饮品牌设计
专注于新餐饮品牌的再造。
网红民宿设计
专注于旧变新的网红民宿再造。
品牌餐饮揸FIT人
团队相应版块揸FIT人介绍
自建房揸FIT人(主业)
装修贷专员(附带)
佛山设计中心
民宿软装设计
设计品牌:吴俊
唯邑设计
以上是勾勾手设计的部分团队及成员,后期会一个个进行介绍推广及人员更新
勾勾手自媒体(
出品,设计参考,尽在勾勾手设计!
服务咨询→→→→
勾勾手自媒体矩阵列→→→→→→
勾勾手,是为解决设计者及中小型工作室、设计公司、民宿宿主对设计、建材、灯具、家具、民宿、施工等产品的落地方案问题的最终解决公司。集设计、产品开发、品牌运营、施工等一体化。
往期话题
Past Topics Click
了解更多,点击以下专辑
▽
红砖屋专辑
集装项目
专辑
德国住宅专辑
墨西哥住宅专辑
泰国住宅专辑
▽
整理中
END
客服
消息
收藏
下载
最近


















































