查看完整案例


收藏

下载
过年都现在,勾勾手设计站团队签了一个渡假村,3个民宿,一个镇的发展规划,2个别墅,一个商业街。。。。后期我计划一个季度统计一下及给大家展示部分,因为有些项目是与投资方签了保密协议的,有些设计师的朋友老问我拿案例什么的,我只能讲,可以带你去看项目现场,但我个人时间不够用,会选择性地进行设计项目相关的社交活动。。。不讲了,2天没时间写文章了,今天如何都要发个。。。
坐落在瓜达尔斯特山谷的维京,一个风景价值很高的环境,50分钟从阿利坎特,可来到VIVOOD景观酒店。
这是一个通过25个独立套房、一个餐厅、酒吧、一个全景游泳池,以及许多露台和私人室外按摩浴缸,与景观融为一体的模块化建筑群。
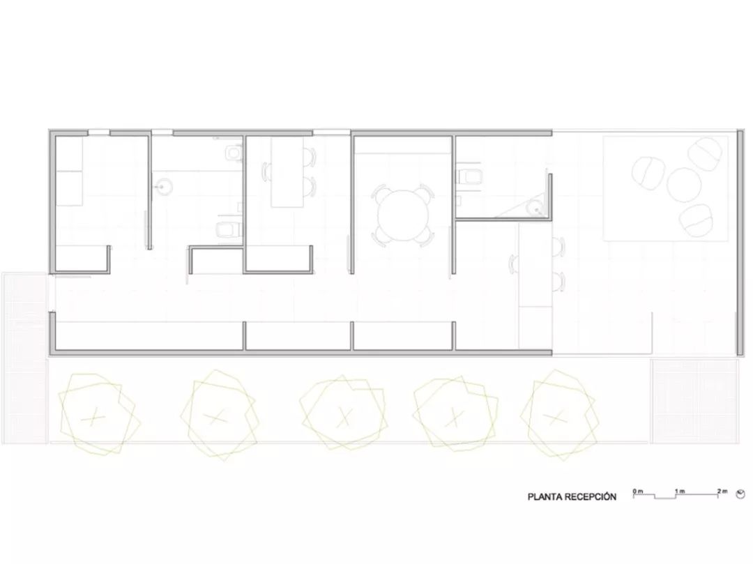
施工图纸
看过这个项目,是不是让你心动了,不想讲那么多,你有地块想投资成这样子的,找刘生谈谈吧。。。
广东地区:
(01)
勾勾手设计站
(02)家具
(03)灯具
(04)瓷砖&洁具
(05)澳佳美建材&广东岭蓝科技
(06)勾勾手科技(提供软件解决方案)
(07)粤港澳大湾区装修
(08)勾勾手一起看世界(自媒体)
勾勾手品牌:
1-移动民宿:星空泡泡屋。
2-集装箱:民宿&小公寓&共享办公室&歺饮(奶茶、小食、梅州腌面)。
3-爱碧身手工香皂社。(招商中)
4-咖啡加油站(
招商中
)
5-蜂之蜜专买店(
招商中
)
6-星星屋奶茶店
(
招商中
)
勾勾手联创品牌:
1-联合营造人:全球移动民宿综合开发商
东南亚市场:
1-泰国马云集团:贸易、民宿投资、地产中介
勾勾手,是为解决设计者及中小型工作室、设计公司、民宿宿主对设计、建材、灯具、家具、民宿、施工等产品的落地方案问题的最终解决公司。集设计、产品开发、品牌运营、施工等一体化。
客服
消息
收藏
下载
最近



















