查看完整案例


收藏

下载
我经常与一些木屋厂的老板分享见闻,好多老板还是有工艺精神与想法,可是,由于他们比较少出去比较,特别是国外的项目,大部分人都比较少做,所以当我与他们沟通国外的木屋产品标准的时候,他们都只能听我讲。。。。行业是要大家一起做起来的,所以,今天我为大家分享在美国卖到35万美元的木屋标准。。。
迷你屋的设计理念是“人类可以而且必须更可持续地生活,但不能没有风格。在华盛顿特区的微型房子的原型。
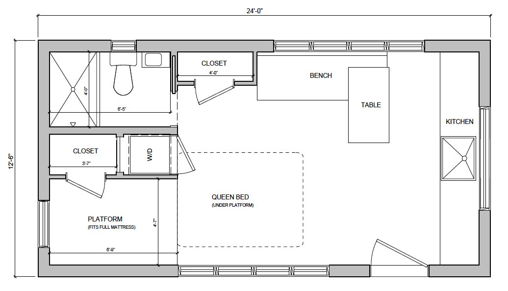
这个家没有一个阁楼式的空间,相反,床从一个平台下拉出来。任何有14000磅重的拖车都能把它拖走。
高效节能的LED照明和雨水收集系统使住宅具有可持续发展的特点。
这个家是由结构绝缘板(SIPs)包复盖柏木。它的绝缘值范围从墙26到屋顶40,地板30。SIPs是预先建造的建筑砌块一样,像一个三明治,与OSB胶合板在外面和绝缘的内部。
开放式货架提供了额外的墙壁存储。
柏树的外皮有天然的防腐剂,所以没有必要进行木材处理,木材自然老化到浅灰色色调。一个960瓦的太阳能电池阵提供了几乎所有家庭系统所需的电力,除了焚化厕所,夜间空调,和其他一些小电器。
家里的地板,改造表,办公平台,厨房柜台都是由固体,耐磨的核桃木面板。
内部的迷你家庭功能硬木地板,一张桌子,一张桌子,和柜台制成的固体核桃从当地的刨床完成了零VOC的食品级油。墙壁上刷的油漆为零。现代和优雅的不锈钢厨房厨房有两个燃烧器迪金森范围,根据定制切割板适合。
厨房从一个大窗户望出去,窗户里充满了自然光。双燃烧器可以复盖一个自定义木材切割板,以增加柜台空间。
一张由海洋硬件制成的变换桌可以移动到地板上的四个不同的金属插座,它可以作为六个人的餐桌,一个咖啡桌,一个酒吧,或一张桌子。一个水箱位于它的下方,一个阴影可以很方便地向下拉过它所面对的窗户,作为投影屏幕。
胡桃木桌子可以用作厨房的吧台,沙发的矮咖啡桌,或是可容纳6人的厨房桌子。
迷你屋有一个全铺式或大号的床,很容易存放:它可以卷起,锁好,然后卷回。一张五英尺长的桌子和一个环绕的台面构成了这个区域。
迷你设计的主要窗口直接对面的沙发与比例模拟电视或电影屏幕。当一个阴影被降低,投影机可以播放节目或电影。
浴室是一个定制的不锈钢外壳,与厨房里的不锈钢橱柜相呼应。它有一个湿浴的安排,在水槽区淋浴喷头。目前的设计特色是可以用浴帘隔开的焚化炉厕所,不过业主也可以把它换成堆肥或标准厕所。
我相信,我发这文章后,有些木屋同行会讲,大哥,35
万
美金哪!我都能做出来哪。。。。我想为大家开眼的是别人的想法,别人的细节。。。中国的人力成本,生产成本当然比美国平哪!!但我想做的是,我要做得国外市场,比老美做的要好要便宜!
广东地区:
(01)
勾勾手设计站
(02)家具
(03)灯具
(04)瓷砖&洁具
(05)澳佳美建材&广东岭蓝科技
(06)勾勾手科技(提供软件解决方案)
(07)粤港澳大湾区装修
(08)勾勾手一起看世界(自媒体)
勾勾手品牌:
1-移动民宿:星空泡泡屋。
2-集装箱:民宿&小公寓&共享办公室&歺饮(奶茶、小食、梅州腌面)。
3-爱碧身手工香皂社。(招商中)
4-咖啡加油站(
招商中
)
5-蜂之蜜专买店(
招商中
)
6-星星屋奶茶店
(
招商中
)
勾勾手联创品牌:
1-联合营造人:全球移动民宿综合开发商
东南亚市场:
1-泰国马云集团:贸易、民宿投资、地产中介
勾勾手,是为解决设计者及中小型工作室、设计公司、民宿宿主对设计、建材、灯具、家具、民宿、施工等产品的落地方案问题的最终解决公司。集设计、产品开发、品牌运营、施工等一体化。
客服
消息
收藏
下载
最近













