查看完整案例


收藏

下载
简与繁,时尚与奢华,恰到好处的生活腔调。繁华里,自然肆意生长,静谧间,生活焕新升级。
设计师深入挖掘当下都市精英阶层的群体特征与生活需求,在设计中融入现代简约和雅致轻奢风格,充分展现当代白领阶层的精神世界与生活品味。当你走进重庆泷悦华府空间时,你会发现,优雅舒居的生活序幕正缓缓拉开......
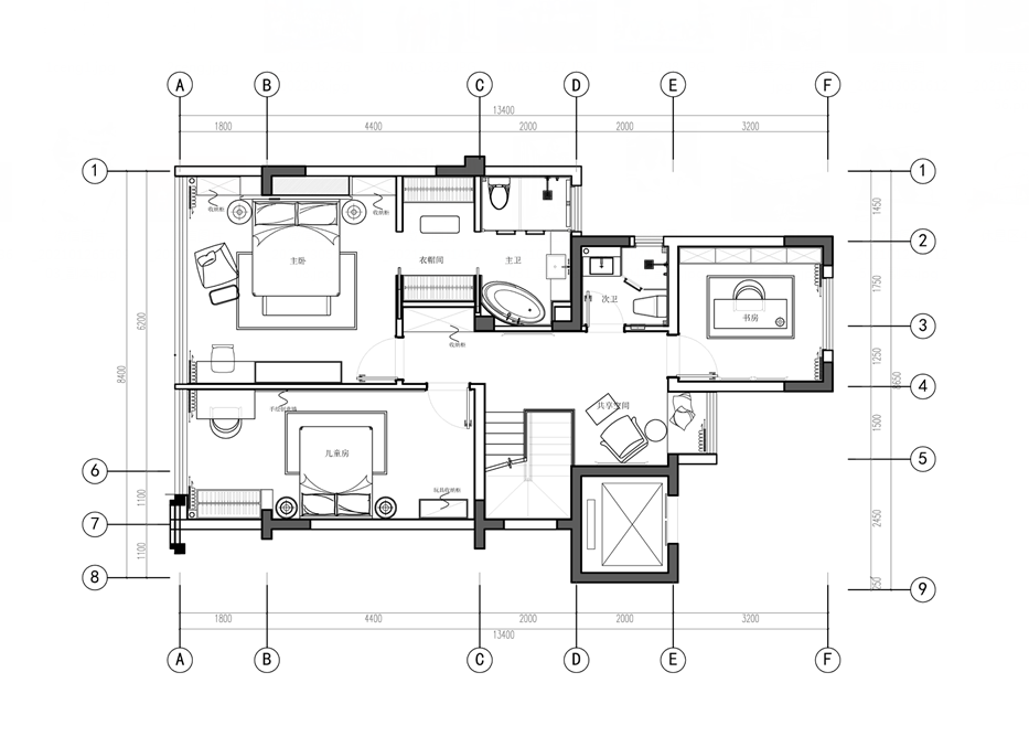
172㎡叠拼户型
本案为面积 172㎡的叠拼别墅,是一个两层三卫四室的大户型。整个空间以金属、皮革的中性色调为主,用色彩的纯度传递细腻的质感,打造现代轻奢风。软装设计在艺术中探求文化渊源,让艺术更生活、更奢华、更上品,极大地提升了整个空间的质感。
入户玄关,设置鞋柜、穿衣镜,出则端正仪容,入则抖落凡尘。黄铜镶边的穿衣镜,勾勒出流畅圆润的线条,镜面的映射突破了平面界限,扩充了空间的视觉体量。
主卧作为休息区域,营造舒适温馨的氛围是第一要义。舍弃繁杂的装饰,仅以床头吊灯及挂饰作为空间的点缀,简约的陈设中添加艺术的笔法,从简单舒适中体现生活的精致。
艺术挂饰面上天然的纹理,似水墨痕在纸面淡淡晕开,又如缥缈的云烟在山峦起伏,若隐若现,轻轻柔柔,构筑一个个好眠的夜晚。
冷静是书房的关键词,乌黑色的书桌及书柜无论何时始终营造冷静的空间氛围,保持着空间的秩序感。无需喧闹,自成气度。
女孩房以粉色作为主色调,墙面以深浅不同层次各异的色块形成花瓣造型,整个空间充满梦幻甜美的气息。兔耳朵的床头造型可爱俏皮,装饰柜及置物架上各色动物摆件陈列,在小小的房间里构造一个专属的童话天地,呵护孩子心中对奇妙乐园的向往。
效果图对比
平面图
△1F 平面图
△2F 平面图
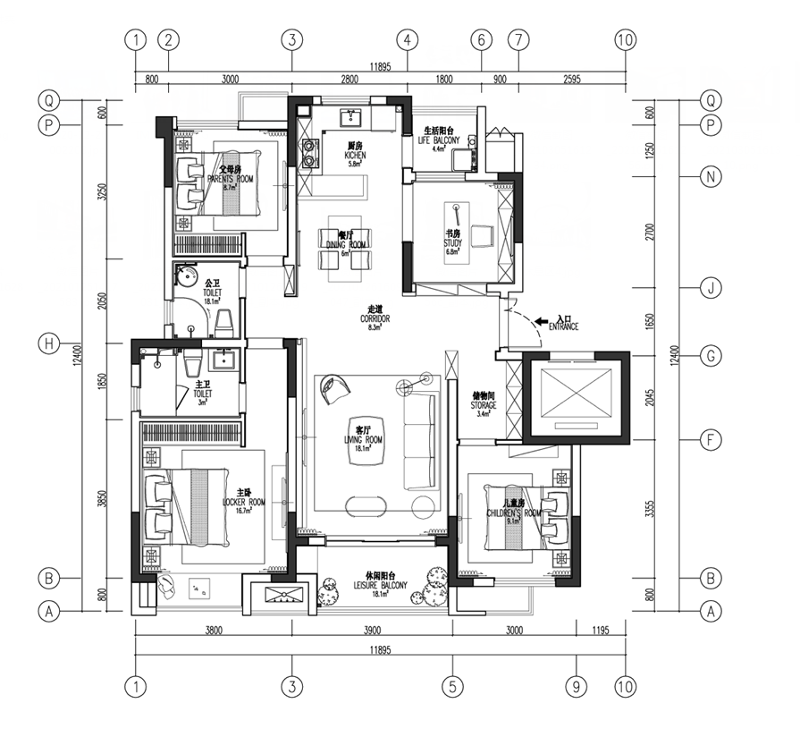
118㎡平层户型
118㎡平层大宅,简约而轻奢,设计师有机地结合了天然石材、皮革、金属等元素,通过设计的抽象转化、艺术手法的运用来建立空间的新秩序,探寻生活美学存在之真谛。
客厅的处理简洁利落,装饰的巧思却俯拾皆是。最吸睛的莫过于正前方的背景墙。运用天然石材打造而来的电视背景墙,大幅的纹理恣意纵横,磅礴恢弘的意境充盈天地间,自然天成。加以艺术花器的点缀,便轻易在轻奢与极简之间寻找到极佳的平衡点。
厨房一侧向阳,百叶窗将阳光引入室内,影影绰绰,自然、空间和光影于此巧妙融为一体。取纳自然所赋予的灵气,通过食材之间的碰撞,尽情享受温馨的餐食时光,致意当下美好生活。
卧室延续简约的设计,运用暖色调灯光及床品陈设塑造出温馨的氛围,艺术床头吊灯烘托静谧气息,精致的硬包背景与金属的融合,打造出整体优雅时尚的主卧空间氛围。
硬装空间造型简洁,吊顶空间的上升感让小空间呈现得更宽敞。咖色调主体陈设使空间沉稳安静,营造出符合老年人休息的空间。
男孩房以太空主题打造,突显孩子个性与喜好。将宇宙元素融汇贯穿于整个空间,启发人们关于遥远星河之外的遐想,引领当下生活方式的变革。
壁纸展现无垠银河与浩瀚星空,中和了硬核科技带来的坚硬感,更添几分沉静气质。整个空间其实表达了宏大叙事中的个体理想“Shoot for the moon, even if you miss, you’ll land among the star.”【追寻月之所向,即使交错而过,也将置身繁星之间】。
钢筋森林下人们压力与日俱增,结束紧张忙碌的工作后,都市精英们需要的只是一方舒适的自我空间,任时间的声音在空间流淌,任身心在松弛的状态下飘浮,尽享诗意雅致之境。
效果图对比
平面图
施工现场花絮
项目名称 | 重庆·泷悦华府样板间
项目地址 | 重庆
设计面积 | 280㎡
竣工时间 | 2021.01
甲方单位 | 电建地产
室内设计 | 香港环亚联合设计
软装落地 | 香港环亚联合设计
设计团队 | 杨志伟、黄霖汐、郭恬、巫县康
项目摄影 | 阑晔文化
-END-
环亚联合 2010 年在香港创立,2014 年于深圳设立大陆总部,后继先后成立南京分公司、广州分公司、内蒙古分公司与西安分公司。
公司致力于将艺术融入生活,邀请锦木老师担任公司的色彩顾问提供建议,致力于打造新时代美学空间,以人性化的设计、高品质的服务建筑独一无二的精神家园。
业务范围:酒店/会所/售楼处/样板间/别墅/高端住宅/商场/办公楼等室内空间设计及软装艺术陈设。
▲ 分公司负责人(以上排名不分先后)
ROUNDESIGN - 往期案例
大仟里·上河坊|汴水东流,宋风遗韵
现代科技与未来国际,打造粤港澳青年双创中心标杆
重庆佑佑宝贝儿童医院 | 我们负责把想象搬进现实
佛山合景泷景售楼处 | 高级配色与橘调雅致的融合
后浪青年都憧憬的“家”|福州中冶闽江丰汇
客服
消息
收藏
下载
最近



















































