查看完整案例


收藏

下载
DC&DK coffee位于广西柳州,是一家区别于商圈店铺的灵活趣味空间,不被定义、不拘束、不传统的格调,吸引了众多咖啡爱好者的打卡地之一。
DC&DK coffee is located in Liuzhou, Guangxi. It is a flexible and fun space different from commercial stores, with an undefined, unconstrained, and unconventional style, attracting many coffee enthusiasts to check in.
太阳破晓,金色的阳光洒满人间,世界伴着烟火气苏醒,人生万象,生活百态,繁忙都市里的我们在追寻人生的理想,闲暇的日常中,就要安然自在,顺应本心,一场邂逅,一场相约,一场惬意小聚,虽说浮生如逆旅,也应多寻些盎然之意趣。
The sun breaks at dawn, golden sunshine fills the world, and the world wakes up with smoke and fire. Life is diverse and diverse, and in busy cities, we are pursuing our ideals in life. In our leisure daily life, we should be at ease and conform to our true selves. An encounter, an appointment, a cozy gathering. Although life is like a journey in reverse, we should also find more vibrant and interesting things.
转身,觥筹间的闲适,一间弥漫着乐趣与爱意的的小店,蔓延着暖阳之意,在惬意与韵味之中,开启一日的味蕾与浪漫之旅。
Turning around, enjoying the leisurely atmosphere of drinking, a small shop filled with fun and love spreads the warmth of the sun. Amidst the comfort and charm, we embark on a day long journey of taste buds and romance.
于精巧设计下,城市广场坚硬的空间亦营造出一种人文情愫的“柔性”特质,勾起居于城中的人们记忆深处那些一饭一蔬的具体生活。城市喧嚣,在此处,亦是自然美好,平静日子里的人间烟火袅袅升起,清光淡雅日日常新,那些值得人们铭记的热烈与浪漫,在这里都可以被温柔接纳。
Under the ingenious design, the hard space of urban squares also creates a humanistic "flexibility" characteristic, evoking the memories of people living in the city of the specific life of a meal and a vegetable. The hustle and bustle of the city, here, is also a natural beauty. On peaceful days, the smoke and flames of the human world rise, and the light and elegance are fresh every day. The warmth and romance that are worth remembering can be gently accepted here.
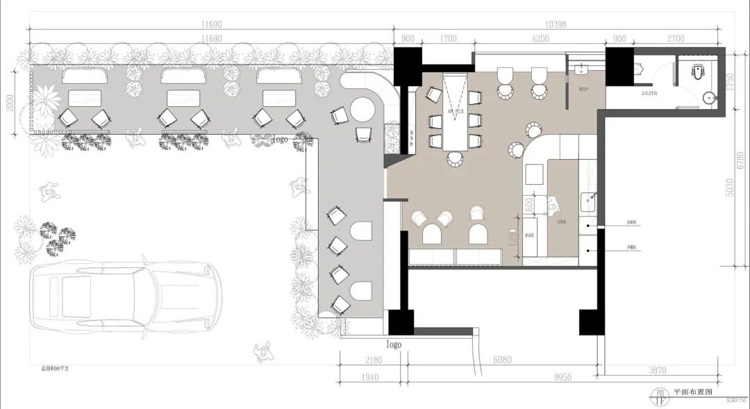
∇ 平面图
项目名称 / DC&DK
项目地址 / 广西 柳州
主创团队 / CC DESIGN
完工时间 / 2022
项目类型 / 设计+施工
RECOMMEND
往|期|精|选
More About Information
崔剑霏设计事务所
CC-DESIGN
广西柳州市文昌路石尚1966文化艺术园区3栋111号 | 地址
客服
消息
收藏
下载
最近














