查看完整案例


收藏

下载
——每一套全案,都是私人定制。
曾子曰:孝子之养老也,乐其心,不违其志,乐其耳目,安其寝处,以其饮食,忠养之。
融,寓意美好。正如古人所言,如何打造一个愉悦适老的融合美好空间,老有所养,内心丰盈?
本套全案设计案例根据业主居住需求,我们给出了令其满意的一份答卷,亦满足了业主的生活方式。
——融·星杰全案设计团队
项 目 概 览
项 目 名 称|钱 隆 山 庄
项 目 面 积|580㎡(改造前 370㎡)
庭 院 面 积|800㎡
项 目 风 格|美 式
项 目 类 型|独 栋 别 墅
项 目 设 计|周 华 明
项 目 经 理|梅 雄
主 要 用 材|米洛西大理石、极美惠整木、汉斯格雅卫浴、唯宝卫浴等
项 目 背 景
本案项目用地为业主的宅基地,设计师将其推倒,重建新宅。原先房屋面积 370m²,扩建改造后 580m²,设计后满足业主生活习惯,结构空间视觉上彰显大宅风范。
业主为幸福美满的一家三口,男主人是上市集团高管,女主人年轻时是一位英语老师,夫妻俩对“养老之家”的想法是即休闲安逸能符合自己的审美观念又希望有年轻人的前卫时尚感。
别墅项目改造过程实录
+
老宅变新貌
原始老宅外立面
外立面建筑效果表现
外立面建筑实景
拆墙阶段
建造阶段
全案设计团队与业主沟通交流中
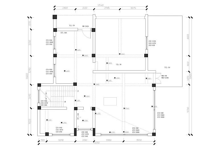
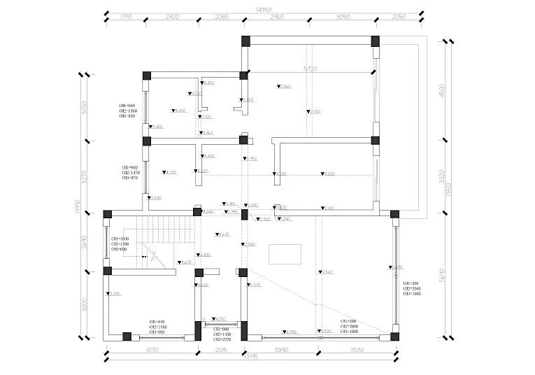
原始图
▲一楼
▲二楼
▲三楼
原来的格局不大,不理想,为传统美式风格
+
彩平图
▲一 楼
▲二楼
▲三楼
· 东进门改成了南进门,布局空间充分利用,加了顶楼露台,视野效果更佳。
· 改成喜欢的时尚美式风格,跟大庭院结合,改造成养老境地。
+ 泥木阶段
水电阶段
油漆阶段
+ 整木
安装阶段
竣工阶段
业 主 心 声
女:
感谢上海星杰宁波分公司今天来我们家举行竣工仪式。我们跟星杰从相识再到相知最后到相爱,真的很有缘分。我们相识于 2018 年威斯汀酒店,当时他们在开一个现场发布会,那个时候遇到了周华明老师,很幸运遇见他。然后经过一段时间的协商与合作,最后设计出这么一份完美的家装设计,以上是我们的相识;相知是我们装修了 3 年多的时间,这 3 年多相互之间一直是知己知彼,同时也感谢我们的梅雄项目经理,我们一直在跟他交流沟通,感谢他对我提出的要求都不厌其烦的满足;那么最后说到为什么是相爱呢?这个工程结束了展现出来的可以说是一幅美好的画卷,所以我想我们是爱上了星杰公司,也爱上了我们的设计师周华明项目经理梅雄,这是我们的相识相知相爱,希望永远永远永远,谢谢。
男:
业主满意度佳
实 景 落 地
▼效果深入落地 实景高度还原
▲客厅-效果图
▲客厅-实景照
▲外立面-效果图
▲外立面-实景图
Life aesthetics
身着旗袍的婀娜女子、西装笔挺的优雅绅士,在留声机的悠扬乐声中,舞动出一曲曼妙的华尔兹,旋律之中流露出老上海的格调与品味。空间中沉稳优雅的老上海气质,神秘又低调,还有浓浓的文人趣味和一丝丝女性的阴柔之美。
引入眼帘的岁月沉淀倾城色-北美樱桃木,是一种赋有灵性的华丽材质。它如美酒般,在岁月的流逝中将变得越来越香醇。
带着绣花的纱幔窗帘静默地搁置在客厅里,流露出一分低调的雍容。而吊顶上,华丽中又带着一种执拗,整个空间弥漫着老上海十里洋场奢靡而优雅的韵味。
放上几张经典的音乐在留声机里,提升主人品味的同时,也陶冶了艺术情操。
餐厅里,尽显明亮感,像是一场光与影的曼妙华尔兹。华贵炫美的水晶灯倾泻而下,散发出点点光影,像是一个个顽皮的小精灵试图唤醒沉睡的空间。
休闲室、棋牌室、茶室、影音室,更让人有历久弥新之感。陶冶身心、增进友谊、聊天交流、丰盈富足,在怀旧中体味老上海的风情,在娱乐中增添浪漫别致的情怀。
丝绒材质的高贵布艺,真丝刺绣的背景墙,则为各个空间带来了妩媚妖娆的气息。
随处可见的落地窗帘,垂坠感极强,垂帘薄幔间充满华贵的风情,如同一场精彩歌剧正在上演。
暗香浮动的装饰物与浓郁的纯色调在书房空间里透出一派华美个性。
这日显深邃的纹理,每一段线条都是岁月的烙印、思念的见证,“与你一起慢慢变老”的感觉一直都在。
一杯咖啡、一杯下午茶、一首留声机放的经典老歌,悠闲安静地度过一段美好的时光。
▲以上内容均属星杰作品,盗版必究
BOUT DESIGNER
关 于 设 计 师
本案设计师:周华明
设计理念:
空间因设计而改变
荣誉资质:
从事室内设计 20 年
高级住宅室内设计师
进修于意大利米兰理工学院
上海室内装饰行业协会会员
ICIAD 国际室内设计师协会专业会员
©与世界知名华人设计师梁景华、何宗宪老师合影留念
获 2020 第八届国际空间设计大奖 ID+G 金创意奖“创新奖”
荣获 2020 年创新中国空间艺术大赛作品“金奖”
荣获 2018 年度星杰装饰集团年度设计师排名第五
荣获 2017 年度星杰装饰集团年度设计师排名第一
荣获 2017 年青年室内设计年度别墅豪宅大奖
荣获 2016 年度星杰装饰集团年度设计师排名第五
荣获 2016 年“喜舍杯”年度全国十佳作品
荣获 2015 年度国际空间设计大奖艾特奖、最佳别墅设计入围奖
荣获 2014 年星杰装饰集团年度“个人软装产值第一名”
荣获 2014 年星杰装饰集团年度“董事长特别嘉奖”
荣获 2013 第四届筑巢入围奖
BOUT MANAGER
关 于 项 目 经 理
本 案 项 目 经 理:梅 雄
服务工地:钓渔台、江山万里、钱隆山庄、维拉小镇、卡纳湖谷、湖山一品、九唐二期、钱湖悦府、莱茵堡花园、青林湾、龙湖艳澜海岸、白沙湾玫瑰园、九龙湖畔观澜轩别墅大宅等
荣誉资质:星杰金牌项目经理
项目管理经验:15 年
客服
消息
收藏
下载
最近























































































