查看完整案例


收藏

下载
房子是什么?家是什么?我们应该怎么去规划一个房子?应该怎么去规划家?家应该具备哪些特质?
我们在规划的时候都习惯通过建筑去思考这个房子的本质,思考它本身存在哪些张力,应该怎么去释放它的张力。又该如何重新去梳理属于这个建筑的秩序,之后再去深入设计。
材料堆砌只不过是满足了短暂的视觉刺激,更应该思考的是:空间去除装饰部分之后它又还剩下什么?
项目概况 ▽
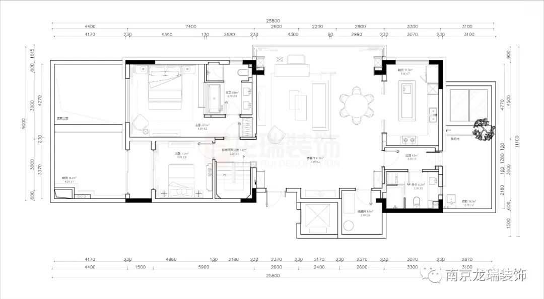
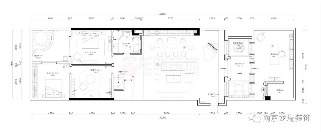
项目地址:金鼎湾
·状元府
项目面积:
450
平米
设计团队:吕孝德
设计风格:日式+新中式
项目施工:南京龙瑞装饰设计工程有限公司
【
一层平面布局图
】
【
夹层平面布局图
】
【 负
一层平面布局图
】
情感
➤➤
简单的语言阐述意境,希望能给现代人一种静谧的生活空间,身处繁华都市太久,便渴望一丝静谧的身心归处。
阳光、茶香、听风、听雨,你应该享有这种姿态,生活的诗意而满足。
生命的华美,就像一段欢愉生活嵌在素朴而具有优美旋律的歌词里一样。
艺术是一种创造,要化实为虚,把客观真实化为主观的表现。
场景
➤
➤
本案采用了现代的设计语言来表达非同寻常的意境,用新中式风格和日式风格相结合打造出浓浓禅意的家居空间,隐去传统中式繁杂的设计表现,用减法来表达东方元素。
每个空间相互之间存在某些隔断,又仿佛能看穿。停留在某一空间却又按捺不住对另外空间的遐想......
空间中有明显的区域划分,却又能在气场中无形地交流。此刻我们虽不在同一空间相处,但我却能感觉到你的存在,你亦能感觉我,仿佛无时无刻你都在我身边囔囔私语。
色彩
➤
➤
整体风格统一,纯净的白墙,温润的原木,天然的纹理,简单的设计,让人倍感宁静。
浅色柔和色调的家通透明朗,在视觉上有舒缓的效果。
卧室是一种日式的味道,清爽的色彩搭配贯穿整个房间,恬静宜人。
我们追逐的光已渐渐隐去,夜幕悄然降临,次日它又将以崭新的面貌出现在我们的视觉、嗅觉、听觉之中。
相关案例分享
【 起航篇 】—— 状元府,我们来了
【
邂逅篇
】——
邂逅状元府175㎡业主,故事将从这里开始.....
【
邂逅篇二
】——
不期而遇的美好,让人心动不已
【
结缘篇
】——
人生四喜之他乡遇故知
▼
点击
<阅读原文>
查看本套作品全景设计图
客服
消息
收藏
下载
最近

























