查看完整案例


收藏

下载
家是幸福感的主要来源,而多数人的家,却变成了物质的堆砌,将灵魂挤出了门外,失去了家的本质。今天,就与星杰的资深设计师武延玲老师一起顺着家的情感脉络,看到家的灵魂本质。
这套案例的业主是一对高知夫妇,多年海外游历经验与自身的文化修养让他们更重视精神生活领域的需求。初看这套房子的整体设计风格时,你根本不会想到业主夫妇已是退休年龄。正是通过设计师对整体空间做出的合理功能性规划和全局把控,以不一样的风格设计,打造了一个温馨舒适的家,一个心灵栖息地、一个爱的归宿。
0
1
情感共鸣,构思家的灵感
“只有自己热爱生活,发现日常生活不经意的美,才能获得设计灵感,给业主带来不一样的设计体验。”设计师武延玲认为,“设计也是直接诉诸于人的情感体验,这种情感体验是以美感体验为核心。在室内设计中如何表达人们的情感需求也是室内设计师的重要课题。”
早在交房前一年武老师与同样热爱生活的业主夫妇就一见如故,此后彼此用了半年的时间来仔细沟通空间布局、尺寸定位和色彩搭配。武延玲坦言很欣慰自己是一位女性,天生心思细腻和对色彩的敏感度,对生活追求完美,能让设计呈现更多的温馨质感,为业主缔造更有品质的生活空间。
男主人是机械设计方面的高级教授,对设计细节和尺寸要求非常精细,女主人是一位极富生活情趣的老师,有着丰富的兴趣爱好。他们或是为展现自身情趣,或是为回归生活的本质,都对于这个用来养老的新家寄托无限的希望,因此设计师武延玲将情感需求作为对这套房子设计的归宿点,营造出了一种关注人情感本身的意境表达。
细看整套房子内的设计,材质选择、色彩搭配……每一个小细节都透露出设计师对于美感的把控。“居家就是以人为中心的,我的设计就是希望能给业主的居家生活带来一些情感和感动。 能与业主进行沟通交流,这个过程是蛮享受的。”
0
2
物品完美搭配 让空间充满温暖
“家是每一个人的生活容器,设计就是为每个人将这容器打造成最适合的样子。”武老师说,“做设计前先看材料,把所有软装落实好后再最终确定我们全案设计,我希望客户在和我们签合同时候,是能够明确知道未来的家是什么样的,家中地板什么颜色,沙发什么式样等等都能在我的设计方案里呈现出来。”
整屋的色彩女主人有自己构想,设计过程中为了确定一个材质的颜色,他们也会花大量的时间来沟通。虽然最终把整体色彩确定下来沟通了一个很长时间,但出来的整体效果与构想几乎毫无偏差,完美呈现了这家该有的样子。
地下室采用现代简约风格,米色、灰色、深咖色的搭配非常大气。五米多高的置物柜与开放式影音厅的电视背景墙相融合,摆满了业主夫妇从各地带回来的纪念品。一把橙咖色座椅成为了空间内的焦点。
一层开放式客厅与餐厅相连,摩洛哥风情的柜子与圆镜带来了复古的时髦意味,温暖的壁炉也是设计师亲自挑选。柜子里放置了业主夫妇的心爱之物,起到了很好的展示与收纳作用。
在常规布局上,用动和静来区分,动态区域里使用一些跳跃的色彩会让这个空间更有活力。“因为空间的物品大都是没有生命,没有感性的。我们这些房子设计,不能只是通过一些好的物件来展示,还要将你的爱好、生活习惯也融入进去,那样一个空间才会富有温度,而不仅仅是冷冰冰的物件摆放。”
0
3
细节处理,满足家的需要
室内设计的核心服务是“人”,但还有另外一个关键词,就是“家”,“创造功能合理、舒适优美、满足人们物质和精神生活需要的室内环境”是武延玲老师给家下的定义,是家的灵魂所在。
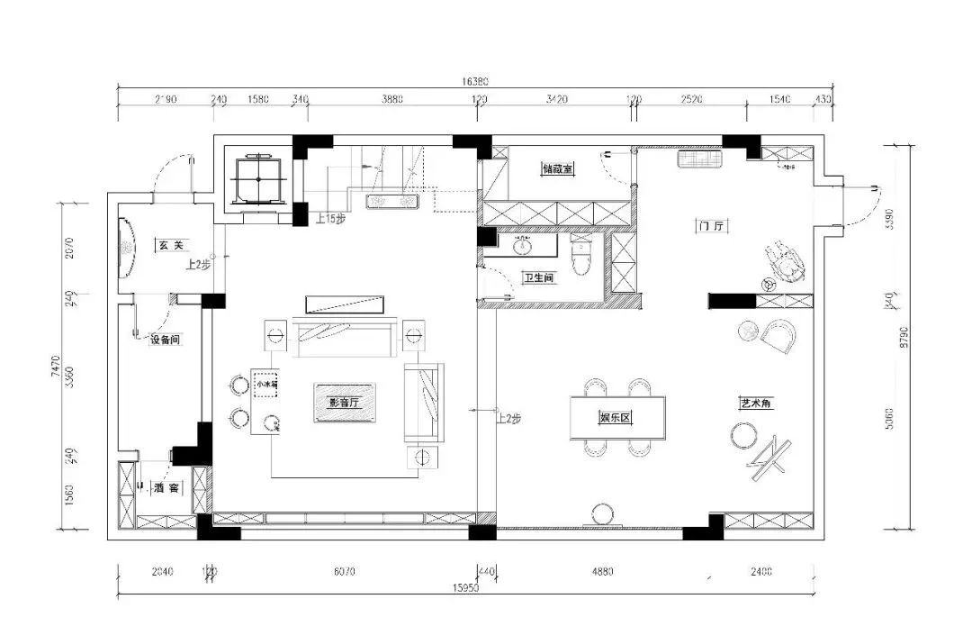
▲地下层
地下层是业主夫妇的休闲娱乐区,原先的门厅被改造打通,显得更为宽敞,后方的储物室是设计师为了方便业主夫妇将出行的物品如雨伞、自行车等摆放在这里而特别设计的,提高了生活的便利性。
艺术角现在作为画室是女主人独享的兴趣空间,是武延玲特别用来“留白”的区域,它随着兴趣的变化可以随心所欲的调整用途开放式影音室地面被抬高,打造出分明的层次感。
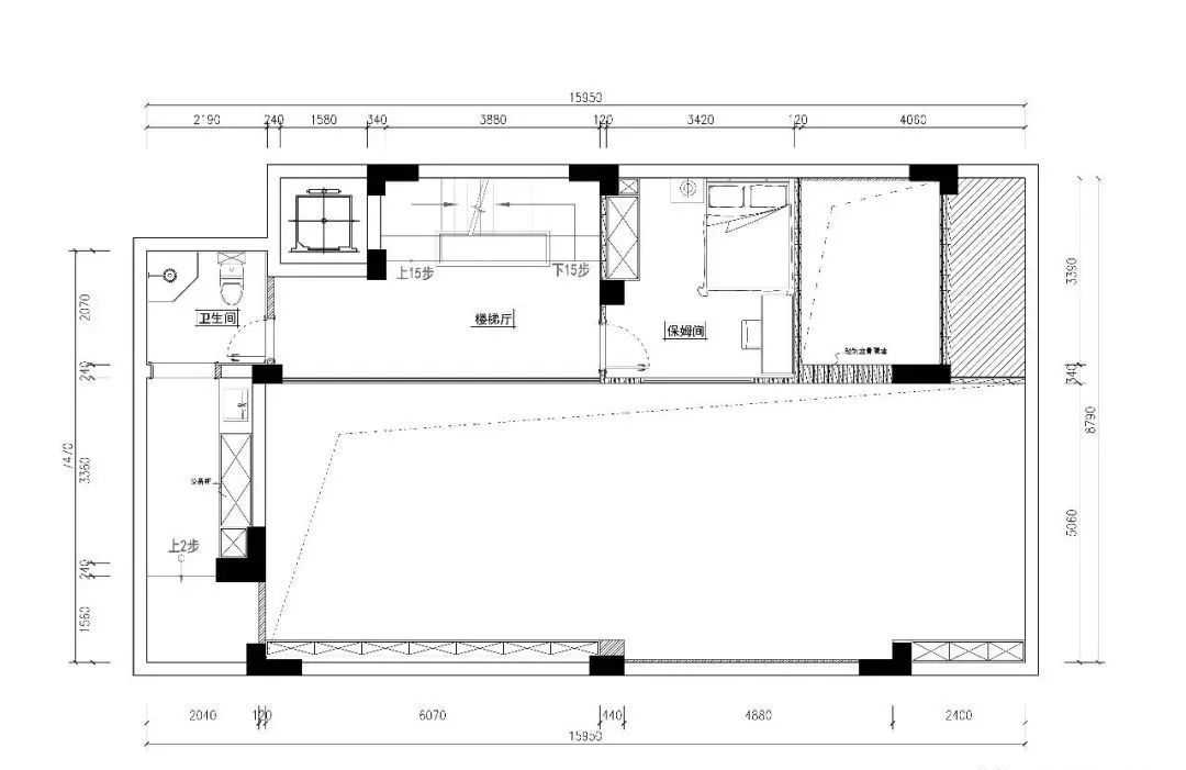
▲地下室夹层
武老师了解到,别墅虽然只有业主夫妇两人居住,女儿偶尔回来小住,但有一位住家保姆需要有个人的休息空间。因此利用层高的优势设置了一个夹层,解决了保姆房的需求问题,同时形成了一个上下的对话区。
楼梯被改造调整,让动线更为合理,同时扩大了使用空间。简约透明玻璃护栏,让整体的空间感更强,显得更为通透。
▲一层
一层入户门厅处同样安排了一个储物柜,方面业主夫妇晚间出外散步换鞋。整个开放式空间不管从材质还是色彩搭配上都非常的巧妙。
考虑到通透敞亮和窗外风景,武老师将两只矮凳放置在窗边,视觉上更为通透。窗帘、沙发、地毯在色彩上相互呼应,整体感非常强。蓝色与黄色的撞色,带来了活力。
看到客厅里没有放电视,我感到很奇怪,武老师解释说:“我觉得家是有很多因素组成的,除了个人以外,还有很多的环境去营造,比如说一个客厅、一个餐厅,它是怎样让家人一起共享?我们往往回家后都会先进自己的房间,如果在客厅还是看电视的话,说的话也会相应减少。所以我希望通过这样的设计,给业主多营造一些家庭氛围,让他们在公共空间的时间多一点,有更多的沟通时间。”
餐厅的定制餐桌非常的简约,线条感十足。一把蓝色的餐椅与客厅的蓝色沙发相辉映,随处都能感受到家是一个整体,彼此都有关联性。
男主人独立使用的书房风格硬朗,极其符合他的个性。
与书房相连有一个衣帽间用来储物,未来如果书房调整成客房,也可以起到一个套房的作用。
▲二层
二层休息区,由主卧、女儿房和客房三个套间组成。考虑到女儿不常回家,武老师在空间分割布局上,考虑给夫妇俩的主卧套房更多的空间,满足女主人需要一个大型衣帽间的需求。
这间敞开的步入式衣帽间与主卧空间相连,面积非常大,墙面上还设置了透明玻璃展示架,满足女主人想要把心爱的包包放在里面展示的需求。灯带运用让这个展示区域更为显眼。
武老师描述道,女主人是一位生活得非常精致的优雅女性,家中的摆设如同拍摄广告片一样,这也使得同样追求细节的她更有动力设计好这套房子。
“我认为做设计师不仅仅是在做设计,可能要更多了解他的人生经历。而我们每次遇到的业主都不一样,所以每次都在挑战,他会给你一种创新的感受,并促使我们不断的学习。”武老师同样延续着星杰的一贯理念,“一个设计作品要完美的落地,离不开施工与材料。设计做得再好,也需要好的工艺及材料的配合,才能呈现出最佳的效果。在这个过程中,对于细节的沟通是非常重要的。”
在设计中,武老师也非常注重居室空间的布局与使用功能的完美结合,摒弃掉过多繁杂的不必要的装饰,使得空间的可用率达到最大化,尽可能的留白,给业主往后的生活更多可能。
0
4
整体把控,交出一个完美的家
“为什么有些业主入住后发现实景和设计有明显的落差呢?一个是设计师对好的作品的坚持,另外是业主对设计师的信任度。没有最好,只有适不适合,适合业主的生活状态和生活习惯,未来她怎么在家中使用,我们给业主打造一个什么样的生活场景,都是需要考虑的。设计是综合的,不单是表面上的美丽,生活实用和情感联系才是它的本质。”
如何给业主打造一个适合他们的生活空间?是用专业眼光去看待,用专业的知识去说服,用专业的方式去把控。“作为设计师不是一味来满足业主的需求,我希望通过设计让他们生活在这个空间里更加舒适,所以会帮他们做更加合理的规划。即便有分歧,也会耐心沟通。”
▲设计师(左)与业主夫妻合影
“我是一个落地的设计师,不会去做一些脱离实际的东西,空间格局,产品落地了效果才能出来,有些设计师所做的设计里很多产品要么买不到要么去定制,花费巨额。但作为一个合格的设计师来说,预算还是需要控制的,我要让业主用最合适的花费住最适合的房子。”
0
5
卷尾语
正是因为这份对于“专业专心专注”的执着和坚持,让设计师武延玲守住初心,一次次完美的交出答卷,业主成为了她的朋友,对于她的作品非常的满意。设计在于服务于人,舒适最好,和谐最美,真正的做到“以人为本”,深度挖局客户的物质和情感需求,不仅会使业主感受到居住环境的舒适,还会使其感受到设计师对他们精神上的体贴和关怀,最后,顺着情感的脉络,得到了心目中理想的家。
关于居所的美好想象,
在这里都能找到专属设计方案。
客服
消息
收藏
下载
最近




























