查看完整案例


收藏

下载
简约装修设计所呈现的是剔除一切繁琐的设计元素,用最直白的装饰语言体现空间和家具所营造的氛围,进而赋予空间以个性和宁静。它不需要多余的空间隔断,也不用过多的饰品去“庇护”,注重细节的精巧,大胆而灵活,简约不是简单。今天要介绍的这套 35㎡超小户型案例,就将简洁与实用结合利用到了极致。
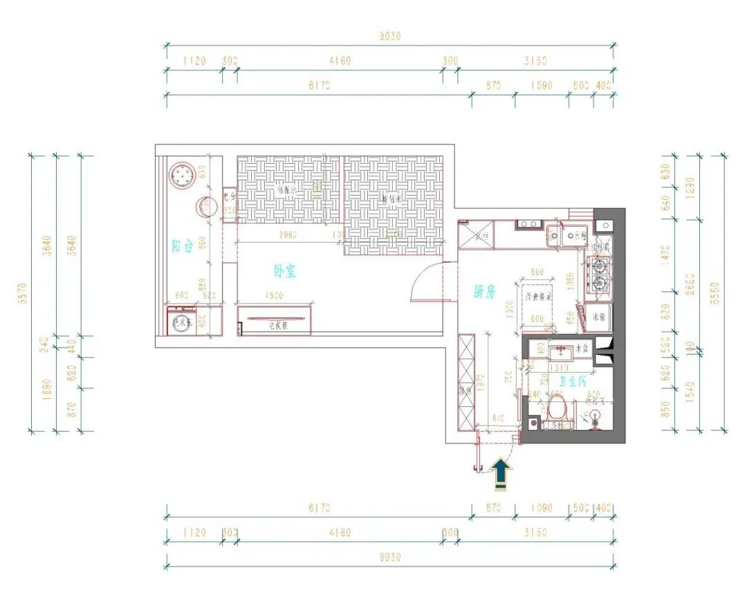
平面布置图
设计说明:本案
原户型为一室一厨一卫,几乎都是承重墙,没有可拆除的空间。整体房间较小,却在外有一个小阳台,但空间利用率较低,唯一的优势是房屋采光很好。设计师顺着墙面布置,将空间利用最大化。
01 走廊
进门就是走廊,走廊墙面简单干净,使得空间看上去特别通透,对于小空间来说,可以很好的达到空间扩容的效果,搭配一些深色的家具也使空间色彩达到平衡,不会看上去十分空旷。
02客厅
客厅以简约木制家具为主,没有过多繁杂的造型,给公共空间营造一个清新自然的环境。受小户型的限制,收纳是设计中的重点,整排的收纳柜打造的电视背景墙,搭配带收纳功能的沙发,既起到了收纳作用,也可作为客人留宿时的招待之处。03 卧室
说是卧室,其实和客厅位于同一空间,简洁的黑白灰床品搭配床头灯和吊灯,起到一定烘托氛围的作用。不需要过多装饰,仅有的几张个性的装饰画取悦自己,随意反而舒适很多。
04厨房
厨房设计简洁、干练,白色的墙面与橱柜,将现代与自然元素相结合,让家中呈现一种自然的舒适、干净之美。
05卫生间
卫生间使用浅色的瓷砖,让整个卫生间有一种柔和的温暖感,干湿分离的设计,配上浅色瓷砖,看起来非常的明亮洁净。
06关于设计师
玉泉营一部设计师——王顺雨
从业时间:13 年
设计理念:人为生活而设计,设计为生活而存在
个人荣誉:进修于东京艺术大学环境艺术系、北京市装饰协会会员、中国建筑装饰协会室内高级建筑师、北京市建筑装饰协会室内中级建筑师、进修于清华美院环境艺术设计专业
代表案例:清芷园、孔雀城、远洋自然、陶然亭一瓶、朱雀门、陶然北岸、怡海花园、原生墅、西山壹号院、纳帕溪谷、昆仑域、玺萌公馆、世纪城、枫丹壹号等等。
喜欢这个家吗?那就三连吧!
▼戳阅读原文快速获取装修报价!
客服
消息
收藏
下载
最近









