查看完整案例


收藏

下载
Bodega, Red Hill, Australia
设计师:Jost Architects
面积:638 m²
年份:2019
摄影:Derek Swalwell
提供协助:GRAPHISOFT, Australian Sustainable Hardwoods (ASH), Fossil Vintage Lighting, In2ply, Lumion, Lysaght, Peninsula Recycled timber
工程师:Tebbs Engineering
景观设计:Colin Hyett - Colin Hyett Design
Gerente De Proyecto:John Rowlands
Constructor:Sunset Constructions
Decoración De Interiores Y Mobiliario:Rex Doesburg – The History Vintage Antiques & client
设计师描述 | Designer description:
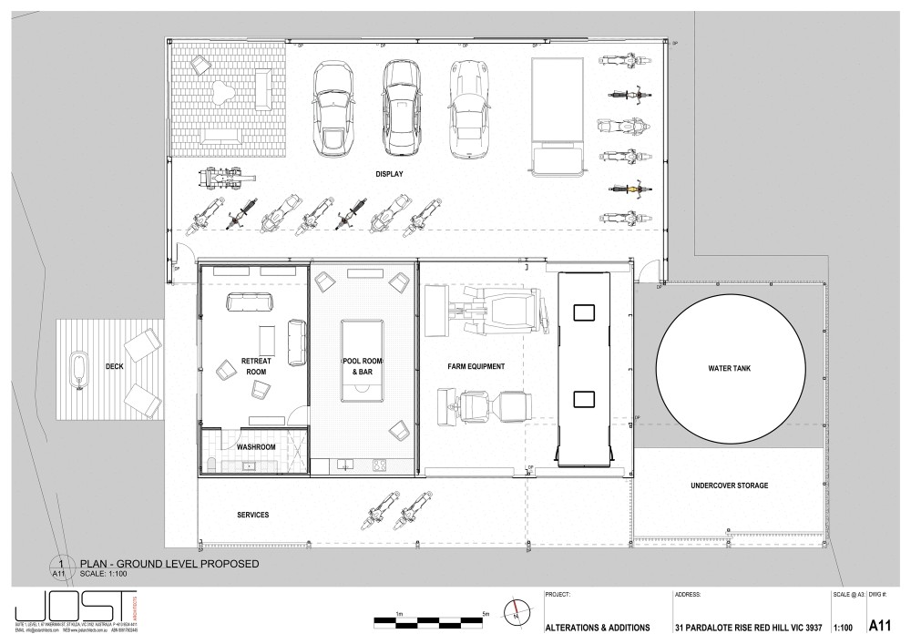
La cabaña Über 2 es el segundo edificio rural que hemos diseñado en la península de Mornington en Victoria, Australia. El proyecto surgió porque el cliente tenía “muchas cosas” y necesitaba más espacio para almacenarlo, exhibirlo y disfrutarlo.
Su colección incluía autos antiguos, jeeps del ejército de la Segunda Guerra Mundial, modelos de aviones, GI Joes, arte, carteles antiguos, guitarras firmadas, dispensadores de billetes de tranvía antiguos, etc.
Existía un cobertizo corrugado azul listo para usar con solo 4 años de antigüedad con acero estructural galvanizado aún brillante. El problema que tenía el cliente, aparte de la necesidad de más espacio, era hacer entrar su autobús Airstream de acero inoxidable, debido a que el acceso era demasiado bajo.
Convencimos al cliente de mantener la estructura existente, y adaptar, reinstalar y agregar al edificio un área que sea funcional y estéticamente visual para que pareciera que siempre fue una sola estructura.
De esta manera se mejora la utilidad -generalmente insípida- en una pieza de arquitectura elegante ubicada en un asombroso entorno. El diseño da cuenta del hecho de que en realidad no hay una idea preconcebida sobre cómo debería ser un cobertizo y demuestra que puede verse realmente genial.
Realmente no hay mucho más que decir al respecto, ya que las fotos cuentan la historia. Uno de nuestros proyectos favoritos con un cliente y constructor fantástico que hizo justicia a nuestro diseño.
项目完工照片 | Finished Photos
设计师:Jost Architects
分类:Bodega
语言:西班牙语
阅读原文
客服
消息
收藏
下载
最近

































