查看完整案例


收藏

下载
采购产品合作者Bacchus建筑,BDD工程,德瑞咨询工程师,能源实验室制造商装货.多规格少规格
Collaborators Bacchus Constructions, BDD Engineering, Deery Consulting Engineers, Energylab Manufacturers Loading... More Specs Less Specs
© John Gollings
(二)约翰·戈尔丁
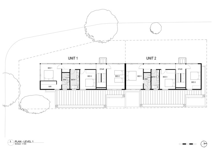
架构师提供的文本描述。圣基尔达东区联排别墅最初的核心目标是作为一种家庭发展,产生两套典型的住宅,它们可以在一个(我的父母)中为功能上缩小的祖父母提供住房,并舒适地容纳另一个五口之家(我自己、妻子和孩子)。它必须具有成本效益,但具有良好的审美效果。该地点位于街角,街道上有一条狗腿,而且有一个通往漫长边界的街道地址,这意味着住宅需要与街道并排运行。这打破了传统并排镜像的联排别墅。这也意味着,随着特定的地点和规划条件,在这种情况下,日常生活在一定程度上暴露在当地社区。
Text description provided by the architects. The initial core aim of the St Kilda East Townhouses was as a family development generating two typical dwellings that can functionally house downsizing grandparents in one (my parents), and comfortably accommodate a young family of five in the other (myself, wife and kids). It had to be cost effective but with a good aesthetic outcome. The site being located on a corner with a dog leg in the street and a street address to the long boundary meant that the dwellings needed to run end to end, parallel to the street. This breaks from the more traditional side by side mirrored plan townhouse. It also meant that along with particular site and planning conditions, in this case, daily living is somewhat exposed to the local community.
© John Gollings
(二)约翰·戈尔丁
虽然建筑物本身是一个引人注目和突出的存在,但这些住宅在建筑上的成功在于它们如何在日益禁止的文化中融入真正的社会互动,避免对技术、监管和完全隐私的痴迷。孩子们倚着篱笆向祖父母问好。
While the building itself is a striking and prominent presence, the architectural success of these dwellings is how they embrace genuine social interaction in an increasingly prohibitive culture, avoiding obsessions with technology, regulation and total privacy. Kids lean over the fence to say hi to grandparents & passers-by, dogs bark in unison and neighbours honk as they drive pass.
两个读作一个,长,高长的长方形,包含更隐蔽的区域,这些区域仍然保持非常连接到邻近街区的长连续的带窗口,该窗口仍然保持适当的隐私。它将其本身称为街景的延伸,因为该场地落在短的南边界上并逐渐变细,保持其高度与下面的开放的生活区,并在街角处浮动。
The two read as one, with a long, elevated oblong containing the more secluded areas which still remain very connected to the neighbourhood with a long continuous strip window that still maintains suitable privacy. It presents itself as an extension to the streetscape as the site falls and tapers to the short southern boundary, maintaining its elevation with the open living areas below and floating out over the street corner.
Ground Floor
在功能上,布局有效地最小化了出口区域,选择了房间到房间的移动,使这个空间回到了生活区域。餐厅与书房/第四床和化妆室之间隔开了一个多用途气闸。这也是双重作为一个整体,当一个空腔滑块是用来关闭它的生活区,以便它可以服务于书房/第四张床。这两座联排别墅都有屋顶装饰,提供宽敞的娱乐区域,有惊人的180°视野,可以俯瞰菲利普湾港、昂首阔步和游阳,一直延伸到城市的天际线。日落经常是壮观的,它危险地引起了过度的娱乐,特别是当路过的朋友,无论是在车里还是步行时,抬头看看谁在上面,停下来喝一杯。
Functionally the layout efficiently minimises egress zones, opting for room to room movement giving this space back to living areas. A multipurpose airlock separates the dining room from the study/4th bed and powder room. This also doubles as an ensuite when a cavity slider is used to close it off to the living area so it can service the study/4th bed. Both townhouses are crowned by roof decks that provide generous entertaining areas with amazing 180° views of Port Phillip Bay, Indented Head, and the You Yangs right through to the city skyline. The sunsets are regularly spectacular and it dangerously invokes excessive entertaining, especially when passing friends, both in the car and on foot, look up to see who’s up there, stop and come in for a “quick drink”.
© John Gollings
(二)约翰·戈尔丁
通过热被动设计,具有挑战性的西方曝光率由一个支持底层可移动外部百叶窗的适中的屋檐控制,而第一层的水平玻璃窗面积缩小,但完全可打开的滑动窗可全部打开,东侧有更多的窗户开口,使所有房间都能得到广泛的交叉通风。楼梯可以关闭在第一层,作为一个热烟囱,把空气从底层向上和从完全开放的双折叠门到屋顶甲板,以产生微风在任何风向。整个建筑物是双层玻璃的,虽然在极端条件下可以取暖和冷却,但在大多数情况下,这在很大程度上是居住者利用和操作房屋以适当利用这些被动功能的一种情况。
Through thermally passive design, the challenging western exposure is controlled by a modest eave which supports removable external blinds at ground floor, while level 1 has a reduced horizontal glazing area but fully openable sliding windows to its full length and more window openings to the eastern side which allows extensive cross ventilation to all rooms. The stair can be closed off at level 1 to act as a thermal chimney which draws the air up from the ground floor up and out of the fully openable bi-fold doors to the roof deck to generate a breeze in any wind direction. The whole building is double glazed and while there is heating and cooling available in extreme conditions, in most instances it is very much a case of the occupants utilizing and operating the house to properly benefit from these passive features.
© John Gollings
(二)约翰·戈尔丁
仔细选择耐磨、经济的材料,再加上控制部分的高端细节,使住宅能够交付的建设预算约为。每人60万美元。在174平方米和189平方米,高效的脚印愉快地容纳
Careful selection of hardwearing, economic materials combined with controlled portions of higher end detailing, enabled the dwellings to be delivered for a construction budget of approx. $600,000 each. At 174m2 and 189m2, the efficient footprints happily accommodate & facilitate the requirements of two very different demographics and are a great example of multi-functional medium density living which has been neglected by recent government and we believe could be a very important part of trying to rectify the problem of the current housing situation in Victoria.
© John Gollings
(二)约翰·戈尔丁
其结果是两个美观有趣,中等大小和非常有效率的住宅,成功地借鉴了建筑对网站的反应,而不是网站对建筑的反应。双方的家庭将有一个非常困难的时间来决定什么时候将转移到下一个核心家庭项目!
The outcome is two aesthetically interesting, modestly sized and very efficient homes that successfully draw on how the architecture responds to the site more than how the site responds to the architecture. Both households will have an extremely hard time deciding when the time will come to move onto the next nuclear family project!
Architects Jost Architects
Location Saint Kilda East, Australia
Category Houses
Area 380.0 m2
Project Year 2015
Photographs John Gollings
Manufacturers Loading...
客服
消息
收藏
下载
最近































