查看完整案例


收藏

下载
简约设计其着重点就在于简,即外形简洁,室内空间朴素大方,但其功能性强,从细节上来说,即物品的摆放要整洁,装饰的物品要少;在颜色和布局上来说,颜色的种类少,
布局大方,格调简洁、素雅。
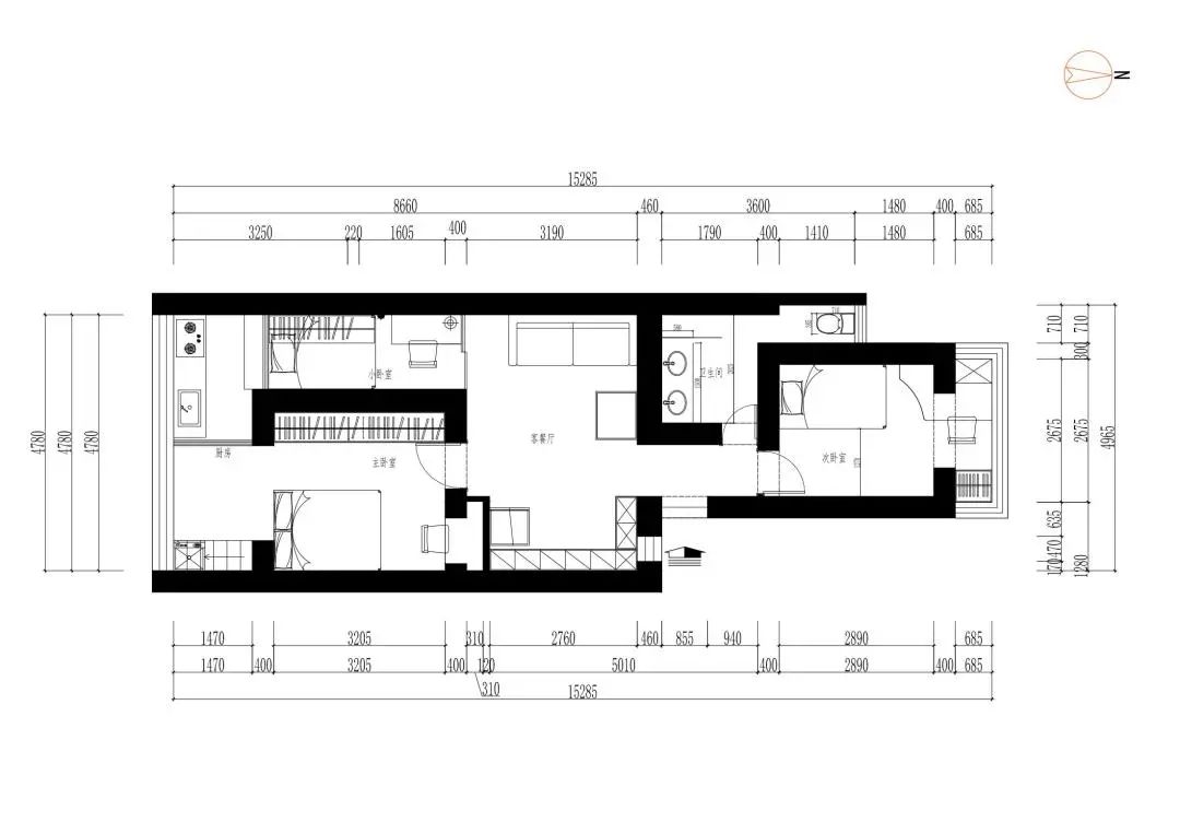
本次和大家分享的案例来自广安门小区,此户型为二居一厅一卫的格局,套内面积为82㎡,南北朝向,光照充足,通风良好。设计师赵荣灿通过户型优化,让横纵交错的布局更加简洁规范,构筑惬意空间。
01
客厅
空间以白色系为主要基调。浅灰色的地砖,配以白色的墙面,加上线条简洁的装饰收纳柜。让整体空间简约为主,清新自然。
02
厨房
墙体通体白色瓷砖,香槟色的定制橱柜。让整个空间通透,干净。
好的厨房决定工作效率和出餐质量,台面高度直接影响屋主下厨时的操作强度。根据屋主的身高,设计师对台面适当调整高度,符合人体工程学的设计,让下厨不再是负担。
03
主卧
浅灰色地砖,配以白色的墙面。搭配舒适柔软的床品,整体收纳柜体。使空间更富生活情感,彰显屋主的品味与格调。
04
次卧
浅灰色地砖,配以白色的墙面,单人床,加上书桌,空间更具质感的同时功能性更加丰富,在这里可以进行办公学习。
窗帘在选材上花了不少心思,双层窗帘可以满足更多的生活需求,单纱透光性更强,办公时拉上窗帘即可形成独立空间,同时也能保持办公区亮度,休息时,两层窗帘都可以拉上,保持室内较暗的环境,随屋主需求灵活变通。
05
小卧室
设计师专门为小卧室做了个玻璃顶,作为展示空间使用。夜幕降临,屋主可以带孩子在这儿看星空,
把天然梦幻的星空顶搬进自己的家。
繁华都市里,点点星火早就被耸立的高楼和通明的灯火所淹没,能在家看星星,感受生活的美好,才是设计的意义。
06
卫生间
墙地布纹色的瓷砖,要知道,很少有瓷砖材料像布纹色的瓷砖一样美观,除了美观以外,耐压、不易腐蚀、破裂等都是它的特性,能起到很好的防水作用。两个洗手台完美解决早上学生和上班族的同时使用问题。
07
整体布局图
08
关于设计师 ·
赵荣灿
从业时间:
19年
设计理念:
艺术是建立在需求之上,一切随心,用心感悟空间,让空间充满爱。
擅长风格:
现代简约、轻奢、简美、工业风、中式
代表作品:
原生墅、西斯莱公馆、金地仰山、世纪城、颐慧佳园、理想城等
工装代表作品:
中信银行、中信建投证券、北方工业大学、360拓展部、11中学、水利水电学校等
▼戳
阅读原文
快速获取装修报价!
客服
消息
收藏
下载
最近










