查看完整案例


收藏

下载
现代人的生活节奏太快,尤其是在大城市,随之而来的压力是不可避免的。如何才能随遇而安。如何才能保持自己的那份本质的心?
在我们的休息空间,我们渴望着自然的本质。
所以原木风设计大行其道,越来越受到人们的喜爱,把一切压力抛到脑后,享受无拘无束的自由生活。
设计师朱雅丽
本案项目介绍
━━━━━━━━━━━━━
房子位于朝阳芍药居,一家四口,老大十几岁,小儿子3岁左右,业主家本单元有两套房,这套房主要做为游戏和孩子互动区域,没有设置厨房空间,客厅主要孩子娱乐为主。
项目面积:60㎡
项目风格:原木风
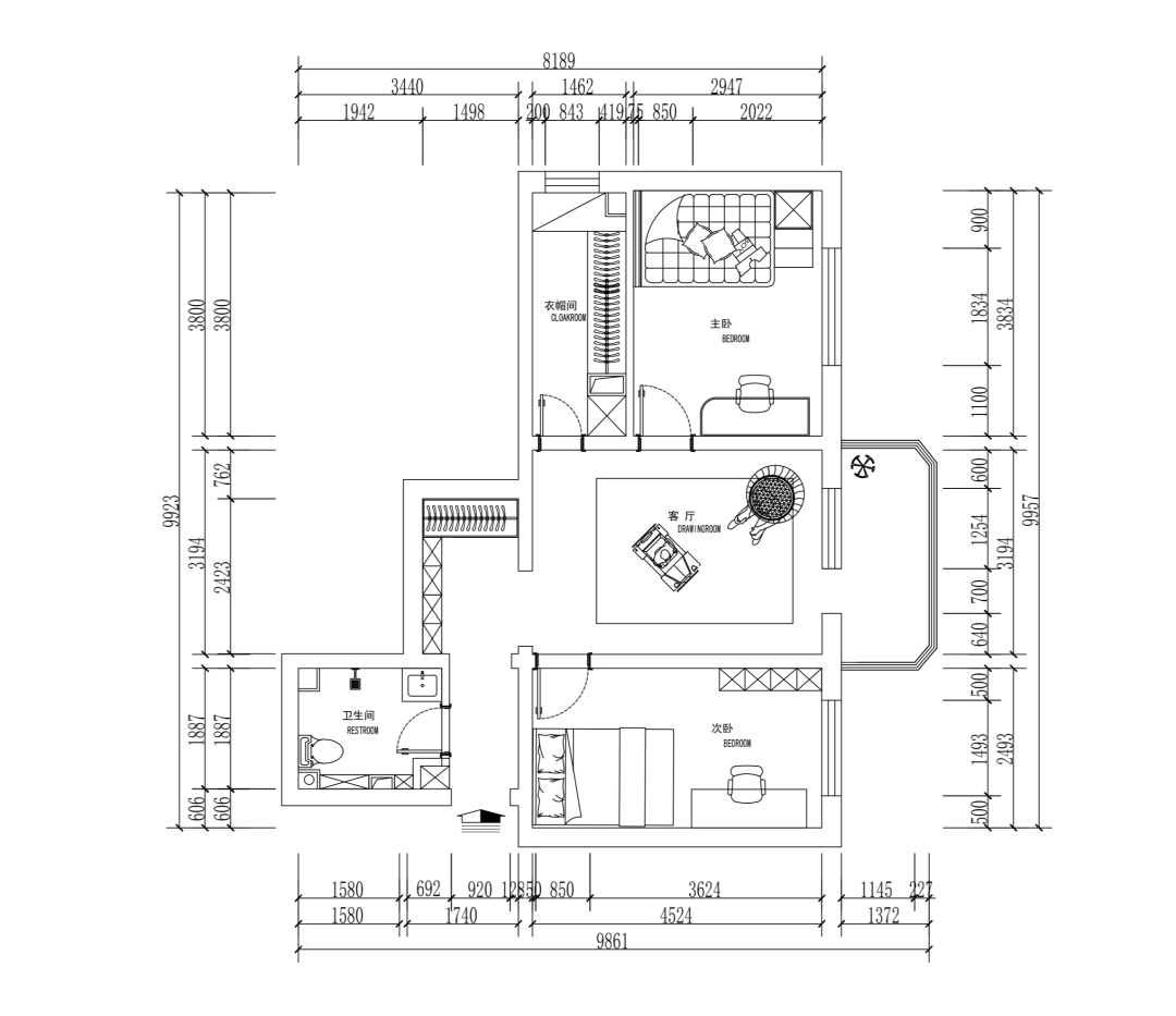
平面布局图
业主喜欢亲近自然、原生态的感觉,室内用实木地板和家具,不做过多的硬装装饰部分,局部用岩板点缀。
案例详情
━━━━━━━━━━━━━
整个空间以白色和原木为基调,以冷暖色调节空间的整体氛围,杂物分类收纳设计成为整个空间的亮点。
客厅空间突破传统布局,没有沙发电视墙区域,主要做为孩子娱乐区域,墙面定制岩板装饰墙点缀空间和用于孩子涂鸦,家人和孩子的互动空间。
房主楼下还有房子平常在楼下和老人一起用餐,这套室内不需要厨房空间,改为衣帽间增加收纳。
空间上的大片留白让房间显得干净而宽敞,成就更大的视觉空间,白色的墙壁与浅色木地板的搭配让整个空间变得整洁闪亮。
原木风,大多数的家具都是实木的材质,结实又有设计感。
主卧采用轻装修,重装饰的设计手法,弱化了墙面硬装,通过软装和颜色,来体现空间温馨感。
原木搭配透明长虹玻璃打造的书柜,温馨又好打理;黑色网格搭配金属台灯,灰色的靠枕与咖黄色枕头也恰到好处的点缀着,为空间的柔和度添砖加瓦。
儿童房选用了浅蓝色调,定制的榻榻米,下柜上床,满足了小朋友储物学习,休息的功能。
关于设计师——朱雅丽
居然北四三部设计师——
朱雅丽
中国建筑装饰设计协会注册室内建筑师
北京市建筑装饰协会高级室内设计师
设计理念:
合理划分空间,让设计融入生活,营造自然,品味,格调。
个人案例:
望京嘉美风尚 国美第一城 珠江帝景 新纪家园 首开畅心园 地坛北里 凤仪佳苑 世纪村 天通苑东一区 威尔夏大道 绿海家园 益辰欣园
▼戳
阅读原文
快速获取装修报价!
客服
消息
收藏
下载
最近









