查看完整案例


收藏

下载
本案例来自一家四口,屋主一家希望在软装设计方面,选择的面料易于打理,家里的两个“小魔王”有些调皮。
除此之外,屋主希望设计师能对儿童房做出大的改造。为孩子打造一个童话般的幸福小乐园是屋主和设计师共同的心愿,适合孩子居住的房间,不仅要时尚,多功能需求,还要环保健康,可以让孩子健康、快乐地成长。
房屋信息
面积:280㎡
户型:四室一厅
风格倾向:法式
原始户型图
原始户型存在的问题:
1、左上角阳台是封闭的,显得卧室空间会比较狭小;
2、步入式衣柜面积较小,上边衣柜位置不合理;
3、门口玄关位置比较浪费面积;
4、缺少一个儿童房,不能满足生活需求。
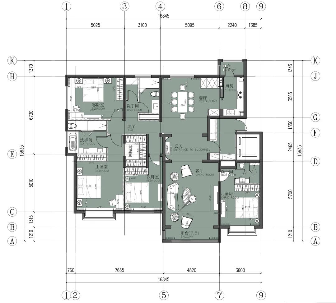
改造后户型图
更改之后的方案:
1、打开封闭阳台,增加整个次卧面积;
2、增加中间次卧的衣帽间面积,拆除多余衣帽间,增加卫生间面积,让整个空间布局更加合理;
3、将玄关位置墙往外推,增加玄关位置;
4、增加一个儿童娱乐房,方便小朋友学习娱乐。
01/客厅
客厅大面积的白色留白空间赋予了更多情绪张力。搭配有质感的白色沙发,与整体设计风格相呼应,展现出极致优雅的空间氛围。
选择半弧形落地灯,不会占用太多客厅空间,无极调光,从整体硬装布局来看不会显得拥挤。
02/餐厨区
餐厅紧邻厨房,动线规划合理,大大释放了公共区域的活动空间。餐厅镜子设计视觉上增加空间面积,岩板餐桌不渗色、防刮花、耐高温,优雅大气。
03/主卧
主卧采用优雅干净的白色作为主色调,阳台榻榻米为屋主提供了临时休息的小场所。
设计师还贴心地在榻榻米旁放了一把定制座椅,有效塑造空间气质。
04/次卧
次卧的设计风格与主卧一致,为了满足屋主的收纳需求,设计师在主卧放置了一面大衣柜,彻底解决收纳空间不足的问题。
05/儿童房
左边特别能装的玩具柜子,方便儿童学会自己动手收纳。
儿童房给小孩子预留了充足的活动空间,前期放置活动家具,方便后期孩子长大改成标准房间。
06/衣帽间
衣帽间设计很多不同高度的隔层或抽屉,用来放置领带、衬衫、皮带等,整个收纳看起来整齐明了,不但拿取方便,也是高品质生活的象征。
07/卫生间
卫生间大理石的台面更显空间层次感与质感,干湿分离的布局恰到好处,美观性与实用性兼具。
认识设计师
洪利/设计师
致力于室内建筑空间的创造及空间体验的营造,主张在空间中提取设计,通过感性的设计灵感,理性的设计手法,呈现极具张力与能量的空间体验。
简介:
从事室内设计11年
曾任大学特聘讲师
2014年成立洪利工作室服务于成都
2016年洪利工作室进驻北京
北京洪筑国际工程设计有限公司设计总监
代表作品:
棕榈泉国际公寓、亦园、壹亮马、天鹅湾、公园大道、观湖国际、中海北京世家、弗农小镇、圣世一品、锦官苑、光熙家园、华纺易城、西城天铸、首开琅樾等
▼戳
阅读原文
快速获取装修报价!
客服
消息
收藏
下载
最近


























