查看完整案例


收藏

下载
自在、随意不羁的生活方式,没有太多造作的修饰与约束,不经意中也能成就一种休闲式的浪漫,这就是所有人想要的美式风格。如果你也喜欢美式风格,接下来这套案例不容错过!
项目面积:72.4㎡
项目风格:复古美式
项目设计师:李征
门店:居然装饰北四二部
案例详情
原始空间图
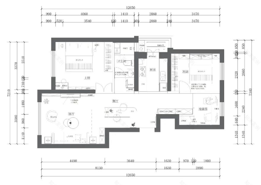
户型分析:本项目的户型为南北通透的三室一厅,为了更好的融入设计,李征设计师根据业主需求,增加了半隔断,明确空间功能划分。
平面布局图
美式复古风格的设计,色调整体以沉稳的咖色调为主,结合家具及配饰的亮色,使色调在沉稳中跳脱,不至于显得沉闷单调。
1. 客厅空间
设计师李征在遵循美式风格的基础上借鉴其它的古典主义元素,温馨的暖色调使得整体客厅空间更加的舒适。
客厅没有复杂的墙面装饰,造型奇特的软包沙发满足了主人躺着看电视的需要,沙发背后一张装饰画很好的点缀空间,颜色跟客厅整体相呼应,更增添了几分异域情怀。落地的百叶窗,最大限度的保证了客厅的采光,整个客厅还原了屋主理想中的模样,壁炉、吊灯、镜面,处处弥漫着复古的气息。
沙发背景墙采用对称式设计,黑色电视柜全落地免除了打扫的烦恼,处处细节之处都体现了设计师的独到之处。
餐厅空间
入户即餐厅区域采用导台形式做为餐桌,节省空间增加储物分担厨房收纳压力,墙面铺贴石膏线增加整体性,结合壁灯、壁炉提升空间氛围感,空间通透大气。一盆绿植、几个摆件,有时点缀的不只是家居,更多的是点亮了我们的心情。厨房空间
双 I 型的厨房动线,扩大空间范围,流畅走向;灰色地板搭配黑白双色定制整体橱柜,给厨房增加一些活泼。卧室空间
卧室整体以比较厚实的实木为主,带有浓浓的复古气息,也体现了自然质朴的特色。此外,实木的深褐色给人一种深沉古典的感觉,床头及侧边做整体柜子增加储物空间。
客卧地面采用仿木地板的复古砖,颜色整体偏深,可以更好地助眠,进口相思木材质的复古实木床,会给夜晚更厚重的美梦。
5
电脑房
电脑房借窗户区域做了双人书桌,在以后的居住中可满足同时工作或游戏。6. 卫生间
卫生间区域较小保证基本使用,墙面采用了半墙砖的设计结合壁灯及反光灯带营造更加舒适及美式复古的感觉。
7
关于设计师
设计师姓名:李征
代表作品:肖家河公寓设计,尚峰尚水项目设计,小黄庄项目设计
设计理念:设计,从居住者自身出发,个性定制。好的设计必须是摒弃了居住者之前的烦恼,在此之上增添美学元素,赋予房子新生命,一切从简。
擅长风格:北欧、美式、现代、欧式、新中式
▼戳
阅读原文
快速获取装修报价!
客服
消息
收藏
下载
最近

















