查看完整案例


收藏

下载
无需过多繁复的装饰特技
简单舒适的生活品味
宁静带有质感的惬意空间
忙碌工作后总会回忆起对家的期许
本案设计重点是在这个充满现代气息的空间里,通过家具尺寸的合理把握、硬装材质的质感衬托,软装饰品及家具的时尚搭配,构建和谐舒适、优雅的生活环境。
关于房屋
户型:三室一厅
面积:66m²
风格:现代简约
△改造前平面图
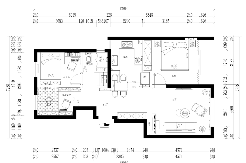
△改造后平面图
# 委托人需求
优化空间的不足,整体风格希望偏现代一些,最好加入喜欢的原木色,整体感觉要宜居一些,儿童房温馨一点。
01
/ 入户
精细化
通过原始户型与改造后的户型图对比,可以看出原始户型中进门入口太过拥挤,空间整体并没有合理化、精细化利用空间。
改造后的入户区视野明显开阔很多,不再是一进门便给人一种拥堵的感觉,有了软装搭配的加持,让整个入户区宽敞明亮起来。
02
/ 客厅
简洁实用
客厅以简洁实用为主,使用大理石做背景墙两边做木纹暗藏隐形门,更有整体感。
考虑到客厅为家庭活动区,弱化电视观影的功能,让沙发的布局可以更加的自由、休闲。整体以白色为主基调,大理石做点缀,让空间如沐春风,别有一番生机。
造型奇特的灯具与客厅内的软装色调相匹配,长条沙发更适合家人、朋友同坐在一起畅聊谈心。体量小的桌椅让客厅内的活动空间更大,住起来更加舒适!
03
/ 餐厨区
合理布局
厨房的与客厅之间打通将冰箱洗衣机的功能加入厨房,在厨房与客厅中间放置餐桌,优化了动线,使布局更加合理。
04
/ 休息区
通透明亮
在原始户型中,主卧的动线并不合理,且收纳空间严重不足,这给委托人的生活带来了极大的不便。
经设计师重新设计后的主卧现代感十足!巨大的落地窗为室内带来了充足的自然采光,通风采光问题得到解决。
两边的床头柜可以随手放置水杯、书本、手机等随用物件,拿取方便。顶天立地大衣柜彻底解决收纳空间不足的问题。
儿童房的主色调为粉色,突出温馨幸福的氛围。吊灯也进行了特殊的装点,一进门,仿佛置身童话公主房的世界~
-END-
编辑 / 倪迦
校对 / 倪迦 田田
推荐 · 阅读
260㎡现代简约 | 感受家的美好
爆改65㎡小户型,空间放大术!
149㎡打造高级新中式,真精致“豪”宅!
点击这里,快速获取装修报价
客服
消息
收藏
下载
最近










