查看完整案例


收藏

下载
色彩明艳的碰撞 A CLASH OF COLORS
Project Details
项目面积丨108㎡
风格定位丨现代简约
施工地址丨中海富仕居
主笔设计丨殷烨
“空间里的色彩碰撞,并不是嘈杂的体现,而是一种美的融合。”
本案案例是一个复式房,业主是一家三口居住,夫妻俩有一个正在上大学的女儿。男业主喜欢低调,温馨的感觉;而女业主却喜欢明艳,亮丽的颜色;女儿则想要一个属于自己的独立空间。另外业主的女儿很喜欢收集盲盒公仔,所以和设计师提出希望能打造一个可以摆放公仔的空间。面对这些需求,设计师都顾及到了,一起来看看是怎么做的吧~
客厅
LIVING ROOM
客厅大面积利用米白色作为基底色,温柔雅致。再利用蓝绿色和亮橙色作为搭配,绒面质感的沙发给人一种柔和感,缓和橙色带来的冲击感,反而更显精致。
电视背景利用大理石岩板和格栅作为搭配,增添一份稳重沉静。
餐厅
DINNING ROOM
圆形餐桌的采用,增加了一家人用餐时的互动性,也能满足亲朋好友聚会时拥有足够大的空间。餐边柜采用玻璃柜门,里面可以摆一些装饰物,也可以用来放置一些美酒,尽显设计感。
餐边柜留出开放式展示柜,贴身的小物品可以随时摆放,也可平时摆放一些鲜花和装饰品,留住生活的仪式感。
楼梯
STAIRWELLS
利用楼梯下方的空间制作储物柜,使得整体储物进一步提升;整面柜子的无把手设计,整体感极强,实用又美观。
卧室
BEDROOM
▲女儿房
女儿的房间在二楼,依旧延续米白色作为主色,衣柜采用嵌入式,节约了空间,显得整个房间变得宽敞舒适。亚克力透明靠椅的添入,让整个房间又增添现代感。
▲手办衣柜
将衣柜的一列专门设计成透明展示柜,盲盒手办全部展列其中,生活与爱好乐趣相融,惬意又美好。
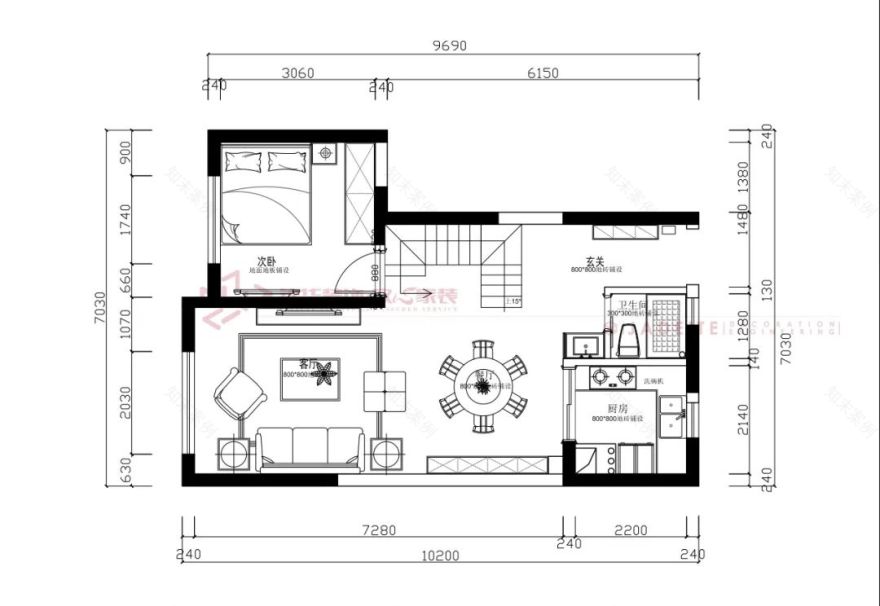
本案原始图&布置图:
▲一楼原始结构图
▲二楼原始结构图
▲一楼平面布置图
▲ 二楼平面布置图
本案设计师:殷烨
你家是多大面积的?针对户型规划你有哪些方面的需求?欢迎咨询本案设计师为你解答
☟
☟ ☟ ☟
如果您对自家户型不满意,可以咨询我们,给您送上解决方案。15862585047
客服
消息
收藏
下载
最近

















