查看完整案例


收藏

下载
“
Project Details
项目面积丨
260㎡
风格定位丨
现代简约
设计主创丨
陆婷
项目地址丨
明珠城
本案以黑白配色为主,搭配优雅的浅色沙发和大理石纹砖,尽显高级感。
1
客厅
石纹白色电视背景与整体基调完美融合,整体作为餐厅区域和休闲区的隔断,具有一种独特的空间感。
2
餐厅
圆桌的单独摆放,打造会客区,亲朋好友的聚会可以在此进行。
3
书房
玻璃的全透明设计,也将整个空间的设计感进一步提升,打造现代高级感。
4
卧室
打破传统的主卧布局,将衣柜设计在床后,特殊定制的床头,将书桌和床融为一体,无论是办公还是休息,都十分方便。
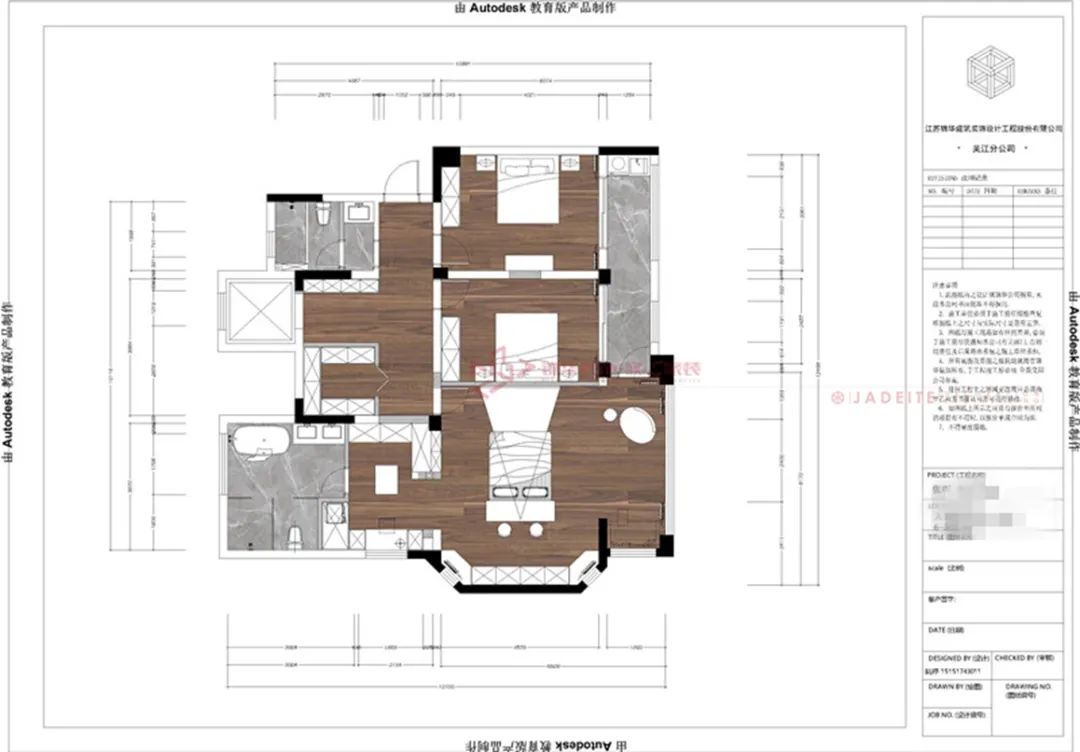
本案
平面
设计图
▲
一
楼
平面
布
置图
▲
二
楼
平面
布
置图
☟ ☟ ☟
如果您对自家户型不满意
可以咨询我们
给您送上解决方案
15862585047
客服
消息
收藏
下载
最近


















