查看完整案例


收藏

下载
现代简约的房子
Modern and simple house
关于设计
About Design
这个案例的业主是一对审美很明确的小情侣,喜欢干净的白,也爱冷静的黑,简单是他们对家的幻想词
。
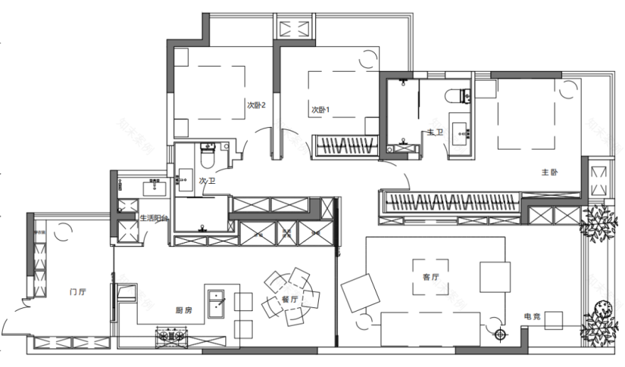
原始户型图
平面布置图
客厅
Living
room
女主人不喜欢厨房完全封闭,设计师采用了开放式厨房,让柜门与客厅色调一致,使厨房 餐厅 客厅融为一体。完美拉长了整个客厅的视线长度。木纹
色调的卧室让人感觉放松 舒适,给空间恰到好处的温柔。
餐厅
Dining room
木质地板,白色的墙面,黑色的实木餐椅与黑色的餐桌搭配,现代与极简元素相结合,明亮的色调搭配
让整个餐厅有质感了起来。再加上吧台的设
计,让家居生活更轻松随性。
主卧
Bedroom
卧室将大自然的颜色融入软装家具单品之中,舒缓自然,充满家的温馨。不带任何雕刻的柜体,只用木纹做装饰,更加简约时尚。整个系列的颜色都非常的温和,不张扬,反而格外的温馨,充满了家的味道。
次卧
S
econd room
次卧所呈现出来的是非常接近自然的原生态的美感,没有一点多余的装饰,一切材质都露出原有的肌理和色泽。在处理空间方面强调室内空间宽敞、内外通透,最大限度引入自然光。将飘窗砸掉巧妙的将书桌与床头柜连接定制,大大提升了空间利率。
项目信息
PROJECT INFORMATION
全案设计
/
Design
:
重庆见界设计
项目名称
/Name
:鲁能星城8街区
项目面积
/Area
:124m²
客服
消息
收藏
下载
最近












