查看完整案例


收藏

下载
·项目信息·
全案设计公司:重庆见界设计
项目名称:南岳·清水湾
设计时间:2021 年 7 月
套内面积:262㎡
主案设计师:杨涛 何钦
风格:现代简约
#ABOUT DESIGN / 关于设计
“贵州这片山,是承载我心与灵魂的地方,也是我一生的事业所在,对我而言,房子是张空白的画布,在这里我可以创造性地表达自己,也是一个让我置身自然的处所”。我们来到贵州,穿过绵延不绝的山林,来到这坐落于贵州铜仁小江边的房子,唐先生 18 年来到这儿,立马就被视野里的自然风光所吸引,“天地有大美而无言,每当需要灵感的时候,我就会到山中去,它让我感到振奋,提醒我美丽与宁静的神秘无处不在,我总是试图用直觉去引导我的工作,亦如我家的设计,也是如此。”
This mountain in Guizhou is the place that carries my heart and soul, and it is also where my life’s work is. For me, the house is a blank canvas, where I can express myself creatively, and it is also a place where I can be in nature.
We came to Guizhou, through the endless mountains and forests, to this house located by the Xiaojiang River in Tongren, Guizhou. Mr. Tang came here in 2018 and was immediately attracted by the natural scenery in his vision, "Heaven and earth have great beauty without words, whenever I need inspiration, I go to the mountains, it makes me feel uplifted and reminds me that the mystery of beauty and tranquility is everywhere, I always try to use my intuition to guide my work, as well as the design of my home, as well."
Living room / 客厅
客厅整体造型以轻快明亮为主,白色与木色的揉合再加上黑色的点缀,在简约自然、舒适的基础上,和屋内明亮的白色与木色交相呼应,让空间感更贴合自然。
The overall shape of the living room is light and bright, with a combination of white and wood colors plus black accents, echoing the bright white and wood colors in the house on a simple, natural and comfortable basis, making the space feel more in tune with nature.
#透视图
简洁利落的设计,简单明了的动线,低调高级的配色,白色的地板瓷砖其与生俱来的细腻质感和黑色墙面漂亮的天然纹理,搭配木纹、饰品等软装配饰,营造高级、舒适却又不失设计的质感。
Sharp design, simple and clear lines of motion, low-key senior color scheme, white floor tiles with its innate delicate texture and black walls with beautiful natural textures, with wood grain, accessories and other soft furnishings, to create a senior, comfortable and yet unobtrusive design texture.
Eathutch/餐厨空间
对于居住空间需求比较大的家庭而言,敞开式厨房设计最合适不过,不仅令厨房变得通透、明亮,更将客厅、餐厅、厨房连为一体,在视觉上形成一个更为自由、开放的空间效果。
For families with large living space needs, the open kitchen design is the most suitable. It not only makes the kitchen become transparent and bright, but also connects the living room, dining room, and kitchen into one, visually forming a more free and open space effect.
独特的木纹理花色再加上黑色的墙面点缀为厨房增加了高级感,再加上黑色的餐桌与偏暖色的餐椅,亮色与暗色的对撞,现代感中提升了厨房空间的质感,让厨房充满无限想象。
The unique wood grain color plus the black wall accents add a sense of sophistication to the kitchen, plus the black dining table and warm dining chairs, the collision of bright and dark colors, the modern sense of enhancing the texture of the kitchen space, so that the kitchen is full of unlimited imagination.
LeisureSpace / 休闲空间
#透视图
在这里光就成为核心元素,原本阴暗的角落,在重新规划后变得透明,摆脱一切你不需要的东西会带来一种激动人心的东西——纯净。
Here light becomes the central element, the originally dark corners become transparent after re-planning, getting rid of everything you don’t need will bring something exciting - purity.
Childs bedroom/儿童房
儿童房的设计比较温馨自然、生机、富有想象力,以白色为主体色,搭配橡木色的木纹,让孩子在家也能感受大自然的气息。
The design of the children’s room is more warm and natural, vibrant and imaginative, with white as the main body color and oak-colored wood grain, so that children can also feel the atmosphere of nature at home.
Another bathroom / 次卫
次卫面积不大但功能齐全,双台盆的设计满足两人同时洗漱,减少一切不必要的杂物,精简再精简,视觉上更加清爽。
The secondary bathroom is not large but fully functional, with a double basin design to meet two people washing at the same time, reducing all unnecessary clutter, streamlining and then streamlining, visually more refreshing.
Masterbedroom /三楼主人卧室
人一生中至少有三分之一的时光都在卧室度过,一个整合进多种功能的主卧套房,不仅可以提高空间利用率,还可以保证私密性和舒适度,主卧套房的相对独立性,也是品质生活的象征。
At least one third of a person’s life is spent in the bedroom, a master suite integrated into a variety of functions, not only to improve space utilization, but also to ensure the privacy and comfort, the relative independence of the master suite, but also a symbol of quality of life.
自然干净的气息布满了整个主卧,在灯光映衬下尽显设计感,一切看起来柔和的装饰都是放松的最好方式,将喧嚣褪去,让所有感官在静谧中自由舒缓。
The natural cleanliness covers the entire master bedroom, and the design is reflected in the light. All the soft-looking decorations are the best way to relax, fade away the hustle and bustle, and let all the senses soothe freely in silence. Advocate toilet / 主卫 主卫格局方正,分离式卫生间,放有大浴缸,风格依旧延续了客厅舒适、宁静的感觉。
The main bathroom has a square layout, a separated bathroom with a large bathtub, and a style that continues the comfortable and serene feeling of the living room.
独处有时,共聚有时,见触感介于透彻与丰郁之间,无拘无束。Sometimes alone, sometimes together, we can see and feel between clarity and richness, without restraint.
# 透视图
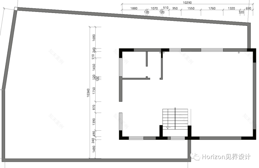
Apartment renderings/户型图
使人感到平和,静谧,直入心扉的,始终是这些具有真实情感的东西。
It is always these things with real emotions that make people feel calm, quiet and straight into their hearts.
#THEEND
Tel :18623192458/18996000201
Add. :重庆市渝北区礼嘉嘉吉路 2 号附 2 号 1-29
客服
消息
收藏
下载
最近






















