查看完整案例


收藏

下载

附件
前言
上次设计自己的办公室还是在 2010 年,那时我们公司大约 12 个人,我咬着牙把工位留到了 18 个,心想,我们绝对不会超过 18 个人,要不那么多人没法管。
3 年后,我们就有了 30 多人,原来公司里的会议室,图书区,会客区,厨房全部被占满,用来放工位,而我被赶到了原来的厨房里办公。
之后我们的人还在增加,那个办公室实在装不下我们了,于是我们就搬到了济南现在的办公室,不过很遗憾,那时我在厦门做智能硬件,我没能参与我们新办公室的设计和落地。
去年我们下决心要去上海发展,于是在 2018 年的 11 月期间,我在虹桥区域看过了 20 多个办公室空间,总算找到了这个合适我需求的房源。
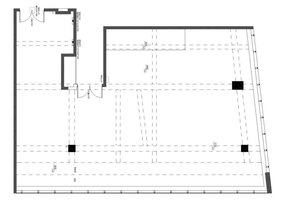
这个房源面积不大,2 面采光,有 2 个入口,面积刚好合适我们。
于是我迅速的签约,我打算春节前筹建好我们的上海办公室,以便在春节后就可以办公使用。
没想到的是到了 12 月,我生病住院,这一拖就到了春节后。
春节上班后第一天负责上海筹建办公室的同事,就把我堵在会议室。
第一,他们要求我明确新公司的预算?
组织构架,我没具体想过,我们济南已经 80 多人,上海设置 20 人的岗吧,把公司的研发放在上海,再招些真正的高手,当然也要让济南的老同事过去一部分,这样不至于我们的战斗 DNA 被稀释太多,一两年后如果我们又长大了,我们再考虑换个更大的办公室。
另外我们也没准备多少预算,我不想连着好几年,让摊销的办公室装修费,在财务报表里让我愁眉不展,我们甚至对具体的设计,也没有什么太多的想法。
我觉得这个使用面积 200 平米的小办公室,整体上轻松点就好(省钱),有间会议室能开会,能关起门来骂人,最好有 20 个相对宽裕的工位,能把我们的研发部门放下,我更不需要为自己隔出来一间办公室,我一直都和大家坐在一起,唯一的不足就是,坐我身边的人压力往往都比较大,容易长胖。
说起发胖,我们应该有个地方能一起吃外卖,聊聊天,不在一个锅里吃饭,但也要在一张桌子上一起吃,增加我们非正式的沟通频次,心理学上说这样会增加我们这个团队的创造力和凝聚力。
嗯,我们还需要一件小仓库,可以把物料和其他的杂物收纳起来,我们还要有一间财务室,一小块接待区,要是有客户来了,除了会议室还能有个地坐一下。
当然,作为一家设计公司,最好这个空间还能有点识别度,算了,识别度这个词太高大上了,费钱,我们稍稍有点设计感就好。
于是我用了一个日夜来思考这个办公室平面的几个可能性。
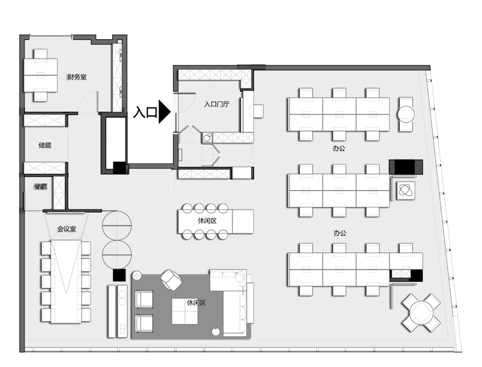
第二天同事从我凌乱的手稿里梳理出了大概,团队一讨论,确认了一个会议室布置在最里面,同时也距离办公区最近的平面,这样,不但可以把办公室双面采光的景观面,让给工位和休息区,还避免了采光过强,投影要遮蔽的问题。
好吧,就这么定了,于是我们赶紧做立面,建模型,确认材料(其实是确认价格)之后,深化部的同事就开始画施工图了。
直到 2 个月后,我们的施工才搞的七七八八,等软装搞好,就已经到了 4 月底,真是一次漫长的过程。
谢谢,在施工上提供大力支持的徐总。
谢谢,帮我们定制不锈钢的上海美旋实业有限公司的骆总。
上海,我们终于来了。
岳蒙2019.6.12
作品实景
一个好的空间,应该是符合其身份的。
办公空间并非只是艺术行为展示的场合,它既要追求产品本身的美,更要符合其功能逻辑和功能氛围。
实用的态度以善为最高目的,科学的态度以真为最高目的,美感的态度以美为最高目的。
区域功能的经纬分明优势在于,它让散落在空间里的片段,不需要去特别调动,便呈现出最高效率。
区域功能经纬分明。前台与立面上统一的线条分割,干练而不落俗套,从进入空间的第一眼,便传达给人简洁的第一感觉。
休闲区可以承载工作台的职能,也可以成为员工私属地。错落的高低圆桌设计,在功能上可以区分不同物品的分别放置,避免混杂忙乱。
不锈钢拥有最坚韧的实用性,又能够通过线条感,保持视野上的通透性,营造出非常轻盈的观感,让整个设计更灵动。
感官体验和人文关怀,是工作效率之外,办公室空间应该具备的精神内涵。艺术性的设计如果能够带来身心愉悦,也是一种实用性的功能。
用理性分割出功能区域,用感性去赋予空间精神。
在会客空间的构思上,我们更植入的设计元素会比较多,亮眼的小熊和流水凳等别出心裁的软装,增加了整个空间的亲和力和趣味性。
我们想把它打造成一个更加张弛有度的空间,既可以礼貌接待,也可作为我们自己的一角精神世界,可以去静思或者放空。
镜面的效用,不仅仅放大了空间的观感,也加持了美感。
而隐藏在镜面之后的电视装置,才是其中的奥秘。这样的设计,既满足了功能上的需求,又在视野上做到不露痕迹地隐藏,兼顾了实用性和趣味性。
办公室空间的内在含义,就是能够高效。那么我们就祛除所有冗余,用极其简洁的样子去呈现。
空间是简练的,思想是丰富的,这两者在办公区能够完美融合,那就是办公室设计的终极意义。
设计的迷人之处在于,它能够完成功能上的需求,还加入了更多想象力,让人在务实中生出理想主义的信念。
我们期望中的办公室,能够体现我们的速度与效率,也能够实现我们不断奔跑的理想。
会议室空间与整体设计思路一脉相承,力求简洁务实。在空间上,实现了私密的需求,在视觉上,一整面玻璃窗与外部通透对话。
大面积密度板切割与清漆的搭配,很干练地组合出现代意向。立面与顶面在色调上形成彼此呼应,软装风格也与其统一,整体氛围简单而直达目标。
这一整面是空间中视野最好的黄金区,与外面的世界有着直接的对话,这本身就是最天然的雕饰。
休闲区、会客区和工作区域,在一条中轴线上,切割通透,在功能和设计上都不失节奏感。
项目名称:上海岳蒙设计自用办公室
设计:上海岳蒙设计有限公司
设计负责人:岳蒙
参与设计:王斐邹积涛于颖林双缘
项目摄影:麟文摄影
项目地点:上海
完工时间:2019 年 4 月
客服
消息
收藏
下载
最近
































