查看完整案例


收藏

下载
面积:50m²
风格:现代日式
户型:两室两厅
花费:18w
设计主创:王兴波
服务模式:纯设计
项目地址:成都.麓湖
业主是老客户介绍的,两套公寓一起装修
房子是一位上师居住,上师大部分时间不会在成都,来成都的时候有个落脚的地方
公寓面积50平方,准备搭建做套二,需要独立阳台,两个卫生间,需要浴缸
风格定位带点禅意,但是要简单一些
一个房间做禅室,如果徒弟过来也可以席地而睡
房子优点:视野采光比较好
缺点:层高只有4750,但是中间有一根580的横梁,并且很宽,对搭建两层提高难度
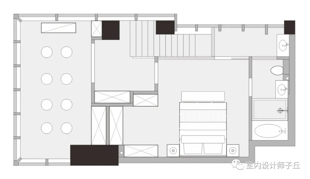
一楼方案:客厅,餐厅,洗手间,厨房,家政间
一楼
方案
:主卧,卫生间,衣帽间,休闲阳台,禅室
方案最大难点是那根横梁,解决方式是楼梯上来做一个平台做缓冲区
一楼客厅空间,无主灯设计,木地板搭配地毯,温馨雅致
餐厅与客厅之间隔断,两个作用,一方面满足电视墙,一方面满足隔断,格栅隔断,透光让空间通透
隔断电视墙角度
餐厅看向入户角度
卧室空间,独立衣帽间
禅修室,可以看到麓湖景区
客服
消息
收藏
下载
最近














