查看完整案例


收藏

下载
用心 · 专研
ShiYan · design
项目地址:水漾花城
项目面积:140㎡
设计机构:室研设计
项目风格:现代风
文案编辑:腾讯家居
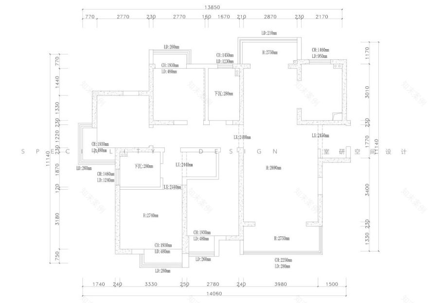
原始平面图
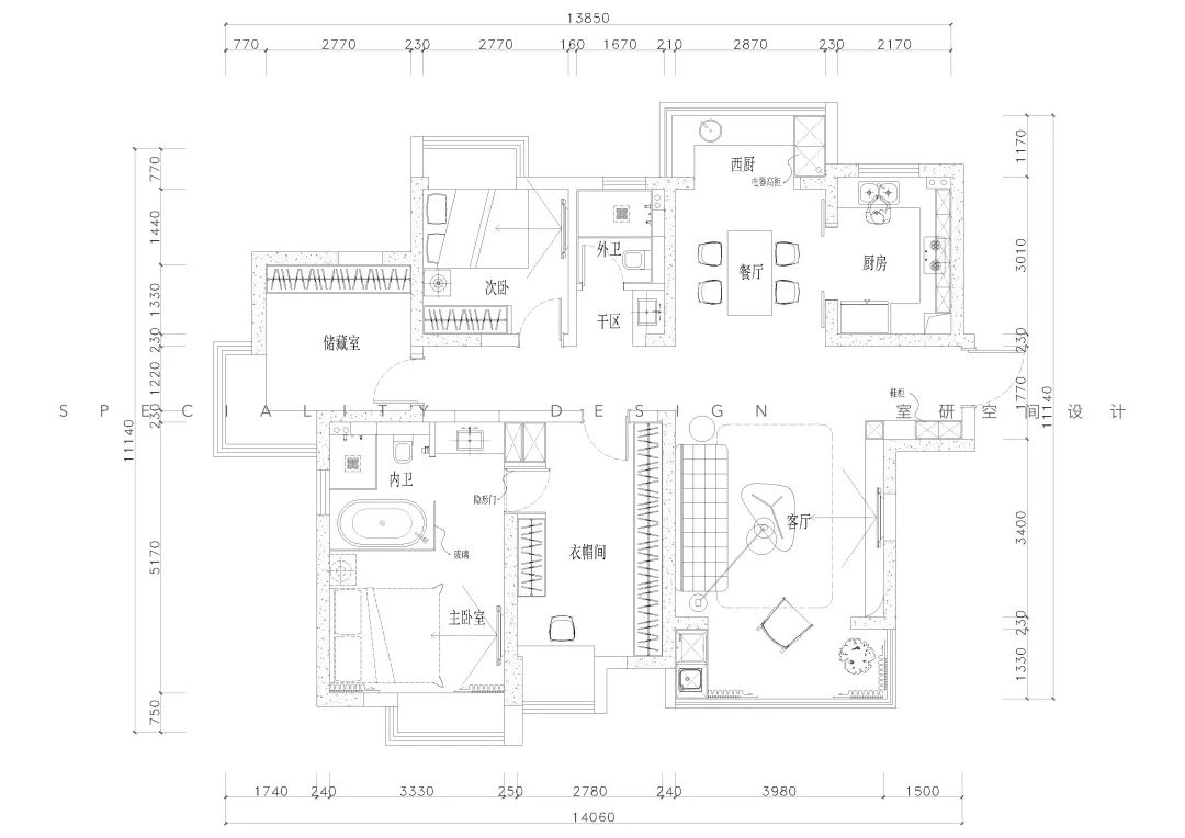
平面布置图
黑、白两色作为色彩搭配的黄金搭档简约大气,从入户开始打造简洁舒适的居家环境。内嵌式灯带照亮角落,用柔和的灯光
营造家的温馨氛围,
迎接归家的人。
跳出传统的固定思维,舍弃电视柜的框架,背景墙蜿蜒的弧度如一幅打开的卷轴,演绎人生百态。消除空间的隔阂,将阳台纳入客厅,沐浴阳光享受家带来的轻松。
大面积留白给家留下涂抹的空间。纯粹的白涤荡日常的烦恼,放空身心任由思绪自由扩散。黑色洞洞板
增添空间层次感,
记录生活中的点滴日常,给未来留下过去的印记。
临窗设立开放式西厨让日常烹饪随心自在。
异形餐桌为生活增加了一份随性的趣味,木质餐椅自然淳厚,与爱人共享一日三餐感受四季轮转的美好。
挣脱传统的框架,将浴缸放入卧室,扩大卧室空间的同时营造浪漫情趣。鱼骨拼地板错落有致,赋予空间强烈的立体层次感。一池热水,一缕阳光,摆脱束缚,徜徉在自然的烂漫
自由
中。
纯白的至顶衣柜容纳一家人的日常衣物,将飘窗改造为梳妆台,迎着清晨的微风,开启一天的愉悦心情。
END
▽
扫码预约设计
地址:
苏州市姑苏区人民路63号蓝文化创意产业园15幢107-1室
客服
消息
收藏
下载
最近













