查看完整案例


收藏

下载
THE BEAUTY
OF///
BUILDINGS
设 计 师 :王 建
项目地址:义乌东陶村
项目面积:160 平
本案业主是一位在几十年前就开始下海经商的第一批做外贸生意的义乌本地女企业家,在自己的生意成功后,更加侧重于子女
的教育这块。为了让儿子学到更多的东西,将儿子送到了西
班牙。如今,儿子学成归来,无论是企业还
是家,都将开始新的传承。
这套房子是义乌本地自家
的
自建房
,地理位置也相对优越,一共四层半,四楼一直以来未装修,业主希望将这里传承给儿子,将家慢慢交到他手上……
在这里,即将
实现
新一代
的传承,也给这个房子赋予了更别样的
使命
。业主期望,准备起来的这套房子,可以尽快迎来女主人,并迎来下一代,将爱一代又一代的传承。我们也祝愿这个美好的
愿景
,能够尽快的实现,给这个
祖宅
赋予新的生命力……
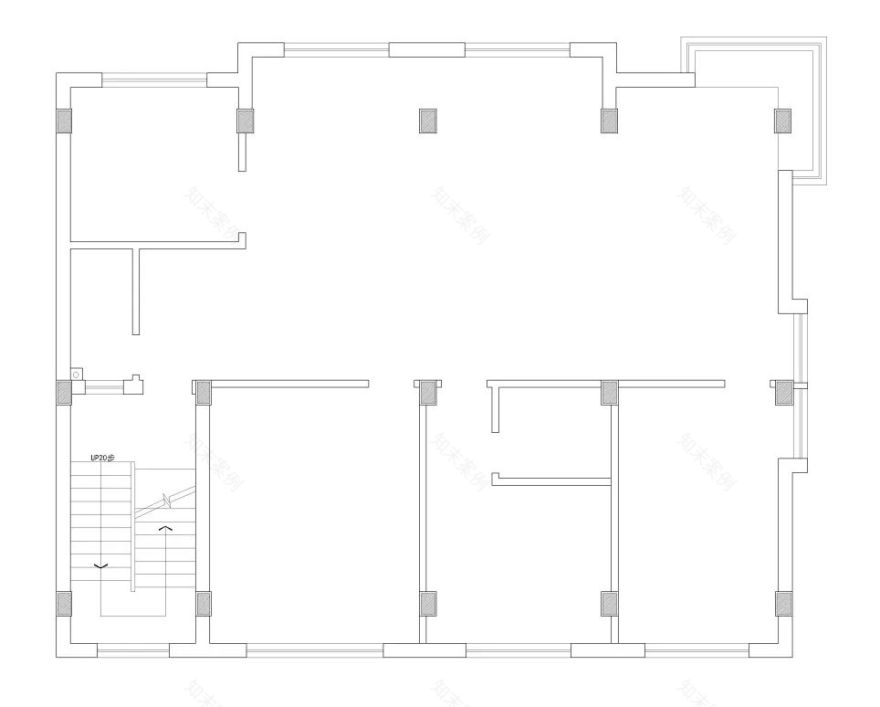
▲原始结构图
原居住空间分析:
1.入户门正对楼梯,
对冲
感强烈。
2.玄关
空间浪费
凌乱
(原玄关背景是业主临时摆洗衣机的位置)
3.客卫面积
狭小
功能
欠缺
4.主次卧书房均在房屋靠北的位置
5.没有从属的卫生间及衣帽间功能
6.客厅面积较大,但沙发与电视墙之间有房屋的大梁,导致客厅的整体感被拆分。
7.房屋整体动线单一且冲突
,功能区域之间关系生硬。
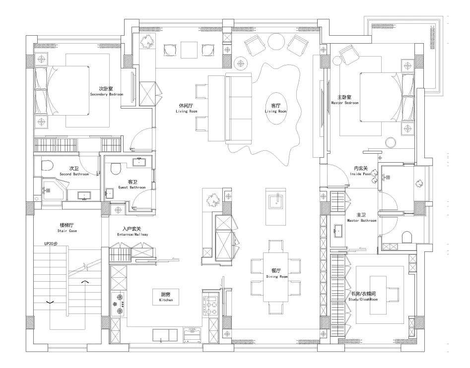
▲平面方案
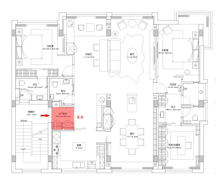
▲玄关
设计中将入户位置重新调整,让动线视线更加合理化,同时这样可以解放次卧空间,让次卧实现面积扩大。相对原户型,同样形成独立玄关,增加入户仪式感,利用柜体包裹立柱,增加收纳,形成与厅及厨房相连的下双动线,厨房做两门设计,提升功能之间转换的便捷性。
▲过道
▲客厅
功能及动线:
客厅横向增加敞开书房,榻榻米休闲区等附加功能,相互独立又相互关联,增加两厅之间互动的同时提升便捷性与品质感。
色彩及材质:
业主需求色彩部分,明亮欢快。业主是90后留学海归派,性格更鲜明爽朗,所以整体空间色调在暖黄色木饰面和灯光的基调上,融合点缀以绿色/黑色/灰色调,辅以大理石森林质感纹路的边柜背景,打造整体轻松活跃的现代感家居空间。
光影:
客餐厅及榻榻米休闲区窗户做同尺度的扩大处理,增加管线,各空间形成统一氛围,横向纵向贯通开敞。
▲餐厅
▲餐厅岛台
功能及动线:
纵向,男孩是西方(西班牙)留学回国,长期留学生活,使得整体生活习惯更偏向西式。客餐厅之间利用空间剩余,设计上特意增加西厨岛台设计,增加两厅之间互动的同时提升便捷性与品质感。
色彩及材质:
材质上大面积采用木饰面柜门,使整体形成温馨基调,现代开架钢板,大理石,皮质座椅,玻璃柜门活跃空间氛围的同时增加现代感。
特殊处理:
由于自建房本身梁柱的特点,界面处理上,采用收纳柜与展示柜并结合背景墙穿插排列,将原来的柱体完全融入其中。
▲次卧
次卧室为父母房,实现基本功能的同时,采用木地板、木饰面等材料,营造空间整体温馨氛围,让人可以更好的获得休憩。
▲主卧
功能:
主卧室做套房设计,卧室休息区+卫生间(马桶台盆及淋浴三分离)+书房(阅读工作)
色彩:
整体色彩,以温馨的淡色及原木结合。
光影:
卧室与淋浴间之间,淋浴间与马桶间之间做同尺度的艺术玻璃隔断设计,淋浴间与马桶间做长虹玻璃门设计,保证隐私的同时,使光线均匀分布在不同的空间及角落。
庄庄有话说:今天就到这里啦~ 最近有点忙,我会努力,尽快整理更新我们的设计作品哒!以后更新频率尽量保证在每周六晚8点更新1篇哦~
家居|生活|美学|电影|牢骚
———————————————————
请留下你指尖的温度
让太阳拥抱你
内观空间设计
咨询设计/合作联系
13252196221 | 庄庄
18758262067 | 王建
客服
消息
收藏
下载
最近
































