查看完整案例


收藏

下载
THE BEAUTY
OF///
BUILDINGS
设 计 师 :王 建
项目地址:杭州双湾国际城
项目面积:89方
业主是从事IT行业的精英高管,常年加班,让他对更舒适的家居生活充满了憧憬。我们即在这样的基础上,开始了本案的设计。
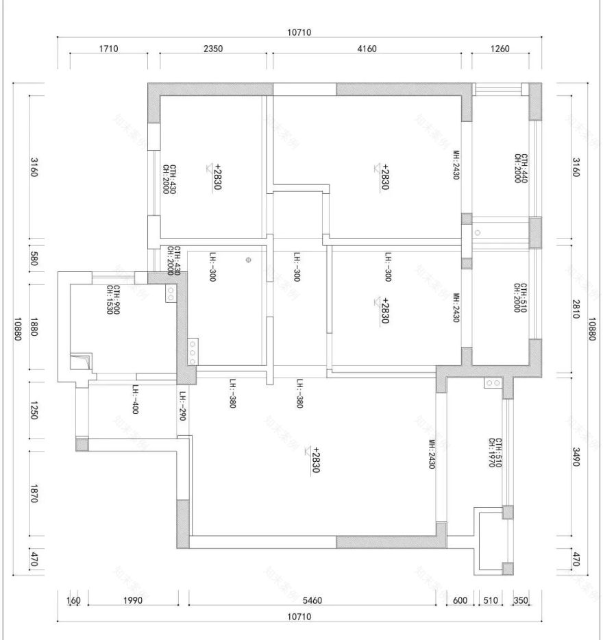
▲原始结构图
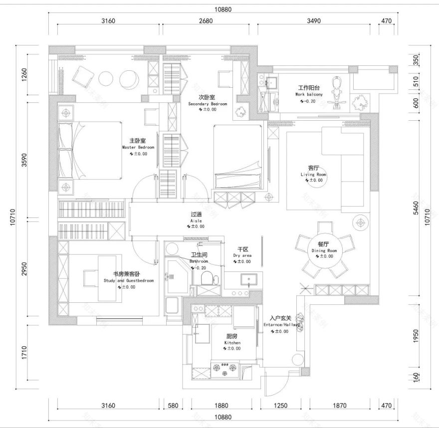
▲平面方案
▲玄关
由于入户过道太窄,
常规的鞋柜设计宽度是32-35cm,入户过道只剩96cm,影响正常的通行,
所以,鞋柜设计要稍动心思。
玄关立面图
在测量业主的鞋子尺码,及清点业主目前的鞋子数量、款式情况后,制定了鞋柜鞋子收纳的方案。
用这种设计的鞋柜,宽度可以减少到26cm。既可以满足鞋子的收纳需求,又可以减小鞋柜的宽度。同时鞋柜的上方可以摆放鲜花,还作为日常放置手包、钥匙的地方。
▲餐厅
餐厅尽可能的多做柜子,以解决业主家居生活过程中越来越多的收纳诉求。可能旅游买回来的很好看的杯子碟子,可能几年后开始喜欢茶艺,买的茶具套装等等。
柜子中间的镂空设计,让业主一家在用餐时候,随手有东西可以放置。可能是饭桌上的纸巾,也可能是烟灰缸、水杯等等。
▲客厅
镂空设计:放置扫地机器人充电,同时视觉上拉伸空间
客厅设计秉承简洁美观,
没有传统意义上的电视背景墙,
而是用巧妙的设计
把收纳发挥到极致,并达到美观
转角的延伸式设计,
让空间延伸,更通透。
洞洞板设计,置物照片、摆件等
▲客厅阳台
由于客厅阳台区域的绿植位置,正对入户门,视线直接触及处,所以从风水上规避用绿植化解。客厅阳台同时还满足了业主洗衣、晾晒一体的功能,同时满足了业主放置跑步机的功能,让家居生活更健康。即使不出门,也能在忙碌的生活中完成健康管理。
▲洗手间
原本的卫生间格局,最大的问题在于卫生间是暗卫。设计师为了解决这个问题,同时实现干湿分离,做如上图格局规划,同时用长虹玻璃进行隔断,既保障了客餐厅不正对洗手间门,又不影响采光,使洗手池能够最大限度的获得自然光。同时,长虹玻璃的设计不封到墙,让身处在客餐厅的人,也能实现不绕路即可洗手,简化动线,实现功能实用最大化。
卫生间内,设计师利用了采光效果较好,同时又能保障隐私的高磨砂玻璃砖来做墙体,实现了卫生间的采光。
▲主卧
▲次卧
▲书房
由于业主工作非常忙碌,经常需要回家加班,所以业主希望他的书房可以尽可能的保障舒适,但同时考虑到后期父母亲过来居住,所以也需要能满足书房可以临时居住的需求,设定了可翻折的床。
家居|生活|美学|电影|牢骚
———————————————————
请留下你指尖的温度
让太阳拥抱你
内观空间设计
咨询设计/合作联系
13252196221 | 庄庄
18758262067 | 王建
客服
消息
收藏
下载
最近




























