查看完整案例

收藏

下载
西 or 东
少即是多
━
无论是从视觉和体验上,还是风格上而言,本案住宅的内部陈设体现出一种自然的清新感,充分的体现了设计师“少即是多”的设计理念。明确的功能分区增加空间有效利用率的同时,也提高了居住者的舒适度。户外丰富的植被与海岸线被用作住宅的自然背景,并将其引入到室内,从而模糊室内外之间的界限。
Whether from the visual and experience, or the style, the case of housing interior furnishings reflect a sense of natural freshness, fully reflects the designer’s “Less is more” design concept. Clear functional zoning increases the effective utilization of the space, but also improves the comfort of the residents. The abundant outdoor vegetation and the coastline are used as the natural background of the house and are introduced into the interior, thus blurring the boundary between the interior and the exterior.
空间的层次感
━
“极致、简约”常常被看作是韩荣的代名词,他独特的设计手法总是与其敏锐的洞察力和细腻的心思相结合。
在本次住宅的设计中,展现了他一贯的设计风格,营造出极简又通透的空间情境。
通过合理的材质建构了空间的层次,而软装造型上的选择和对材质的运用则起到了巧妙的点缀作用。
“Extreme, simple” is often seen as a synonym for Han Rong, his unique design approach is always combined with its keen insight and delicate mind. In this case of residential design, to show his consistent design style, creating a minimalist and transparent space situation. Through a reasonable material to build the level of space, and soft-installed modeling and the use of material plays a smart role in the ornament. “Extreme, simple” is often seen as a synonym for Han Rong, his unique design approach is always combined with its keen insight and delicate mind. In this case of residential design, to show his consistent design style, creating a minimalist and transparent space situation. Through a reasonable material to build the level of space, and soft-installed modeling and the use of material plays a smart role in the ornament.
简约的哲学本质
━
材料的选择对于空间氛围的营造当然至关重要,然而更为核心的,可以说是灵魂的则是设计理念上更进一步的升华,不拘泥于某一种特定的语言表现,尝试去打破固有的界限。
有形之墙 无形之墙
The choice of materials is of course crucial to the creation of a space atmosphere, but the more central, and arguably soul, is the further sublimation of the design concept, not bound to a particular language expression, try to break down boundaries. Visible Wall, invisible wall.
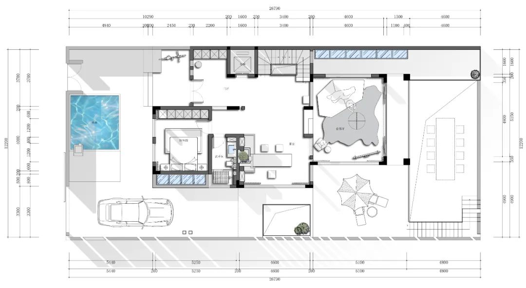
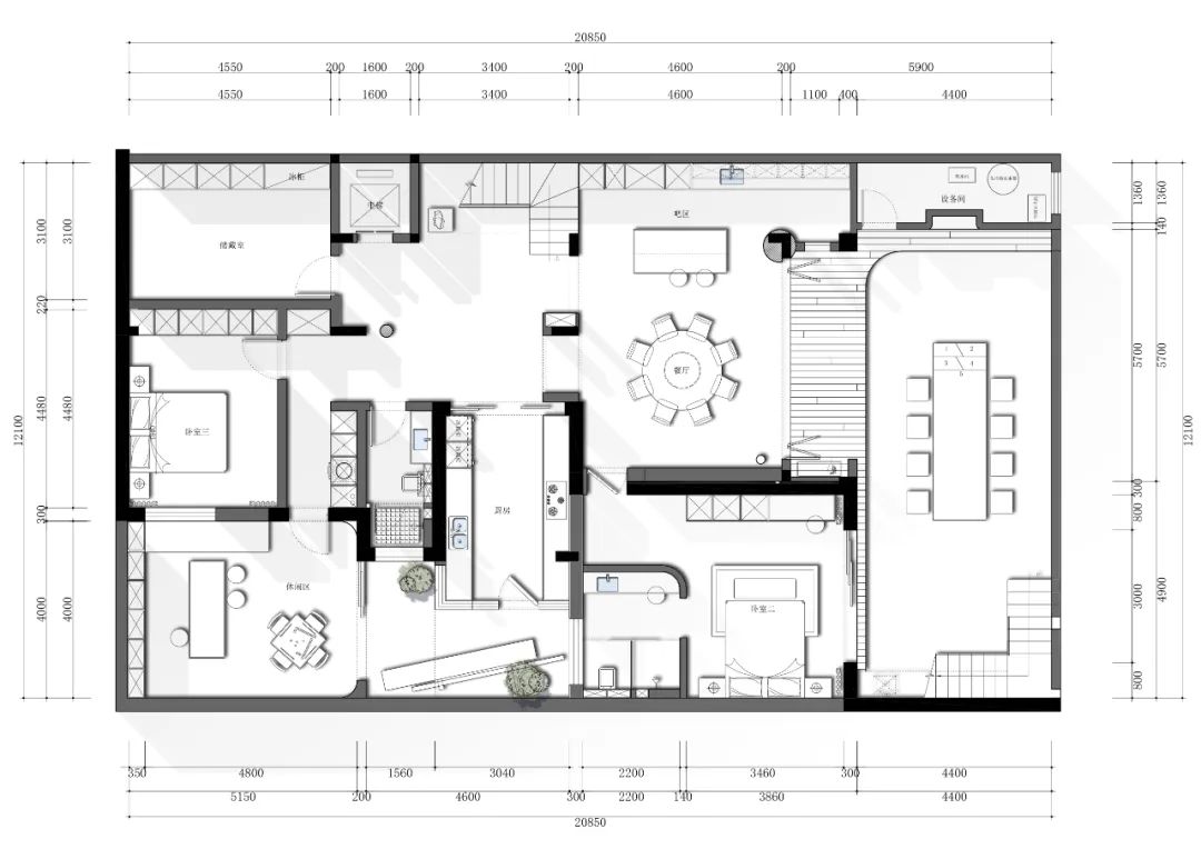
平面布局图
1F
-1F
2F
- 项目信息 -
项目名称:龙沐湾
Project Name:LMW
项目面积:400㎡
Project area:400㎡
项目地点:海南乐东
Project Location:Hainan
设计机构:西安锐格惟辰装饰
Design Company:Xi’anRUGER WEICHEN DECORATION
主案设计师:韩荣
Chief Designer:vcAooo13
韩荣
vcAooo13
━
2022 年度老宅新生城市十大改造设计师
2021-2022 红棉奖室内设计奖
2021-2022 WYDF 大中华区 100 大杰出设计青年
2021-2022 40UNDER40 陕西杰出青年
2021-2022 30UNDER30 西北杰出青年
2021-2022 30UNDER30 中国杰出青年
2021-2022 中国新地产 年度优秀别墅设计师
2020-2021 年度 40UNDER40 中国(陕西)设计杰出青年
2020 红棉中国设计奖 - 年度优秀极简空间设计
2014 年从业至今
中室协(CIDA)高级室内设计师
致力于:室内设计、创意研发、品牌设计等创意领域
专注于:别墅、豪宅、样板间、健身会所、电竞领域等设计
代表案例:紫薇山庄、金地湖城大境、华侨城 108 坊、中海铂宫、逸翠园、永和坊、绿地生态城、龙湖香醍天宸、龙湖源著、春城十八里、西西安小镇、莱安逸辉、紫汀苑、紫楹台等
潜水艇城市健身社区、mango 电竞、水星电竞、noknow 密室剧本杀、魔盒剧本杀、永和锦湾汇售楼部、龙记玖樾庭售楼部、样板间、宝伦律师事务所等
设计信条:设计是一门抛弃的艺术,有舍方有得,用最纯粹的方式来做设计
往 期 作 品 推 荐
· 帅健|白桦林团圆
·韩荣|翡翠城
·
徐一舒
|千水莲 瑜伽馆
西安锐格惟辰装饰工程有限公司创建于 2014 年,是西安市装饰协会、中国室内装饰协会会员单位。以原创设计为核心,汇聚顶尖设计力量,致力于为全国高端客户群体提供高品质生活场景。精准管控集设计、施工、产品供应为一体的全方位服务体系,业务范围涵盖住宅、样板间、办公、会所以及其他商业空间,打造精品工程!
锐格(RUGER),代表聚焦为客户创造价值、代表着客户的尊贵身份。
惟辰(WECHEN),代表惟心惟力、不负星辰,代表着专注、高效的服务理念。
以文化引领生活、以创新致力生活、以艺术探索生活;贴合人性,邂逅时尚、引领潮流、精诚品质、勇于创新,与客户共同缔结生活之美。
△
长按识别关注
别/墅/大/宅/原/创/设/计
add.西安高新区锦业路锦业时代 B3 座 903
add.西安高新区锦业路锦业时代 B3 座 904
add.西安高新区锦业路锦业时代 B3 座 1002
客服
消息
收藏
下载
最近






























