查看完整案例


收藏

下载
不论主体的不同,正好恰逢其时,被潜藏的蓄势以待则展露出来,进而厚积薄发。
“聚世界光,为天下谷”的中国光谷以武汉为发展契机,凭借九省通衢的先天条件和智力密集区的显然优势,积极创建科学之城、追光之城、向往之城的“世界光谷”。
随着科技新贵群体的不断增长,也促使了城市相应配置的自我更新。大家房产联合界上设计,试图颠覆传统的美学标准,引入潮流的艺术语言,呈现空间感官性的另一种解读视角。并以一束光的形式点亮城市,折射出城市的青春活力与神采奕奕。
△项目视频
01 抽象的棱镜
Prism of abstraction
早在公元 10 世纪,东方人就借助“五光石”或“放光石”意识到“就日照之,成五色如虹霓”的自然现象,自此,人类的探索令无所不在的光从神秘的、不可预见的、未知的领域里解放出来。
△Tom Dixon 吊灯
由聚碳酸酯“炼”成的金属质感塑造出迷幻的氛围
而被切割出几何形态明显的棱镜抽象之后运用于建筑的表皮,虚实的巧妙开口塑造了“棱镜艺术生活馆”具有当代性、艺术感和现代属性的物质形态。
东南向外突的体量部分构成了独立建筑体的主要入口,以退为进,结合景观的平面布局,于蔓延的水面置入桥的连接,从一侧迂回而入。从而,迎接访客的前厅随之拉开空间的序幕。
拾级而上,随机生长的“树”的装置艺术生成了自然的意象,穿林而过,由动态屏幕所建构起来的虚拟丛林为访客提供了置身其间的真实感受,或绿意盎然、或瀑布千里、或山涧鸟鸣。
△花艺装置:坐梦 2.0
花艺师:徐飞
这款花艺装置是“坐梦”的新的延续。在原有的基础上,将“朋克金属”与花艺结合。
02大人的游乐场
Playground for Grown-ups
△ B&B 异形沙发
ClassiCon 休闲椅、咖啡桌
Moooi 落地灯
作为空间动线的核心,多功能式连接二楼的艺术楼梯以之于视觉的装置艺术、以之于听觉的摇滚蓝调、以之于交互的社交活动区域等多种复合的形式承担着重要的角色。
高低错落组合的踏步结构赋予了空间戏剧性的有序节奏,行进的路径变得丰富而有趣。水磨石由深色到浅色,予人上升、漂浮之感,循序渐进,也暗示着空间的转折起伏。
与之相对应的南向休闲区则借助室外的景观凭窗布局,家具陈设与空间形态遥相呼应,犹如光透过三棱镜,折射出物质的五光十色,流光溢彩晕染于空间,呈现目不暇接的视觉盛宴。
拆解建筑外立面的构成元素,之型、X 型等不规则的矩阵变化,使大胆、浮夸且具有未来感的流线形体分布各处,建构了立体的、多元的、具有强烈艺术气息的场域氛围,彰显了城市的新潮精神。
△Tom Dixon FAT 座椅
△Moooi 落地灯
03品牌之衍生
Derivation of brand
除了局部的装饰点缀外,由“DAJA”的品牌 Logo 演绎而来的潮玩之物——“大家娃娃”被展示于各处柜体。随机排列、形态各异的 IP 形象把原本的字母抽象化,结合企业形象和文化理念,然后通过拟人的设计处理重新拼接、重组,衍生出独属的超级符号。而纯白的“大家娃娃”也可供“玩家们”尽情撒野,依据自己的喜好,为其增色添彩,赋予了新的生命意义。
△DAJA 娃娃,以 DAJA 品牌 LOGO 衍生而打造的品牌形象
同时武汉的山川地理、人文自然、风土人情也借由灯光装置的视觉化,陈列于休闲洽谈区的墙面,每当夜幕降临,“碧波江城”的独特韵味逐一被展现和铺陈开来,回应场所的在地性。
15m 的转折吧台虽以服务为首要连接于各功能空间,但其简约、凝练的几何线条在灯光的渲染下,变得立体而具有雕塑感。
04功能和指向
Function and Orientation
与一般的销售空间首层作为主要功能展示的不同,“光谷大家中心”的策略是首层为主要生活空间的展示区,以潮趴、酒会的年轻场地为科技新贵们提供未来生活的可能性展示,眼前风景即是审美、兴趣、新潮观念、生活方式的真实投射。
二层在延续首层元素的同时,则以常规的沙盘区、洽谈区、水吧区、展陈区、办公区等功能定位作为补充。清雅美好固然重要,狂野而近乎霸道的浓烈色彩同样令人着迷。事物由两端发展而走向极致,矛盾体的存在因而生发出不可调和的、如棱镜般耀目的视觉美感,映照出年轻活力的生活姿态。
艺术的纷呈想象、人文的绵延传递、自然生活方式的重新建立,有如光在不同载体下呈现的多种可能。光是生命的自我主张,正如对世界的宣言:“我们在这里,把世界照亮。”
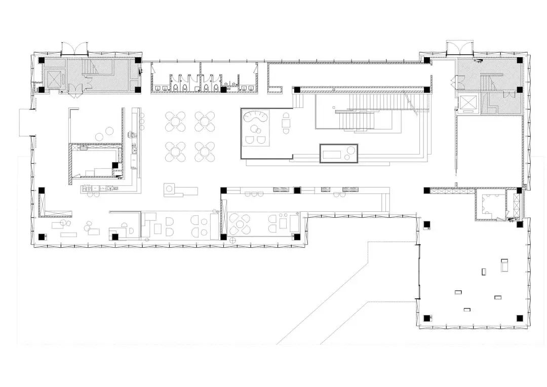
一层平面布置图
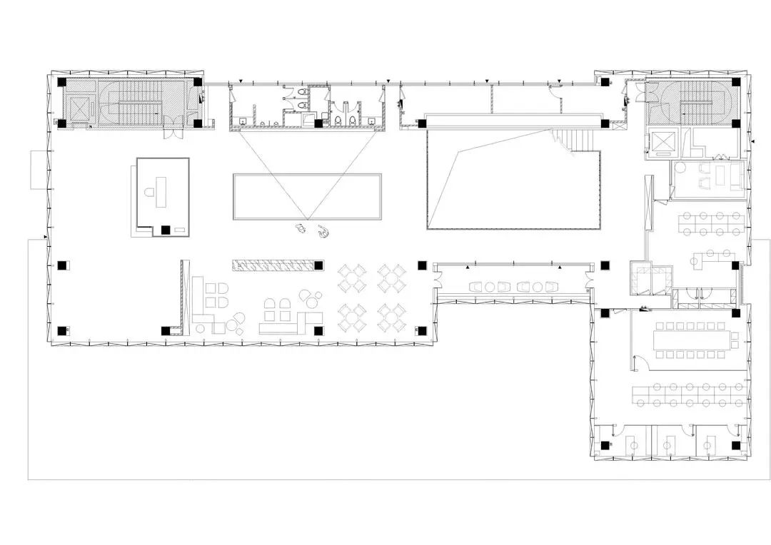
二层平面布置图
左右滑动查看更多图片
项目名称丨武汉光谷大家中心
甲方团队丨大家房产
硬装设计丨界上无界
硬装主创丨张永翼、董韬略、王成龙
软装设计丨界上亦界
软装主创丨夏锦波、赖泽宇
项目面积丨1622.7㎡
项目摄影丨朱迪
项目视频丨徐建超
项目撰文丨无远文字/月球
「界上设计」秉承“设计无界”的设计理念,致力于提供专业的室内软硬装一体化设计服务,由张蓉 Jenny 女士于 2017 年在杭州创立。
作为较早将意式生活方式引入国内的设计品牌之一,张蓉女士曾与 Promemoria、B&B、Molteni&C 等 40 余家意大利知名家居品牌展开长期深度的合作,为高端房企提供售楼处、样板房等整体设计解决方案;为追求个性化品质生活的业主提供精湛的室内设计与陈设服务,并打造了众多标杆性的样板房和高端私宅项目。
创办至今,界上设计作品多次被美国缪斯设计大奖、美国建筑大师奖、TITAN 地产大奖、家居廊中国室内设计年鉴等专业设计奖项及杂志收录。
客服
消息
收藏
下载
最近





































