查看完整案例


收藏

下载
普利兹克奖最年轻的获奖者、“纽约五人组”之一的 Richard Meier 是一位职业建筑师,也是一位抽象艺术家。
在成立个人设计事务所之前,他曾在 Marcel Breuer 的事务所积累了三年的制图经验,之后在普利兹克奖颁奖典礼上也公开表达了勒·柯布西耶以及赖特对他产生的深刻影响。
于 Richard Meier 而言,建筑是一部意韵悠长的史诗,无论是变革还是延续,人们都依然以建筑为载体与过去和历史相连。
Jubilee Church
在成立了个人的建筑事务所后,Richard Meier 最先在住宅设计领域崭露头角,他的代表性作品 Smith House 使用纯粹的白色与雕塑般的几何造型形成了一种超凡脱俗的建筑风格,并在后期逐渐发展出被称为“白色派”的建筑流派。谈及此时,Richard Meier 强调了白色的包容性与可塑性,这也是白色派建筑师们乐于用白色来表达的重要因素。
High Museum of Art
获得普利兹克奖无疑是 Richard Meier 的职业生涯中最浓墨重彩的一笔,之后,他获得了 20 世纪最重要的建筑委托项目之一,即盖蒂中心(Getty Center)的设计。这个集基金会、博物馆和美术馆于一体的综合体将光与空间的组合发挥到了极致,并凭借天然石材的使用积极呼应所处环境,使其本身也成为了景观组成部分。
The Getty Center
随着建筑事业的快速发展,Richard Meier 一跃成为国际上最主流的建筑师之一,普利兹克奖陪审团的引文称他“创造了一种个性化、充满活力的原创性建筑结构”,时至今日,其建筑的魅力依然能够契合人们当下的审美和客观的需求。
01Smith House
美国·康涅狄格州
Smith 夫妇的委托无疑助力了他职业生涯的发展,在这座住宅建成后,Richard Meier 开始成为建筑界的超级新星,更吸引了后续一系列的项目委托。
Smith House 位于康涅狄格州的岩石海岸中,由于场地的岩层坚硬难以平整,Richard Meier 选择将空间向上延伸,以减少建造的成本。
从外部看,建筑的结构和造型直观的展现出 Richard Meier 的白色派精神,面对海景的东南立面几乎全由玻璃组成,西南面则相对封闭,这种作法能够减少西晒对室内环境的影响,同时避免玻璃受热而膨胀开裂。
住宅一层的客厅凭借挑空的玻璃幕墙打破了室内外的界限,在视觉上与海面相连通。
与此同时,Richard Meier 将厨房、厕所等功能性空间布置在远离海景的内侧,为餐厅、卧室等房间留出了最佳的观景面。
住宅内外所使用的白色既是人造的“风景”,也是自然的“画框”,它折射出的,是 Richard Meier 对于人与自然之间协调关系的理解。
左右滑动查看更多图片
02Douglas House
美国·密歇根州
在完成了 Smith House 的建造后,一对慕名而来的夫妇委托 Richard Meier 在密歇根湖畔的一片倾斜场地中建造了一座风格相似的住宅。
由于道路至场地之间的坡度很大,Douglas House 不得不改变了常规的空间结构,将入口设置在住宅顶层,衔接整体的场地高差关系。
步入门厅后,空间朝西面打开,并延伸至能够俯瞰湖面的大型屋顶平台。
从屋顶顺通道而下,首先抵达的是起居室和餐厅,与 Smith House 相似,一面几乎跨越两层楼高的玻璃幕墙定义了通透的空间氛围,此外,Douglas House 还设有户外的楼梯和休息平台,增强室内外空间的流动。
纯白的体块使这座建筑自所在的环境中脱颖而出,即便过去了五十年之久,其设计和理念对于当代来说依然历久弥新。
2016 年,Douglas House 被列入了美国的国家史迹名录,再次以最初的建筑形态呈现给公众。
左右滑动查看更多图片
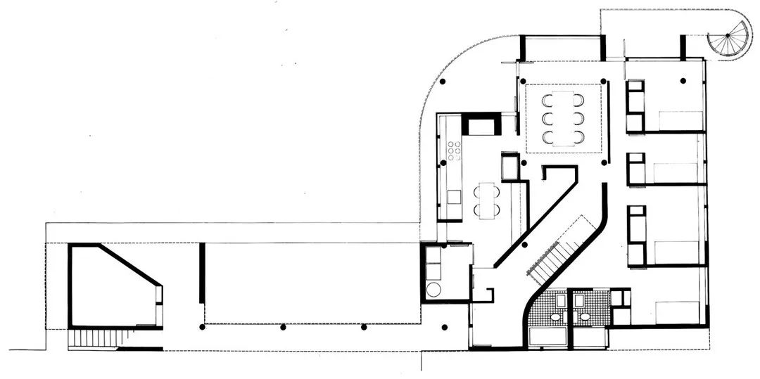
03Saltzman House
美国·纽约长岛
Saltzman House 坐落在长岛尽端的一片平坦的场地上,毗邻开阔的海岸和观景胜地蒙托克角。Richard Meier 将住宅分为公共和私区两个体块,并利用一条廊道进行连接。由于在地面层难以观赏到海景,他对空间进行了置换,将起居室等公共空间调整至二层和三层,并透过带状的长窗和两侧的玻璃幕墙与景观互动。
包括 Saltzman House 在内的早期建筑作品为 Richard Meier 标志性的设计风格奠定了明确的基础,他对于白色的使用、几何形式的叠加与层次感、空间的复杂性与美感,以及他对光线的处理,在后期乃至当下的作品中依然清晰可见。
左右滑动查看更多图片
04Oxfordshire Residence
英国·牛津郡
这座位于牛津郡的住宅因其开阔的视野和景观而备受瞩目,Richard Meier 的设计更是与场地相互契合,给人带来了丰富的空间体验。
在构思这个项目时,他主要以可持续性以及场地历史为核心的设计理念,将英国庄园的历史和建造传统融入到现代建筑之中。
住宅的结构和朝向呼应了场地的地形,其屋后是茂密的树林,前部则是开阔的草坪。
Richard Meier 依据场地的光照条件对墙壁和立柱进行组合,并以居住者的切身视角和尺度为基础,构建了一座纯粹的建筑美学作品。
左右滑动查看更多图片
参考文献:https://rmparchives.xyz/?projects=saltzman-house-2
编辑:Neiwai
撰文:YouChuan
校改:YueQiu
编排:Holy
版权:Richard Meier
原创文章,不支持任何形式的转载。
建筑|室内|设计|艺术
邮箱:neiwaispace@qq.com
客服
消息
收藏
下载
最近













































































