查看完整案例


收藏

下载
Leonardo Savioli 是一位专注于抽象表现主义和相关“非正式问题”研究的艺术家,早在 1950 年代,他就已经开始尝试实践具有现代主义和粗野主义色彩的建筑设计。Leonardo Savioli 认为,空间是需要人为感应和触发的“物”,所以对于建筑师来说,人与“物”的统一性才是设计的核心,只有身体力行的塑造,才能触及空间的本质。
0
1
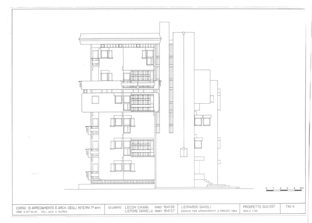
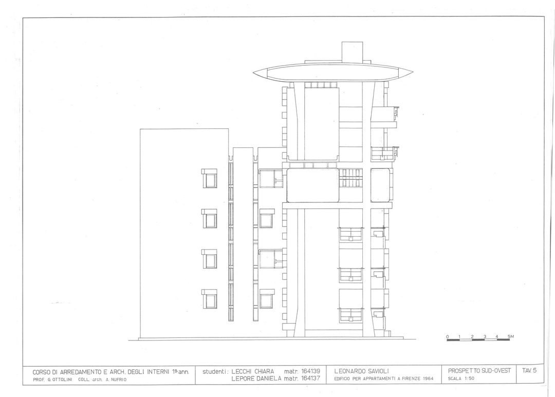
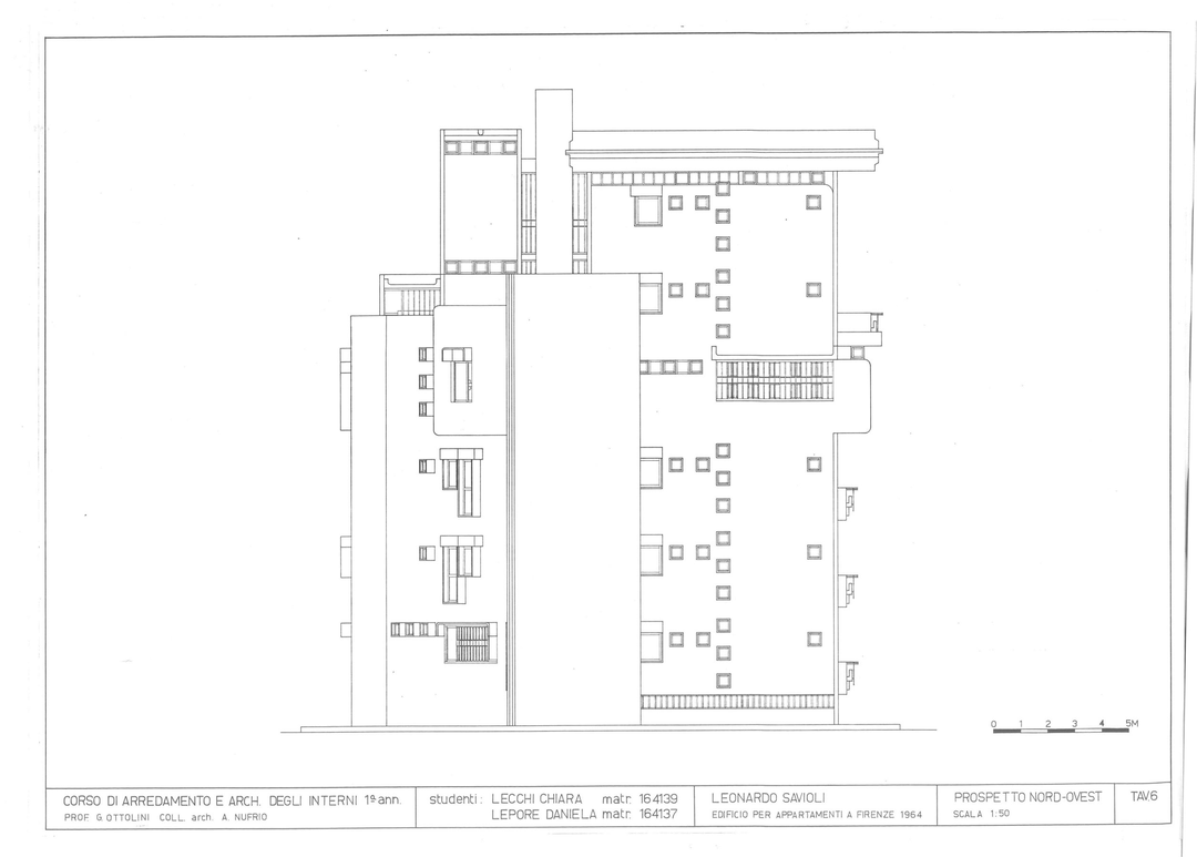
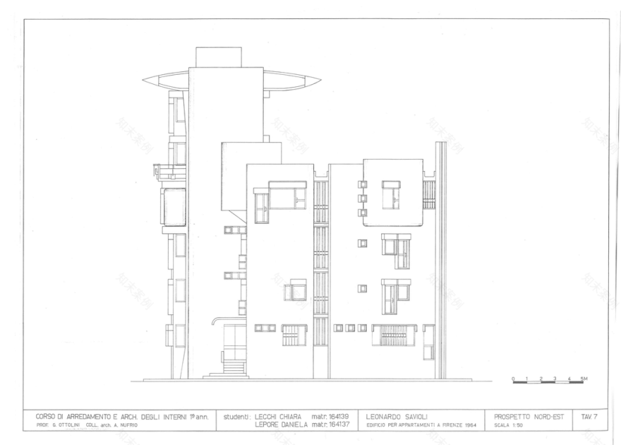
Edificio Via Piagentina
意大利·佛罗伦萨
这座 6 层高的转角公寓由 Leonardo Savioli 于 1964 年为 Bacci 家族而设计,其建筑外立面造型融合了粗野主义风格以及佛罗伦萨传统的塔楼结构,通过中心的楼梯和垂直电梯将不同的结构体块连接起来,形成了接近 60 度角的特殊平面。
最受公寓内居住者欢迎的便是丰富的露台空间,Leonardo Savioli 通过预制的混凝土构件满足了不同空间的硬性需求,以实现空间上的自由组合,并由此形成了外立面灵活的进退关系,为原始的混凝土外观增添了几何性的韵律和美感。
左右滑动查看更多图片
02Cimitero
意大利·蒙特卡蒂尼
Cimitero 是一座为了悼念与缅怀而建造的公墓,其设计希望将场地融入自然的山体环境之中,为生者和逝者创造一个安静的共处空间。公墓建筑由纯几何形式的混凝土构成,向上卷曲的特殊屋顶具有勒·柯布西耶式的建筑色彩,也代表着 1960 至 1970 年代大众的审美取向。
公墓的主体结构朝向远处的城镇呈阵列状排布,从屋顶圆形切口倾泻而下的自然光照亮了一个类似地下墓穴的内部空间,人们可在此悼念和缅怀逝者。Cimitero 内还有一两个类似望远镜的双筒结构,有如建立了一座桥梁,象征着生与死之间的对话。
03Mercato dei fiori
意大利·佩夏
佩夏小镇是意大利最大的花卉市场,作为 Valdinievole 平原上的主要城镇,它既是一个旅游中心,也是国家最重要的园艺中心。Mercato dei fiori 在过去正是佩夏的花市之一,Leonardo Savioli 凭借这个项目获得了巴西圣保罗现代艺术博物馆第二届双年展的一等奖。
为了适应日新月异的贩售模式,花市的建筑设计十分简洁有力。由混凝土制成的拱形屋顶有着如同薄膜般的张力,在严格的精确计算后以无柱的状态轻巧地架于两侧平房的屋顶上,遮罩住了底下的空地,为商人和游客提供可自由使用的市集空间。
04Villa Tadei
意大利·菲耶索莱
Villa Tadei 位于佛罗伦萨周边的小镇菲耶索莱中,Leonardo Savioli 将原始裸露的混凝土体块沿横向延展,并依靠混凝土的框架结构处理与场地底层的高差,在视觉上使建筑更加轻盈。房屋的主要空间伴随咬合的体块布置于二层,屋顶层另有一间书房和露台,满足业主户外娱乐活动的需求。
左右滑动查看更多图片
05Villa Bayon
意大利·佛罗伦萨
从当代的视角来看,粗野主义的建筑总是带有一定乌托邦的色彩。受到勒·柯布西耶的启发,Leonardo Savioli 利用钢筋混凝土的可塑性,创造了一个大型的船型屋顶,并在这个引人瞩目的结构下方利用几何体块堆叠出相对独立的居住空间。体块之间动态的组合给予了使用者最大化的自由性和便利度,也为建筑带来了丰富的光影变化,同时兼顾功能的具体实用与建筑形式的内在美。
左右滑动查看更多图片
编辑:Neiwai
撰文:YouChuan
校改:YueQiu
编排:Holy
版权:Leonardo Savioli
原创文章,不支持任何形式的转载。
建筑|室内|设计|艺术
邮箱:neiwaispace@qq.com
客服
消息
收藏
下载
最近































































