查看完整案例


收藏

下载
提起印度,总是很难避开其悠久的历史渊源和浓厚的宗教氛围,但自 1991 年经济改革以来,世界各地的文化和意识形态蜂拥而至,对印度的社会形成新的生态,尤其建筑界,逐渐发展出兼具本土特色和现代元素的建筑风格,为当地的建筑发展提供了更多的可能性。
0
1
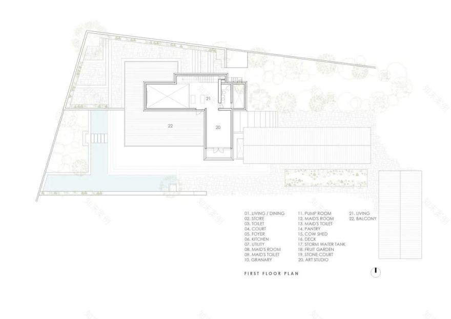
House of Earth and Stone
Studio Motley
对于朋友聚会或周末度假的空间而言,其建筑结构和组织方式都会因环境的不同而产生变化。这座位于班加罗尔的赤土色建筑是委托人用于度假休闲的场所,因此,整个室内并没有布置卧室,几个开放的起居空间通过滑动的折叠门与室外相隔,可以依照业主的需求完全闭合,或依次敞开。
建筑的取材和建造工艺与当地的自然环境息息相关,在当地开采的土壤被用于夯筑墙壁,与之相映衬的木桁架则由雪松木制成,地面乡土气息的瓷砖结合肌理粗野的混凝土,构成了整座住宅的基调氛围,呈现一种轻松而闲适的度假生活状态。
左右滑动查看更多图片
02Narrow Brick House
Srijit Srinivas - ARCHITECTS
Narrow Brick House 位于特里凡得琅的一片狭长场地上,清除两侧绿地后,建筑仅有 4.8 米宽开间的发挥尺度,但基于此提出的解决方案并没有受到地形的限制,相反,设计师巧妙利用了场地的纵向坡度,通过阶梯式的空间布局降低了建造成本,并令光线和空气能够在住宅内自由流动。
住宅的一层布置了起居、用餐及厨房的空间,并设有一个卧室套间。
二层除了一间带阳台的卧室外,还配有供业主练习乐器的房间。
为了适应狭窄的面宽,住宅内的物件都经过特殊的处理,不管是衣柜、置物架还是窗户,都依据精细的空间规划尽可能地减少对空间或视野的阻碍,令可视范围内尽量开阔。
左右滑动查看更多图片
03Prairie House
Arch.Lab
这座位于昌迪加尔的住宅归属于一个三代同堂的大家庭。为了满足家庭成员互动的同时提供个人独处的空间,每一代人都拥有相对独立的活动区域,并通过开放的庭院和通廊进行贯连。一层中心位置的喷泉水景,引导人们进入包含健身房、家庭影院和台球室的地下一层。
设计师以“家的庇护所”为概念,屋面采用平板的覆盖结构,伸展出挑檐的平台,架空的屋顶与红砖表皮的建筑体块形成鲜明对比,以悬浮的形式削弱厚重的建筑体量,为住宅增添了几分轻盈之感。
左右滑动查看更多图片
04V House
Moad
V House 是一个承载幸福和静思的家,为了远离高度网络化的生活方式,并重点关注生活的舒适度,设计师有意识地模糊了日常起居空间的特定功能,为业主保留了足够自主使用的空间。住宅的一层有着幽静的氛围,明亮开敞的二层则结合屋顶花园形成了围和的结构,令自然成为建筑的一部分,相融共生。
左右滑动查看更多图片
05Plain Ties
Matharoo Associates
Plain Ties 位于苏拉特的一个社区内,场地周边环绕着高层公寓,因而设计师改变了建筑的朝向,并结合当地的场地条件,将住宅的部分空间藏于地下,使地面以上的部分能够更好的与景观结合。住宅的内部以一个圆形的客厅为核心,走道和其他起居空间并围绕着展开,通过特殊的空间设计促进家庭成员之间的互动,形成家的凝聚力。
左右滑动查看更多图片
编辑:Neiwai
撰文:YouChuan
校对:YueQiu
编排:Holy
原创文章,不支持任何形式的转载。
建筑|室内|设计|艺术
邮箱:neiwaispace@qq.com
客服
消息
收藏
下载
最近














































































