查看完整案例


收藏

下载
Dominique Coulon & Associes位于法国斯特拉斯堡中心,是一家享誉国内外的建筑师事务所。
Dominique Coulon以其在法国完成的大量教学楼和文化设施而闻名,他们参与了广泛而多样的项目,包括媒体图书馆、音乐学校、礼堂、综合学校、游泳池、体育设施、养老院和住宅等。
Dominique Coulon & Associes以他们的直觉引导设计每一个项目,结合对比性和复杂性的方式,其中外部建筑同时也暗示着内部的丰富性。空间质量和自然光是每个项目的基本元素,空间始终是由精确的几何图形构成。
01.
Henri Dutilleux
音乐学院
这座建筑位于城镇的上部,背对着树林,形成了建筑区域的最后边界。与开阔的景观相呼应,它面对着山顶上的贝尔福特狮子。在这个强烈的背景下,建筑提供了它的坚固性,几乎不透明的灰色混凝土块。它的表面有一种不同寻常的暗示着植物或大理石的纹理。这是通过两种深浅的蓝色滴画来实现的。滴下的油漆给建筑的表皮增加了深度和厚度。表面在光的作用感觉就像是在振动一样。
混凝土整体散发着神秘感,建筑以不同的体量凝聚成一个项目。该建筑包含两个礼堂、一个剧院、一个大型舞蹈室、一个图书馆、教室、行政办公室和大量不同体量和区域的工作室。
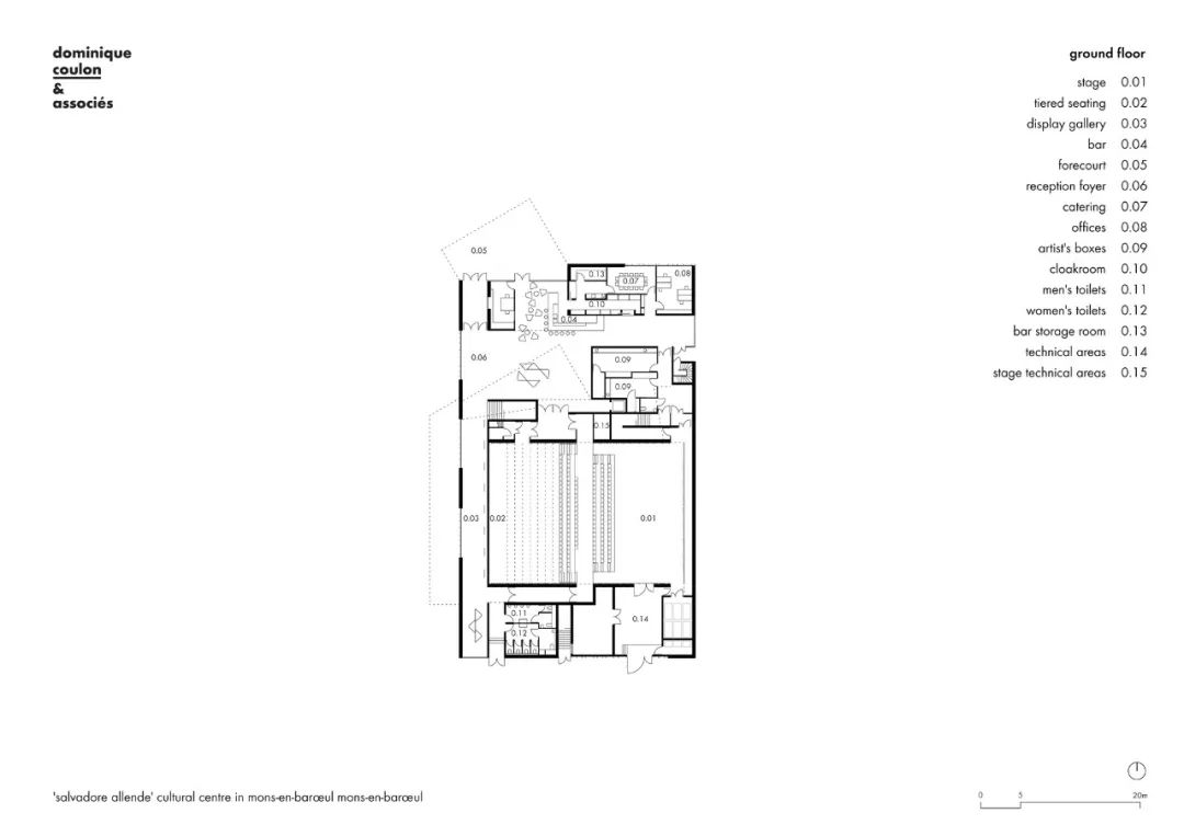
02.
Allende
表演厅和排练工作室
Allende位于城镇Mons-en-Barœul文化中心枢轴点,也是城市地标。它包括三个音乐工作室,一个500个座位的模块化礼堂,一个酒吧,一个展览馆和一个大排练室。
03.
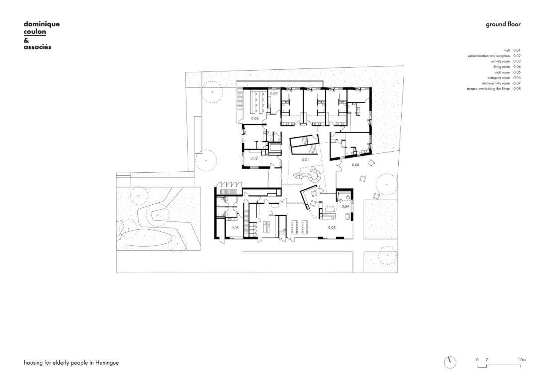
Huningue
老年公寓
这座老年住宅位于莱茵河岸边。场地的特殊情况允许我们将公共区域和大厅转向河流:居民可以看到过往的船只。该项目由25个50平方米的住宅、一个由三个部分组成的餐厅、一个电脑室、一个业余爱好工作室、一个菜园和一个petanque场地组成。
旨在增进居民之间的关系,集体生活空间尽可能宽敞,有充足的自然光,还有鼓励交流和社会互动的场所。
楼梯位于建筑物的中心,结合广阔的中央空间,为空间带来了流动性。楼上的露台将光线从南方引入建筑物的中心。
红色的混凝土、赤陶土和木材营造出一种亲切的氛围。外面,建筑四面都是砖。我们选择的工艺砖是非标准的,不规则的。墙壁能捕捉到阳光;通过强调其乡村港口设置,建筑将自身与莱茵河的历史联系起来。
04.
Human Rights
斯特拉斯堡体育中心
自1948年以来,斯特拉斯堡一直是欧盟的首都。它是欧洲议会和欧洲人权法院的所在地。该市当局很自然地决定提议一项教育方案,旨在通过建立一所欧洲学校来满足在该市工作的欧洲和国际公务员的期望。该学校的教育模式基于多元文化的方法,广泛使用不同的语言,并强调儿童的自主权和父母的参与,涵盖从托儿所到欧洲学士学位的全部课程。学校位于Robertsau绿树成荫的社区,靠近欧洲和国际机构。学校有近一千名学生,为了满足当地居民的需求,斯特拉斯堡决定建立一个开放的体育中心。该计划要求建立一个多功能体育馆和一个多功能厅,以作为不涉及体育赛事的场地。
05.
Pélissanne
多媒体图书馆
佩利桑镇是法国普罗旺斯的一个古老的要塞城市。新媒体图书馆位于历史悠久的毛罗公馆,建于1642年,位于城市花园的中心。因此,该建筑是丰富的景观和遗产文脉的一部分。该项目是两个时代和两个维度之间的对话:现有建筑的修复与扩建体块的平衡。这种对话体现在立面的表面同质性与所用本地材料(例如,cher石和罗涅斯石材)的不同阴影之间的对比中。
06.
THIRD-PLACE
多媒体图书馆
法国事务所Dominique Coulon & Associes在法国的Thionville完成了一座媒体图书馆,其特点是波浪形的立面向上升起,露出面向弯曲庭院的玻璃丝带。
THIRD-PLACE为法国东北部的Thionville公社提供了一个多媒体图书馆、音乐工作室、一个广播媒体室、一个礼堂和一个咖啡馆。
07.
Theodore Gouvy
剧院
Freyming-Merlebach是洛林地区一个有着悠久工业历史的小镇,在19世纪的煤矿工业的推动下发展起来。
自从20世纪90年代矿山关闭以来,法国东北部的这个地区的失业率急剧上升,文化被视为解决城镇随之而来的社会和经济困难的一种可能,就像邻近的鲁尔地区一样。弗雷明-默勒巴赫的历史剧院已经恶化,由于地下隧道被废弃,出现了许多裂缝。旧的能容纳500人的礼堂需要更换,而且它也变得太小了。
“Theodore Gouvy”剧院的选址是在freying - merlebach的Place des allied。市政当局迫切希望这个项目对于当地的发展给予新的动力,该地区靠近市中心,紧邻新的市政厅和一个购物中心。地理位置优越,有足够的停车容量供观众使用。剧院已经成为城镇更新的象征,它的位置正在城镇中心产生一个新的公共空间。剧院的节目是多学科的,涵盖了现场表演的各个领域:古典戏剧(包括大型布景的使用)、当代戏剧、音乐剧和歌剧、舞蹈等。“Theodore Gouvy”剧院为当地居民提供了一个700个座位的礼堂,有专门的表演区和后勤区。
客服
消息
收藏
下载
最近


















































































































