查看完整案例


收藏

下载
Shinichi Ogawa于1980年成立Shinichi Ogawa and Associates,并在东京和广岛设有办事处。
01.
Emil Nakijin Hotel
日本 2020
EMIL NAKIJIN是一个拥有5个房间的简约豪华酒店,位于海拔160米的日本冲绳县的中津山的北边悬崖之上,一望无际的自然风光尽收眼底。
根据布局规划,这条路一直通向酒店南部,在那里每个客房都可以俯瞰北向悬崖的景色。每间客房的内部由一个睡眠空间、生活空间和一个淋浴间组成。每个房间的外部由一个露天浴室、一个露台和一个无边泳池组成。内部和外部通过大型定制不锈钢滑动玻璃门连接。
从酒店南侧的步道进入客房,令人心旷神怡的大自然就展现在你面前。打开玻璃门,内部,外部,自然和海洋无缝连接,自由舒适的感觉迎面扑来。另一方面,酒店的南面呈现了一个没有开口的巨大立面。通向客房的走道是一个只允许光线从庭院进入的空间,旨在形成一个与客房形成对比的空间。
建筑元素包括最小的楼层、墙壁和屋顶。极简主义的白色空间仅包含必需品,没有多余的装饰,允许不断变化的自然光、颜色和空气进入。这是一个你呆在室内也能感受到户外美景的地方。该项目是一家独家精品酒店,客人可以体验极简主义空间的同时,同时尽享全景。
02.
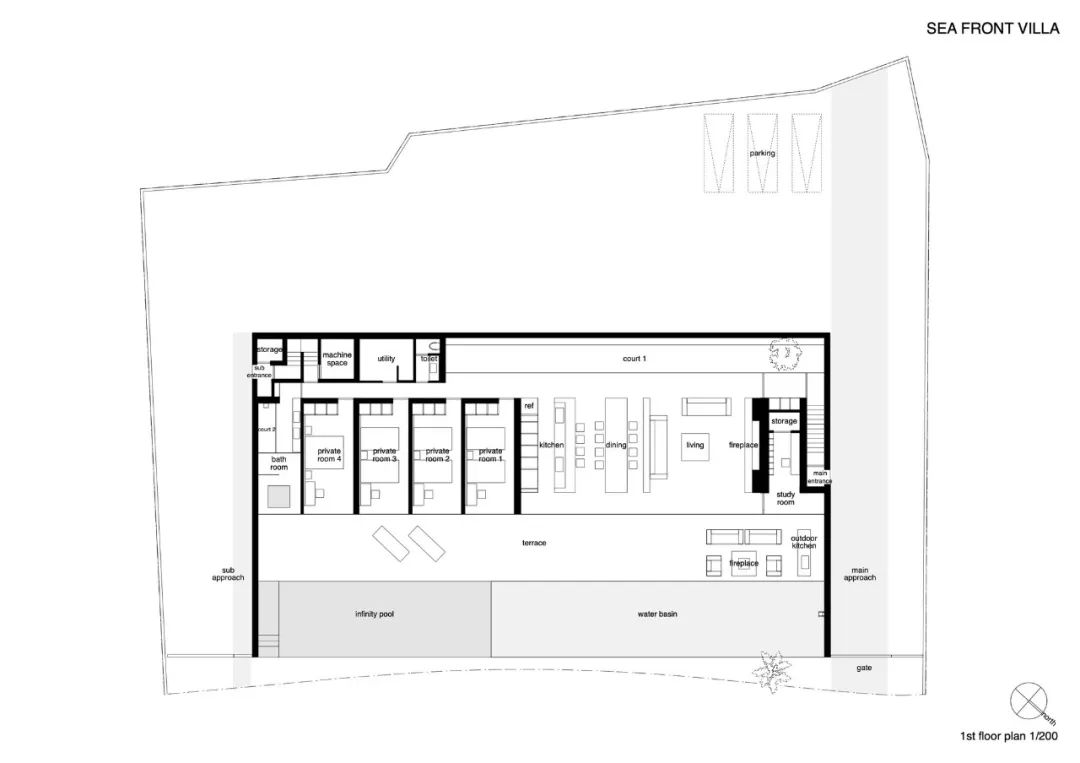
Sea Front Villa
日本 2020
这栋楼是一栋单层别墅,
坐落在一个可以俯瞰大海的绝佳位置上。客厅、餐厅、厨房、卧室、浴室和书房都规划在可以看到大海的北侧。每个房间都有一个大的落地窗,无缝连接平台,游泳池大海,并可以看到美丽的海景。南区计划在客厅、餐厅和厨房中规划一个庭院,避免阳光直射以及良好的通风。
由于基地与大海之间有一条道路,因此解决方案是将一楼从路面抬高2.5米,以确保每个房间都能看到海景,而不是从道路上看到建筑。
为了实现最小的空间,只使用了由家具构成的间接照明。
此外,业主通过安排新的照明来规划最大的空间。
03.
Seaside Villa
泰国 2017
这座周末度假屋建在泰国中部度假胜地华欣的遗址上。这是一间精致的周末房屋,可以俯瞰所有美景。坐落在一个细长的地方,宽50米,从主要街道到海滩的长度为300米,您可以在这里的任何地方欣赏受一个美丽的沙滩和一个优雅的海滩度假胜地。
在这个地方,除了土地所有者的之前的度假别墅之外,海滩前还有可供六名家庭成员每人使用的六间别墅,所有家庭成员可以共享户外餐饮、户外生活、游泳池、健身房、桑拿、厨房。
每个房间由高4米、长6米和长20米的空间组成,包括一个天花板高度为5米的私人客厅,从海边的开口到建筑的一半、带浴室的另一半和有不同规划的阁楼。
户外用餐和家庭聚会的室外生活由一个长44米的大门相连,长度为40m的无边泳池通向大海。海滨别墅能够在不同的空间中感受度假胜地,从不同的私人空间到公共空间。
04.
Seaside House
日本 2017
这座住宅由没有窗的混凝土墙掩盖了房屋一侧的视野,而玻璃和悬挑的无边泳池则充分利用了另一侧的海景。
住宅面向街道的北立面由三个没有开口的白色盒子组成,只有一棵棕榈树作为焦点。停车场被两个较低的直线体块隐藏,它们彼此以不同的角度坐着。
这栋名为“海边小屋”(Seaside House)的房产的另一侧面向太平洋,那里有一个露台兼无限池,悬在一条运行中的铁轨上。
两层的住宅建在一个绝佳的位置上,在那里可以俯瞰从七市滨海岸延伸出来的壮丽的太平洋。
从北侧的立面是一个最小的白色盒子,没有通往周围环境的开口,而是种了一棵棕榈树。“在俯瞰太平洋的南侧露台上,它由一个悬挑悬出的白色体量组成。
一层的房间被安排成线性的形式,客房、浴室和主卧室相互平行。
每个空间都有全长玻璃窗,为露台、游泳池和远处的大海提供不间断的视野。
二楼是一间开放式的房间,这里有客厅和餐厅区,还有一间厨房。通过滑动玻璃墙可以直接进入室外阳台,充分利用海景。
客服
消息
收藏
下载
最近











































































