查看完整案例


收藏

下载
NOA *是一家屡获殊荣的建筑设计工作室,由LukasRungger和Stefan Rier于2011年创立,位于意大利波尔扎诺和德国柏林。NOA *代表着协作性职业道德的基本表达:年轻的建筑师、设计师和艺术家团队依靠跨学科的设计方法,这种方法根据各自项目的具体要求不断变化。“涌现”的概念,即整体远远超过单个部分的总和,成为NOA *设想的每一个设计的整体方法的中心策略。
01.
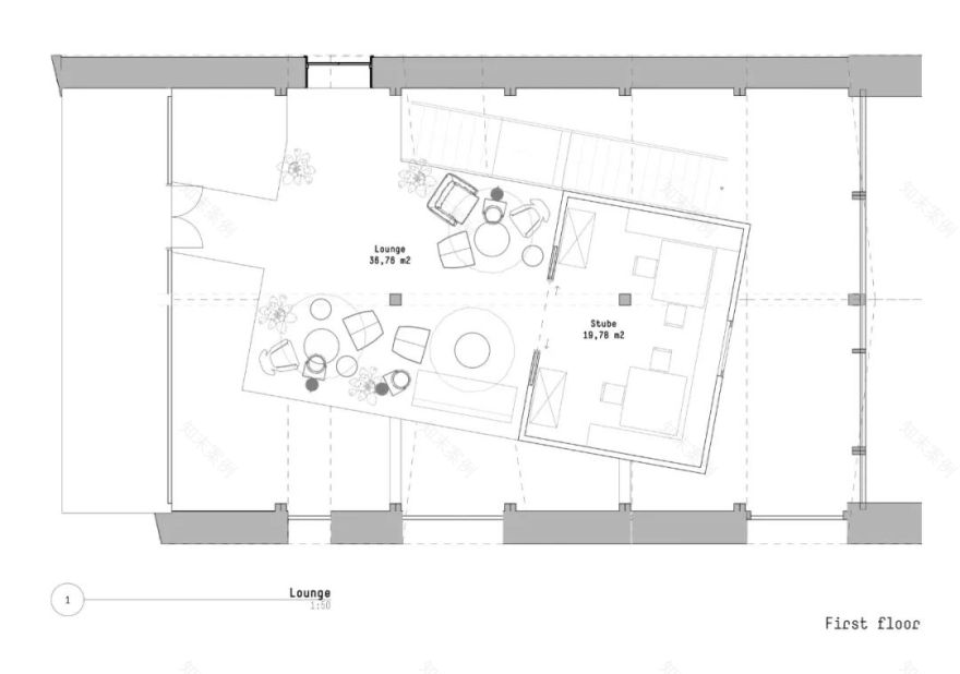
Apfelhotel
Torgglerhof
意大利
2020年
正如那句古老的格言所说,苹果不会落在离苹果树很远的地方。在萨尔托斯的南蒂罗尔,Apfelhotel年轻的新一代业主们在坚守传统根基的同时,也在开拓新的领域。NOA*的新奇设计和建筑唤起了这个历史悠久的酒店的复古魅力,同时创造了一个感官和共享时刻的绿洲。
02.
Südtirol Home
意大利
2020年
有可能品尝,闻到和感觉一个国家吗?是的,它是存在的,借助最细微的差别,noa *带领Südtirol-Home的客人在安托尔兹(Antholz)进行了一次激动人心的嗅觉和视觉之旅,探索了南蒂罗尔(South Tyrol)。
南蒂罗尔——一个可以描述上千种事物的词汇,现在被转化为建筑形式,以庆祝在安索尔斯举行的第51届冬季两项世界杯,顶级运动员、名人、政治家、组织者和游客聚集在这里。围绕着一个“乡村广场”的是10栋建筑,其中最大的是苏蒂罗尔之家(Sudtirol-Home),这里将成为2020年这个顶级体育赛事的宾客、获胜者和记者的家,他们最重要的目标是在这里做一件事:感受南蒂罗尔。
03.
Mohr Life Resort
奥地利
2018年
noa*以其最新的项目登台亮相:一个设计成剧院的健康区,对可用空间有多种不同的诠释。一个全新的、有别于传统的水疗概念。
南蒂罗尔州的建筑利用了奥地利蒂罗尔市中心令人难以置信的自然环境,设计了一个当代的“激动人心的”建筑。玻璃和水泥与环境的形态、文化和历史不断对话。
04.
Ötzi Peak 3251m
意大利
2020年
当雨滴开始它漫长的入海之旅时,新的视角就会出现:在Schnals Valley冰川的新观景台上,开阔的视野会让你的思维焕然一新。
这个特殊的地方有一种崇高的感觉,就在Schnals山谷冰川山脊的顶端,意大利令人印象深刻的高山景观在这里的水库之上高高耸立,而奥地利就在不远处。这种独特的地理位置,决定了一滴水是流向地中海还是黑海。
NOA * 丨哥们不设计房子 只构造故事
客服
消息
收藏
下载
最近

























































































