查看完整案例


收藏

下载
MK27工作室是一家以圣保罗为基础的建筑事务所,由巴西建筑师和设计师Marcio Kogan领导。该公司成立于20世纪70年代末,今天由30名建筑师和世界各地的合作者组成。该团队的建筑师们是巴西现代主义一代的伟大仰慕者,他们试图完成重新思考这个标志性建筑运动并赋予其连续性的任务。MK27工作室的项目注重形式的简洁,对细节的精心设计和重视。
Marcio Kogan(1952年3月6日出生于巴西圣保罗)1976年毕业于长老会麦肯齐大学建筑与城市学院。他是工程师Aron Kogan的儿子,Aron Kogan在20世纪50年代和60年代因设计和建造圣保罗的大型建筑而闻名,比如Sao Vito大厦和Mirante do Vale大厦。在他的carecer开始的时候,Marcio和他大学时的朋友Isay Weinfeld把他的时间用在了电影和建筑上。1988年,两人制作了一部叫做“Fire and Passion”的电影,在1995年至2004年之间,他们一起进行了5次关于建筑和戏剧的展览。
01.
Lima House
Lima House是mk27工作室在秘鲁利马的第一个项目。该项目位于位于市区,宽度为16米,深度为30米,我们考虑到我们与地块的布置和大小有关的所有可能性,尽力为客户创造居住在联排别墅的独特体验。
我们的解决方案是创建3个重叠的盒子。同样的方式也被用于内部,这些内部被划分成程式化的盒子,有木制的饰面板和门,同时起到解决收口的作用。
外部盒子是由板条混凝土制成,前后立面覆盖不同的材料。这些材料形成统一的视觉效果,并且巧妙的隐藏入口。尽管混凝土结构是坚固笨拙的,但由于该地区地震频发,悬臂结构的创造出一种轻盈的感觉。
02.
Fasano Itaim Residential
在设计了Jardins附近的Fasano酒店多年之后,我们被邀请设计Fasano在Itaim地区的新多功能开发项目的内部。作为世界公认的提供最佳美食和酒店的家庭经营,Fasano跨越了100多年的历史。
这一新开发的综合酒店、酒吧、餐厅和住宅公寓将提供卓越的服务,使Fasano在巴西和国际上享有盛誉。单层四套公寓,内部由MK27工作室设计。在设计这个项目时,我们努力保持Fasano品牌的特征和传统,该项目位于一个日益活跃和年轻的社区。
采用天然材料,如乱石板地板、木条天花和墙壁上覆盖着胡桃木饰面,营造出一种温馨的公寓氛围。客厅的窗户是一整面的超大落地窗,光线非常充足。对面的墙壁上有一个整面墙的书架和一个Armani griz大理石壁炉,将社交区与私人区分隔开来。双层亚麻和编制窗帘过滤和平衡了自然光、饰面板和家具深色表面之间的明暗对比。
03.
Flat#5
5号公寓的室内设计项目试图探索公寓的空间界限,创造一个舒适的环境。
200平米的区域被改造成一间卧室的空间,并被重新组织成两个主要区域:社交空间,包括客厅和餐厅,带有一体化厨房;建筑背面则是的私人区域,包括卧室和卫生间、衣帽间。
胡桃木的墙面形成了社交区细长的矩形,并标志着私人区域的划分条。整个公寓的地面也都是用玄武岩,以加强空间之间的连续性。
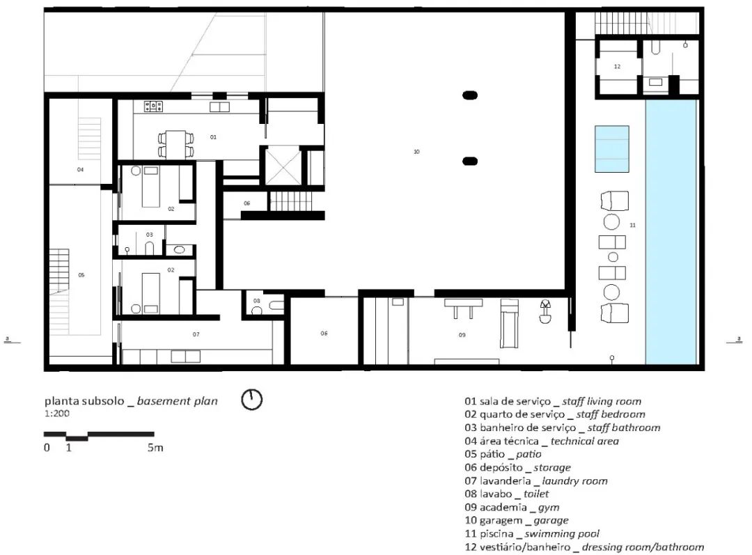
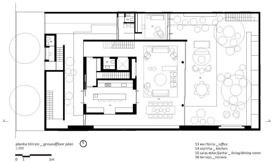
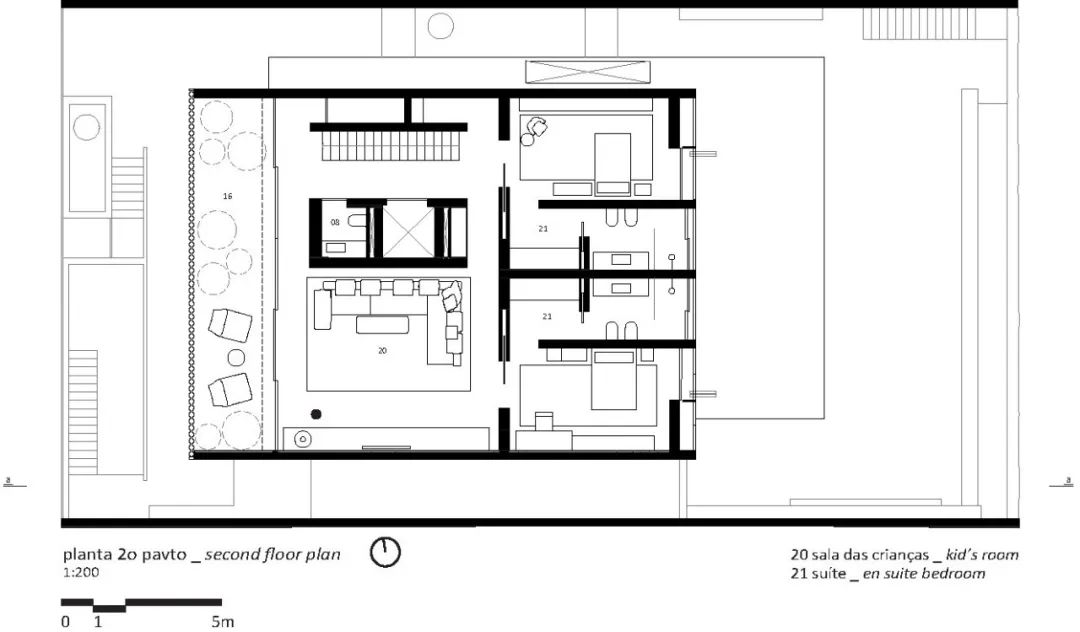
04.
GamaIssa V2.0
晚上十点钟,很热。利用这难得的安静和孤独的时刻来想象这座房子未来的模样。我将在十秒钟后关掉收音机,里面讲的是最后一次绑架和一次囚犯叛乱。我在第一次客户会议之后阅读了我的笔记。
我们谈到了客厅里的一个巨大的图书馆,有两个门厅,巨大的窗户通向花园,一个3×30米的游泳池,一个带有橙色中央吧台的厨房,两个对称的大理石楼梯被一个巨大的天顶照亮,一个工作室,精确的细节,优雅而不同寻常的空间比例总是以不同的方式与外部联系,白色的纹理,60年代Eero Aarnio的扶手椅,极简主义,电子音乐,Stockhausen, Cage,最后一期的Visionaire杂志,包括意大利面和法式外面包,最后还有Jacques Tati的"Meu Tio"。
我想到了一个巨大的白色的盒子。在圣保罗,我们不需要考虑建筑的整合,一切都是混乱的,绝对的混乱。在这个世界上最丑陋的城市,充满活力、充满爱与恨,所有的设计都将完全融入城市。是的,我不能忘记保护房子的一堵巨大的墙,用天然的木材(也许是亚马逊的最后一棵树)覆盖着,它肯定会被完全粉刷,与周围环境的完美和谐的融入在一起。
05.
LA PENÍNSULA
06.
PANORAMA
Studio MK27 把电影梦想融入到建筑中的大师
客服
消息
收藏
下载
最近






































































































