查看完整案例


收藏

下载
Atmoround Architecture Office 是一家韩国设计师事务所,他们的以营造独特充满魅力的空间氛围而备受追捧,今天我们一起来看看他们的几个代表作品。
01.
LEEDO SAU Coffee
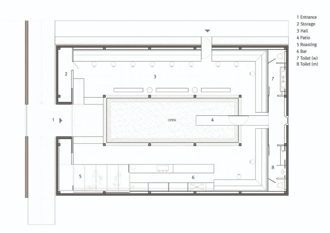
世宗都市自治市是首尔地区新兴的城市。我们希望提供一个人们可以逃离冰冷城市生活的地方,让他们能够反思自己。想给人们提供一个机会,让他们摆脱日常繁琐的工作,给自己留一点空间与时间。
02.
Ilil Coffee
在ilil咖啡店,顾客们对什么是潮流很感兴趣,尽管他们对如何将这种新潮流应用到自己的生活中有些犹豫。被熟悉的环境包围会让我们感到舒适,但也可能会很无聊;新奇可以给我们的生活带来新鲜的感觉,但也可能带来不适。这个项目的主题就是在两者之间保持平衡,让熟悉的感觉陌生,让不熟悉的感觉熟悉。这个项目的首要任务是发现事物的本质;能够看到从本质中可以创造出什么,而不管它是被创造出来的。
设计师不断地重新审视他们的想法,向顾客展示不同的观点,这使得顾客能够将新的想法融入到他们的日常生活中。它靠近居民区,把家庭的特点带进来是设计的关键。家庭的熟悉因素,如客厅的沙发,窗帘,窗户,餐桌,和一个有窗户的房间被带入一个新的角度的设计。内部的整体结构被改变了,但立面的结构和墙漆保持不变,以保持空间的自然氛围。
03.
Lookgirl office
04.
Oneday Dental Clinic
客服
消息
收藏
下载
最近


























































