查看完整案例


收藏

下载
葡萄牙拥有840公里海岸线,海水温暖,气候宜人,是全球最宜居住的国家,除了足球之外的,葡萄牙的建筑、设计、艺术也相当出色,我们今天就一起去看看葡萄牙几座超现代的别墅。
01.
葡萄牙乡村住宅
Architects: HBG Arquitectos
Year: 2020
设计的目的是将一个由客户家庭拥有数十年的老住宅改造成一个舒适的单卧室度假屋,并在需要的时候为家人提供足够的空间。最初的建筑只有一个小的单层体块,厚的暴露花岗岩墙壁和山墙屋顶。一个有围墙的区域,包括一个几乎被毁坏的门廊。
这个地区冬天非常寒冷,夏天有炎热的令人窒息,简单地说,设计的最终结果应该在这两种情况下提供易用性。
这座房子坐落在葡萄牙乡村中心的一个保存完好的小村庄里,靠近边境,和周围许多其他的房子一样,半个多世纪以来一直处于闲置状态。
然而,它有一种沉静的庄严和一种凄凉的美。
简朴的外观由粗糙的花岗岩材料构成,与周围的建筑柔和地融合在一起,但与明显的当代室内形成鲜明对比,微妙地塑造成一个舒适、温暖和舒适的空间,呈现出惊人的亮度,考虑到该地区的传统建筑通常都是黑暗和阴郁的内部。阁楼式的内部将厨房、起居区和用餐区聚集在一个入口层的单一空间中,而私密区则被藏在夹层中。
整个改造的主要焦点元素是定制的阶梯-长椅-桌子-壁炉,这是所有内部几何的元素,也是整个项目的导向线,它强调了双层高度区域的垂直性。这也是对斯卡帕在威尼斯的奥利维蒂展厅的重新诠释,也是对这位伟大的意大利大师谦逊的敬意。
02.
The Broken House
Architects: NPS Arquitectos
Year: 2020
03.
ARN 25 House
Architects: [i]da arquitectos
Year: 2020
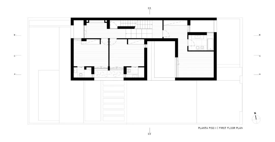
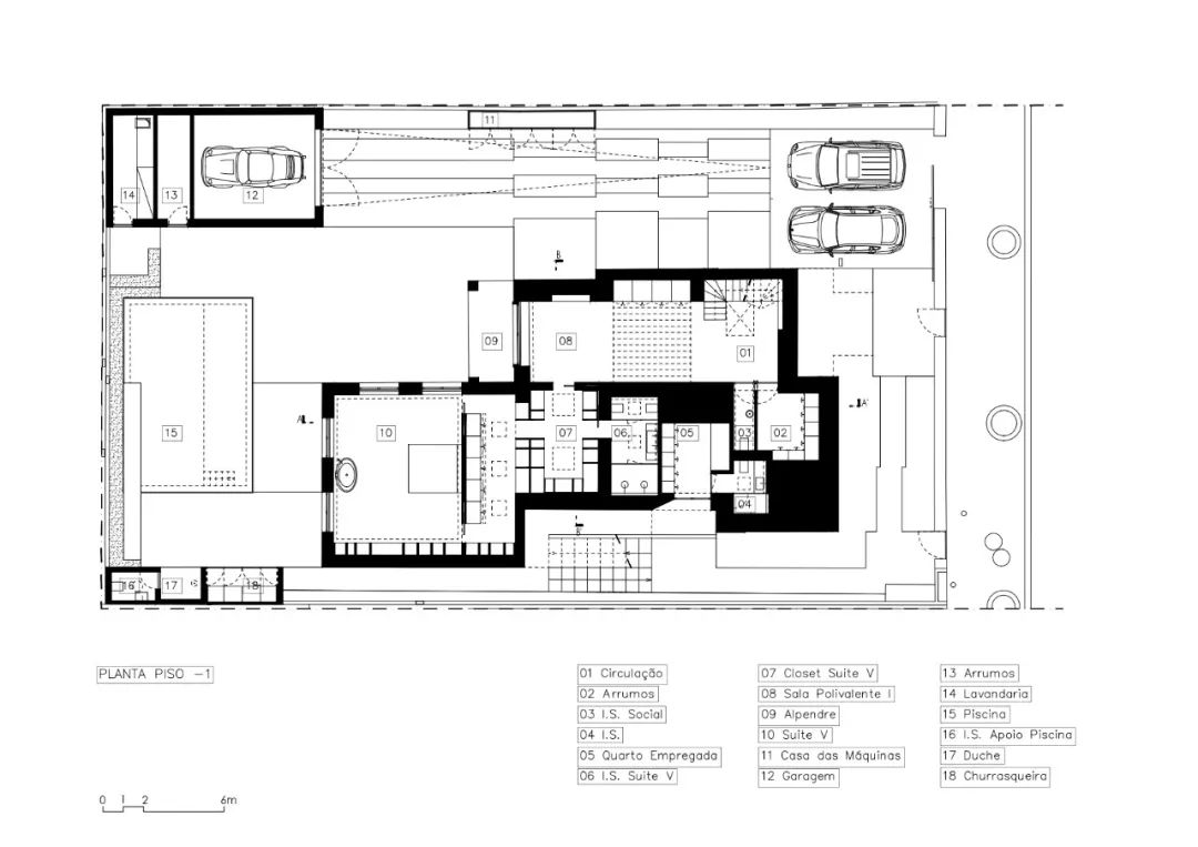
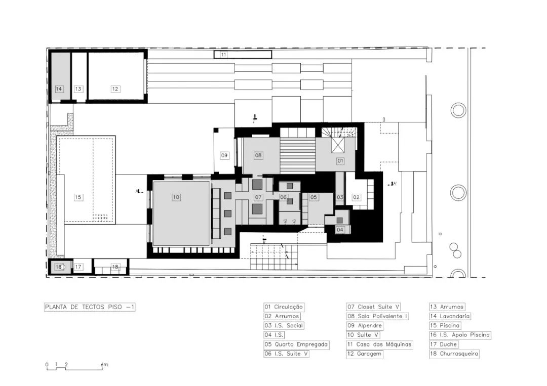
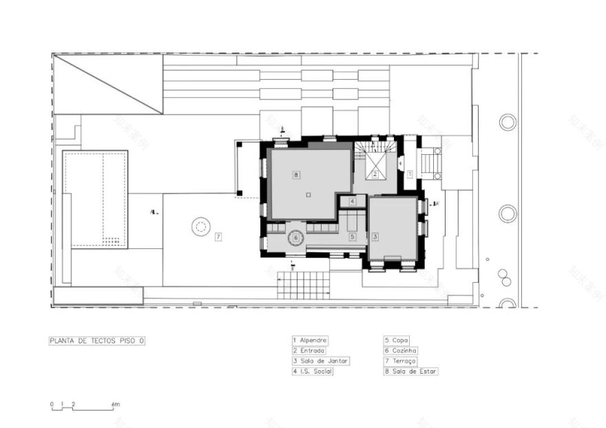
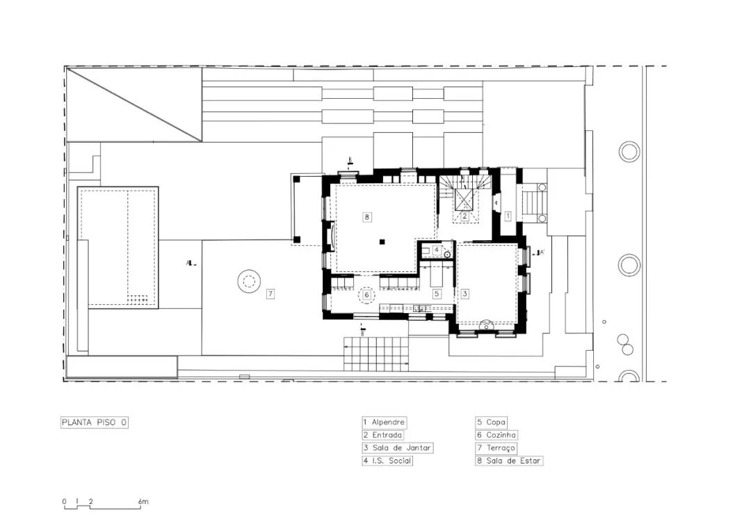
住宅位于Cascais市,在一个主要的住宅区,房子设置在一个狭窄和规则的地块上,在入口层和花园层之间有一个轻微的斜坡。
房子是一个单户半独立式住宅,面积约270平方米,占据了地块所允许的总面积,形成了三个正面的体量。
建筑遵循地形的斜坡,通过分层和天顶照明形成的空隙的衔接,改变了预先建立的体量。空间从屋顶延伸到地下室,在南侧的设计中显露出来。这种组合产生的空间为自然采光和通风提供了理想的条件,同时也保证了不同室内空间的私密性。
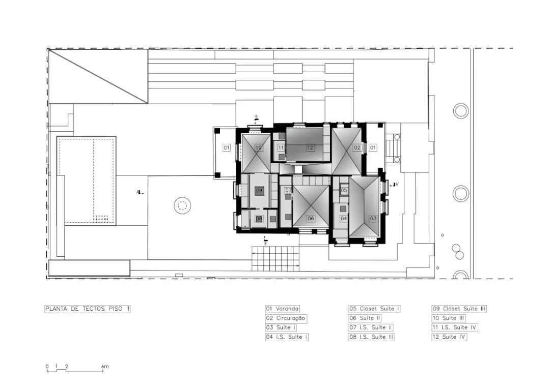
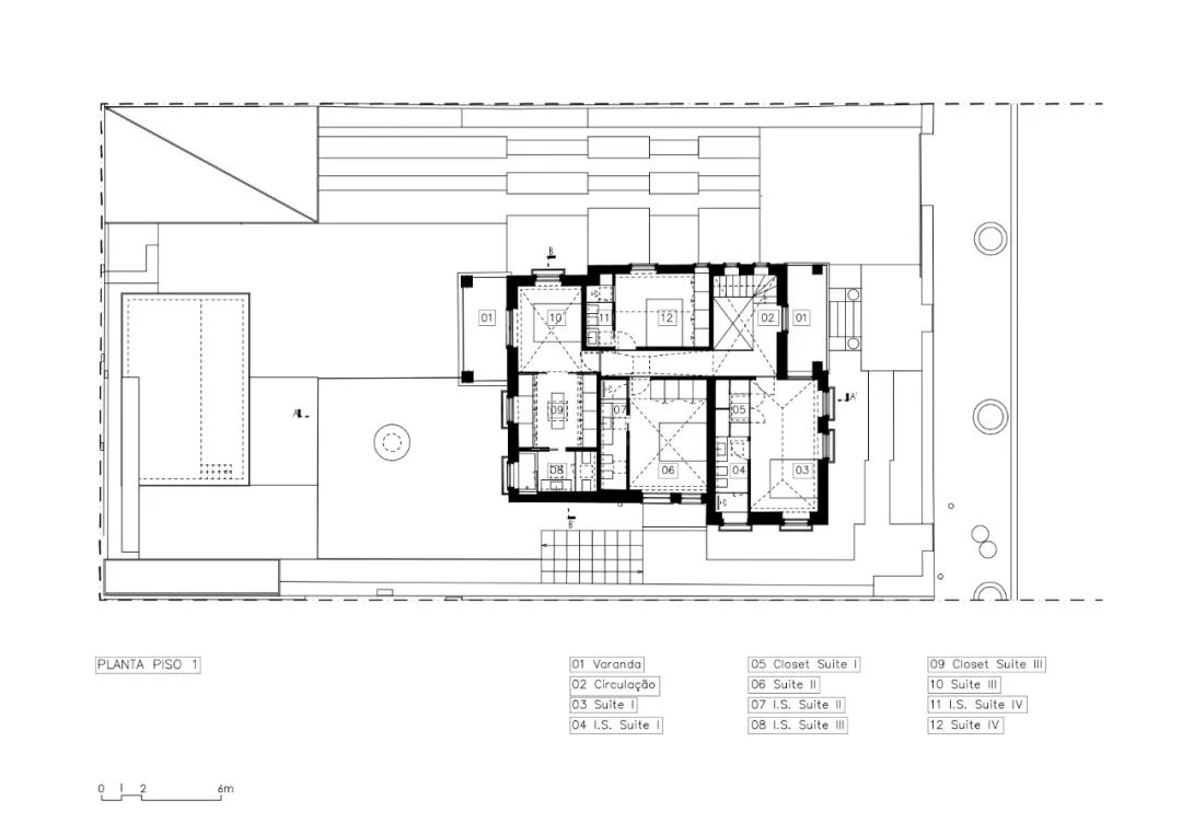
住宅有两层,地下室设有洗衣房、卫生间、技术区域和储藏室。客厅、和厨房花园位于一楼。楼上是主卧套间,有两间带浴室的卧室,一间小办公室,还有一个可以俯瞰大西洋和辛特拉河(Serra de Sintra)的屋顶露台。
04.
1000m2 Prefabricated Housing
Architects: SUMMARY
Year: 2019
在威尼斯双年展的原型发布和展览之后,SUMMARY studio展示了使用他们的预制和模块化建筑系统的最新项目。
这个项目的要求从一开始就被大胆地定义:建设应该是快速的、经济有效的、随着时间的变化而变化的,这促使工作室使用预制的元素,并将项目的部分不被定义、假设即时性、灵活性和资源优化为核心主题。
设计的策略很明确:一层是连接公共空间的多服务项目,顶部是独立的居住单元(6个45平米的小屋)。由于这两个项目之间的差异,它为每个项目创建了一个独立的通道,将它们放置在不同的水平,并利用自然地面的坡度。
一楼全部由Gomos系统单元组成。考虑到法律允许的最大建筑面积相当小,所要求的空地被用来分隔住房单元。作为一个集体住宅建筑设计和许可,该项目提供了单体住宅的主要优势:明显的个性化入口和不同单元之间完全的隔音。
一层由预制板和外部周边的结构板形成。这个区域以一种非常灵活的方式构思:可以增加或移除隔层,也可以让整个楼层成为一个大的开放空间。因此,用户可以根据自己的需要来调整空间。
在整个建筑中,结构材料预制混凝土直接外露,无需任何额外的修饰,从而减少了施工过程中所涉及的资源、人力的浪费,从而减少了对环境的影响。这种方法对加速建筑过程有直接的影响:它的所有组件都在工厂中加工好,并在现场迅速组装完成。
05.
Villa Petra
Architects: Marlene Uldschmidt
Year: 2019
Villa Petra位于葡萄牙阿尔加维卡沃罗海滨村庄附近的一个高档住宅区。佩特拉别墅所处的低密度区域,以建立私家花园为特色,创造出幽静的生活空间。多年来,对现有房屋的干预和扩建导致了一栋毫无特色的建筑,但为了尊重法律框架,必须保留建筑面积。
新项目力求在体积、美感和地形上与坡地地形相协调,因为现有建筑物已显示出严重的退化迹象,从而为新建筑物提供了空间。这是一个两层高的入口区,开放式的一楼结合了客厅、厨房、餐厅、酒吧和舞台区域。上下两层为卧室预留,楼梯被设计成漂浮的木材平台,连接了底层和较低的楼层与中间楼层的水池,淡化了两者之间的高度差异。泳池被重新塑造成现代的直线形,并铺上了白色马卡龙大理石,四周也铺满了地板。
花园被完全重新设计,包括一些现有的棕榈树和一个被忽视的网球场,与房子隔绝。道路和梯田的地面覆盖材料采用木材,车棚区和主要通道将macael大理石的白色和灰色结合在不同的区域,形成了定制的图案。南侧密集的热带植物群与主卧室突出的露台相结合,为室外空间的露台提供阴凉和减少太阳的直射。
06.
House AD25
JoãoTiago Aguiar Arquitectos
Year: 2020
这座位于里斯本Restelo街区的三层建筑,将20世纪50年代的建筑与当代空间的舒适、宽敞和明亮结合起来,经历了一场深刻的变革。用空间、光线、功能和幸福是描述它也许最恰当不过的。
这个70年代的老别墅,把它改造成一个豪华的住宅,它位于城市的地理位置非常优越的区域,可以看到塔古斯河的壮观景色。
从建筑的角度来看,它的外部进行了全面的改造,使房子变得非常流畅、活泼、和谐。从简化立面开口和将窗台转换成落地窗开始,房子的外部改善已经几乎全改了,现在,以一种视觉上一致和宁静的语言呈现。
住宅有太多的房间,因此项目的方法主要是创造一个自然和多功能的社交区域,通过在流通区域、客厅和餐厅之间放置宽的滑动门来连接这些区域。社交空间位于中间楼层,而私人区域则分布在低层和高层之间,较高楼层有4间套房,较低楼层的主人套房可直接通往花园和游泳池。在较低的楼层,还为管家设计了带有独立通道的套间。
房子的和谐个性再次在室内楼梯涂料中得到强调,同样的三维手工瓷砖在外面使用再次出现,尽管这次是白色的。
客服
消息
收藏
下载
最近
































































































































































