查看完整案例


收藏

下载
Nks Architects由NorikoSuehiro与Kaoru Suehiro创立于日本的建筑事务所,他们一直从事建筑设计和城市规划工作。整栋建筑应该是为城市服务的,而巨大的城市规划则必须从每一栋建筑中形成,无论建筑的大小,好的设计都能增加建筑的价值,改善城市环境。
01.
Meiken Lamwood
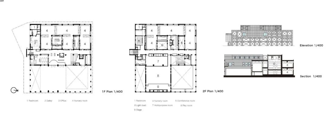
在日本maniwa NKS建筑师利用系统的交叉叠层木材设计总部meiken lamwood公司,要求将原有的办公大楼合并到一个屋顶下,这样就有了一种新的工作方式,可以利用办公桌和咖啡厅来进行社交活动。整个项目占地面积为991平米,由斜向网格状结构和v形屋顶铰接而成。
入口位于楼层平面图的东侧,方便办公人员进入公共空间。办公室位于二楼和三楼,通过一个大型中庭连接。中庭空间将自然光线引入室内,同时也作为建筑的一个参照点,使不同层次的人感到相互联系。除了南方大部分的玻璃外,屋顶的长条窗户也为室内引入了阳光。
框架体系是一种采用平行排列的夹层木材的对角线格,以及采用大跨度CLT的v形梁和屋顶的结构。由于菱形是一个地震单元,CLT防震墙只需要与菱形正交的方向。通过根据场地的形状对建筑进行划分和移动,内部结构和空间也发生了位移和移动,形成了一个完整的空间,网格状的框架轻轻地划分了空间。建设系统也包装的空间足够的保温材料和一种空气屏障,保持密封性,新鲜空气流通。
02.
JUUL House
JUUL House是由NKS建筑事务所设计的两代住宅,坐落在福冈县一个小城市郊区的一条河流旁。客户是一位在当地社区从事音乐教育的音乐家,他想要一个可以用作小型音乐厅的住宅,由于他从事与水泥有关的工作,所以建筑师使用混凝土作为主要的建筑材料。
该地块是一个长、略不规则的矩形,由北向南排列,东南侧有一条河流。房子所在的地方很宽,虽然这块地三面都被房屋环绕,但远处的河和稻田都是完全开放的。这里风景优美,西边可以看到石库侯山。
为了为了获得更好的视线,我们将场地抬高了一点,并在道路上设置了围栏。一楼通向南北花园,并设有一个大型入口作为艺术品画廊,一间起音乐厅的客厅以及一间主要由儿童家庭使用的饭厅,厨房和卧室。
天花板上有一个天窗,上面画有特征性的弯曲表面,。独特的弧形天花板将柔和的光线从天窗散发到空间中,并且具有良好的声学功能,与此形成鲜明对比的是,二楼是老一辈居住的地方,朝东和朝西,可以俯瞰河流和丰富的自然风光。与一楼相比,比例更小,更封闭。
建筑有潜力成为一种文化和社会资产,甚至住宅也可以超越其作为个人生活空间的作用。几代人以前,日本的房屋被用作仪式集会的场所,有助于建立社区。在这个项目中,空间不仅丰富了客户的生活,而且通过它作为音乐厅和画廊的功能,它成为丰富整个社区的中心。
03.
K Kindergaten
该建筑位于一个高密度的商业区。场地面积有限,项目需要教室和操场之间的亲密安全关系,我们将建筑分成两层,把操场作为场地的一部分。因此,外部框架明确界定了安全但透明的幼儿园区域。
由于政策不稳定,从一开始就预料到未来的方案变更。我们采取的策略是只设计建筑的基本组织,如功能分区、光照条件、风向等,通过系统的、有特色的混凝土框架。我们在每层高度设置了两根结构梁,用于必要的开口框架,并通过支撑圆拱使结构更加坚固。
在这些开口中,我们放置了各种各样的门、窗和长凳作为媒介,以加强孩子和看护者之间的交流。因此,这个混凝土建筑获得了一个亲密的氛围,就像一个孩子的王国。
04.
Maruya Shoji
Maruya Shoji是一家主要维护水泥厂和回收资源的公司。由于业务的变化,我们决定翻新与钢架车库相邻的现有仓库,并创建一个新办公室。之后,再进一步扩大办公室。
在第一阶段的建设中,问题是如何充分利用现有仓库的空间,该空间太大而无法包含预期的办公功能。
因此,我们决定将功能所需的功能划分为人们经常用的办公室和仅偶尔使用的空间,例如每天的早会、会议、休息和存储。
将一个小的混凝土盒子插入现有的钢框架中,盒子的内部用作办公室,周围区域和上部用作其他目的。在这里,盒子的内部是用于恒定空调的空间,其余部分是有空调的空间,它们之间的空间被窗帘隔开,一期建设完成后不久,公司合并,行政工作办公室也扩大。
为了尽可能地利用自然光,天花开了一些天窗。随着办公方式的改革和无纸化发展的进行,一次又一次地翻新办公大楼的目的是改善工作环境和员工之间的沟通。在新办公室的每个地方,都诞生了与众不同的地方,同时又延续了一个地方。我们希望这个空间将作为一个催化剂,例如管理和现场工作以及自由和创造性的工作。
客服
消息
收藏
下载
最近

































































