查看完整案例


收藏

下载
WARchitect是一家泰国设计事务所,成立时间不久,但是他们完成的几个项目品质都是非常高,今天我们就一起去目睹它们的风采。
01.
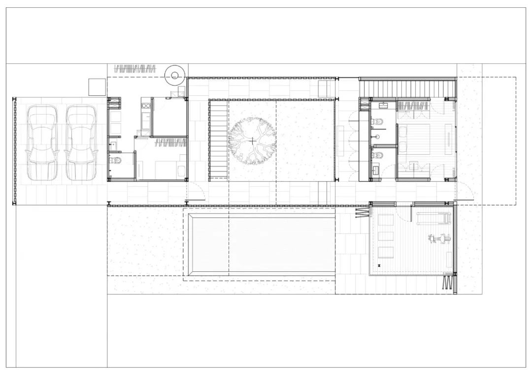
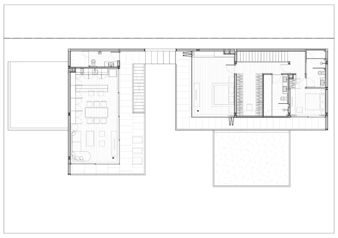
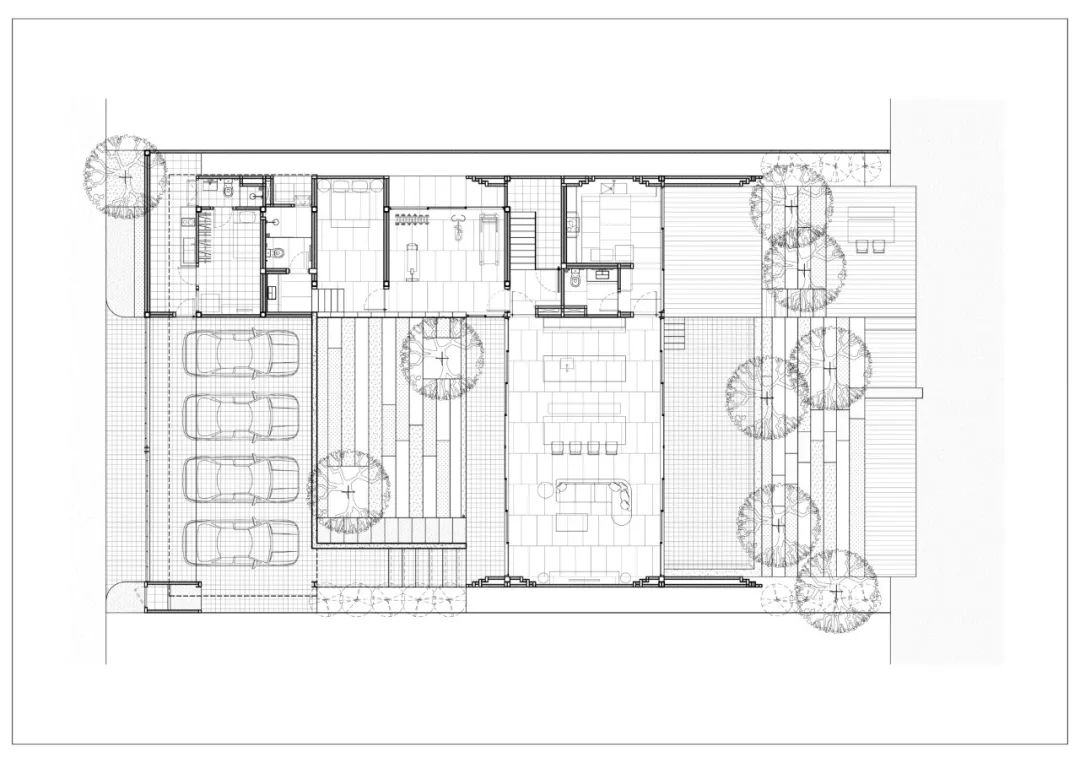
V60 House
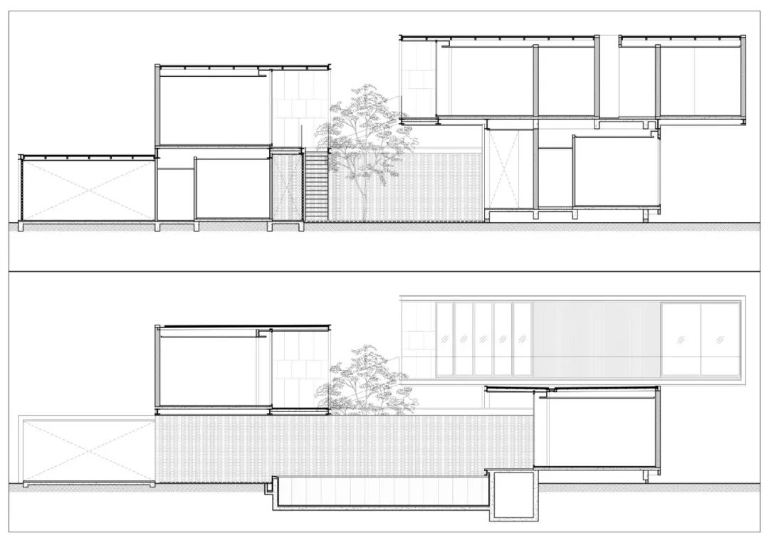
房子的主人,丈夫和妻子都是飞行员,这一职业需要在很小的区域(比如驾驶舱)工作很长时间。在工作时,你们很少有身体动作或接触到自然的空气,而彼此的日程安排也不完全相同。为了解决这些问题,我们想到了如何创造空间,使他们能够呼吸新鲜的空气,并能在任何时候看到彼此。
房子坐落在一个非常好的位置,空气污染程度很低,位于一个非常深的小巷(soi Vibhavadi 60),远离主干道,这是一片祖上的土地,周围都是他们的亲戚,这使得房子有足够的空间在房子周围植树。
200平米的面积与业主要求的使用面积相比显得太大了,所以没有必要设计过于紧凑的房子。我们将住宅元素分为三个区域,例如生活区、卧室和客人区。把这些区域之间插入绿色庭院,满足业主上述需求。
优化建筑表面,尽可能地接触自然,无论是从他们的眼睛体验绿色景观,还是从打开所有的玻璃门,创造自然通风,能够感受到新鲜空气。这三个区域并没有被内部隔断墙划分,你必须先从一个区域的内部走到。
此外,无论你在这三个区域的哪个地方,你都可以随时看到对方,例如,一个主人在客厅里煮咖啡,可以看到另一个人在卧室里欣赏收藏品,还可以看到他的父母在游泳池里运动。
02.
Sleepless Residence
位于房屋中心的内院,将所有空间连接起来,让业主全天都能看到绿色景观。房子的封闭空间让他更加放松和放松,满足了他不仅专注于创作音乐的需要,也创造了一个与朋友聚会的区域。业主的梦想传达给了我们,让我们知道设计这个房子的关键不是突出的形式,而是空间和氛围。
我们关注的重点是如何优化湖的全景,这让我们想起了圆形剧场的空间,这将增加你的视觉接触范围。想象一下,当我们在上一层通过下一层向下看时,前排的观众不会挡住我们的视线,另一方面,如果我们在下一层,向上看上一层,我们会同时面对所有的上层观众。
与这所房子的情况类似,如果我们在卧室里,看着湖边,我们可以通过内院和起居室看到湖景。20 .另一边,如果我们在湖边的起居室里,回头看卧室的那一边,我们会看到绿色梯田的台阶,覆盖着一个我们不想看到的停车位。同时,如果我们在二楼的工作空间,看看楼下的露天花园,你会看到比普通花园更多的绿色空间。
除此之外,居住者将更接近自然,然而,房子的封闭空间不会允许外人看到房子里面的任何东西。该住宅的材料选择的灵感来自业主的室内装修前的房子和吊灯音乐办公室。它们被装饰成loft风格,兼收并蓄的欧式复古家具。
03.
The Skyscape Rooftop House
该项目的业主有着一套五层的公寓,过去,屋顶只是用来存放水箱的,留下了很多空的空间。因此,主人想在那里建一所自己用的小房子。屋顶的位置是一个有趣的独特的背景,使该项目有别于其他住宅设计。
这座房子只有正面,从侧面和背面都看不到。为了避免在这个房子和下面的公寓之间产生强烈的对比,我们的团队设计了这个房子,这样从公共道路上没有人能看到它。
我们的想法不是让这个房子感觉像一个建筑,而是让它从形式中解放出来。我们希望它只是一个无边界的盒子,从天空中突然出现,就好像墙壁和屋顶的厚度不存在,但仍然能够在天花板上挖洞安装窗帘、空调和嵌入灯。
目的是给旁观者一种错觉,让他们觉得整个天花板都在一条直线上,尽管我们故意设计了一个下降的天花板和一个斜坡,让墙壁和天花板看起来很薄。这些技术在体系结构中可能并不新鲜。然而,由于主结构和外部之间的短距离帮助掩饰了我们使用的技术,这个屋顶住宅更加特殊。
考虑到功能,业主希望住宅简单用于他的私人用途,因为他不经常接待客人。考虑到这一点,我们认为让这所房子看起来比平常更“裸”会很有趣。每个房间之间的边界由庭院连接。
客服
消息
收藏
下载
最近










































































































