查看完整案例


收藏

下载
Heesoo Kwak出生于1967年,在洪吉大学(Hongik University)学习建筑,2003年创立了IDMM建筑事务所。目前,他是IDMM建筑事务所的负责人,中央日报的专栏作家,汉阳大学的兼职教授,研究建筑与社会的漫画家。获国内、国际奖项十余次;韩国建筑师学会最佳奖7项,KAA(韩国建筑奖)大奖等。
Heesoo Kwak 的作品因其与韩流顶级客户的合作而广为人知。他的项目融合了项目与设施、体量与体积的元素,并以其标志性的混凝土体量设计,构想了新的形式,挑战日益增长的亚洲客户日益个性化的需求。
01.
U RETREAT
U RETREAT与与韩国的Sori-san山脉接壤,位于大伊克里洪cheon -gun Daegok-ri的沙利果尔山谷(Sari-gol valley)的核心地带,从40米的距离俯视现场,一条陡峭的垂直悬崖在100米的高度上延伸。这种地质构造的规模,被巨大的石头压住了,它里面茂盛的植物的活力完全淹没了周围的环境。
这个项目的业主是由一位时尚行业的退休商人。他希望节假日能够在这里度假,他想要一个位于深谷里的独特而安静的住所。这样,我对自然的个人解读,一种从客人的位置出发对不同的观点进行分析,提炼出一种新的空间体验。
这是一个与自然统一的空间,将使用者从家中解放出来,这个项目满足了活动是休息、玩耍和与自然休养的功能。基地前的悬崖上有各种树木,就像一个巨大的屏幕,播放着季节性变化的情绪。由悬崖和树木所造成的戏剧性使我们肃然起敬。这也是我们的概念灵感,产生了多层次的空间,因此用户可以在不同的层次享受周围的环境。每一个多层单元都有不同的静修场所、不同的分层室内空间、跳台、私人游泳池和水疗中心等等。
02.
The Closest Church
03.
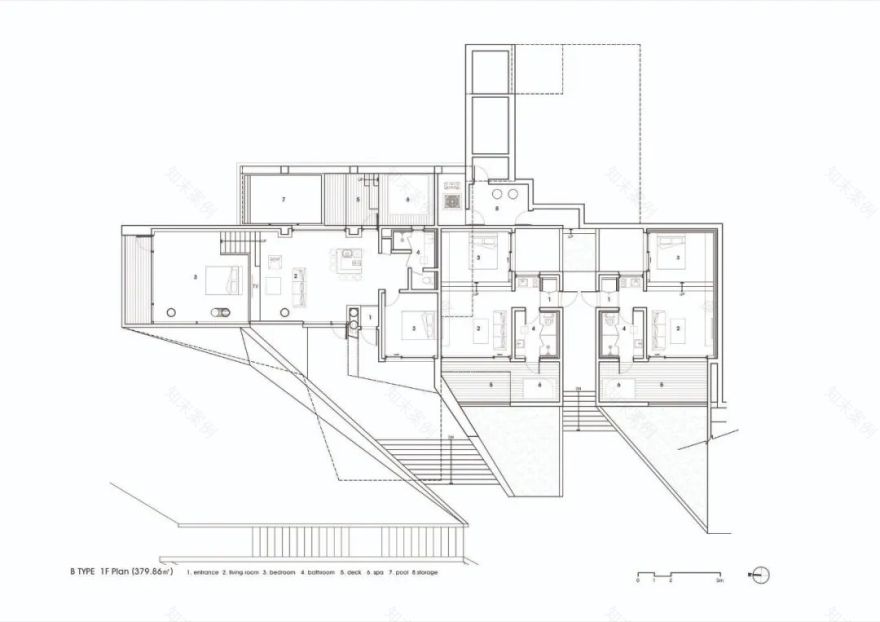
Guesthouse Rivendell
Guesthouse Rivendell坐落在受欢迎的度假胜地加的河边,离城中心半小时车程。这位客户由单亲母亲抚养长大,是一位克服逆境白手起家的企业家。他在美丽的布汗河边买了一块地,委托他为母亲设计了一套1000㎡的房子。
在建筑物的布局和它所处的土地之间的关系,以及它与周围建筑物之间的关系,都是每个项目不变的话题。Guesthouse Rivendell坐落在一块面积3300㎡的地块上,对于一栋住宅来说,这已经是相当大的面积了。因此,建筑师在结构的位置上非常小心,以避免使房子看起来太小,使基地的其他部分看起来像沙漠一样。
或许建筑的身体的四肢一样向四面八方伸展开来,也是一种划分大片空间的方式,让建筑物的外部尽可能大。对于这栋建筑来说,序列是一个重要的概念。和传统的房子一样,建筑的上部和下部是分开的,它长长的流动线像解开的线轴一样延伸。
建筑的景观序列被打断和分割。很难将它作为一种新的建筑原理或实验住宅。然而,当你走进房子,向外看时,你就会感觉到,世界上有一件事是我们永远不会厌倦的,那就是大自然的奇异效果和它的建筑:对大自然熟悉的新感知就像一颗玻璃珠一样破裂;在每一个时刻,在每一个地方,大自然都在变化着。
04.
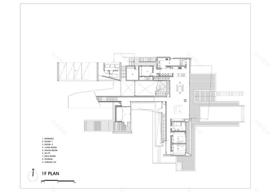
Gijang Waveon
Gijang Waveon位于韩国第二大城市釜山附近的港口城市,以其高达30英尺的岩石、海水的冲刷和松树群形成的海岸美景而闻名。WAVEON是海滩上独一无二的咖啡馆,坐落在Gijang的一座山上,可以俯瞰海滩。我们的客户想要一个500平方米的咖啡馆建筑,在那里我们可以俯瞰沙滩和岩石海岸。事实上,根据我们看到海滩的地点和方式,大海向我们展示了不同的景色。因此,如何把握和处理自然景观和建筑之间的关系是这个项目的首要考虑的问题。
参考资料:
客服
消息
收藏
下载
最近


























































