查看完整案例


收藏

下载
Dellekamp Arquitectos是一家墨西哥建筑公司,Dellekamp将论Dellekamp Arquitectos在公司15年的历史中运用的创作过程称之为“诗意的实用主义”。Dellekamp采用严谨的研究方法,为每个项目的具体情况找到独特的解决方案。他认为建筑的最终目的是从它所处的许多现实层面中、能够在建筑的最终形式中平衡这些特定的条件得出一个完美的答案。
01.
Cabo House
Cabo是一个避难所,它邀请居住在这里的人体验其特有的植被和炎热干燥的气候下的特殊环境。
房子坐落在一个平台上,这个平台和周围的土地是一样的,它随着土地的坡度慢慢地下降。结实的土墙似乎是从岩石和植被之间的沙土中生长出来的,支撑着屋顶的结构,给空间的内部提供了隐私,并形成了面向大海的视野。
巨大的屋顶定义了似乎漂浮的天花板,在产生的空间的每个部分产生分隔和层次。在这些体量之间,不同的花园和走廊交织在一起;通向内部中央庭院,将公共区域转换为住宅的中心,,最后是一个与海天交相辉映的泳池。
02.
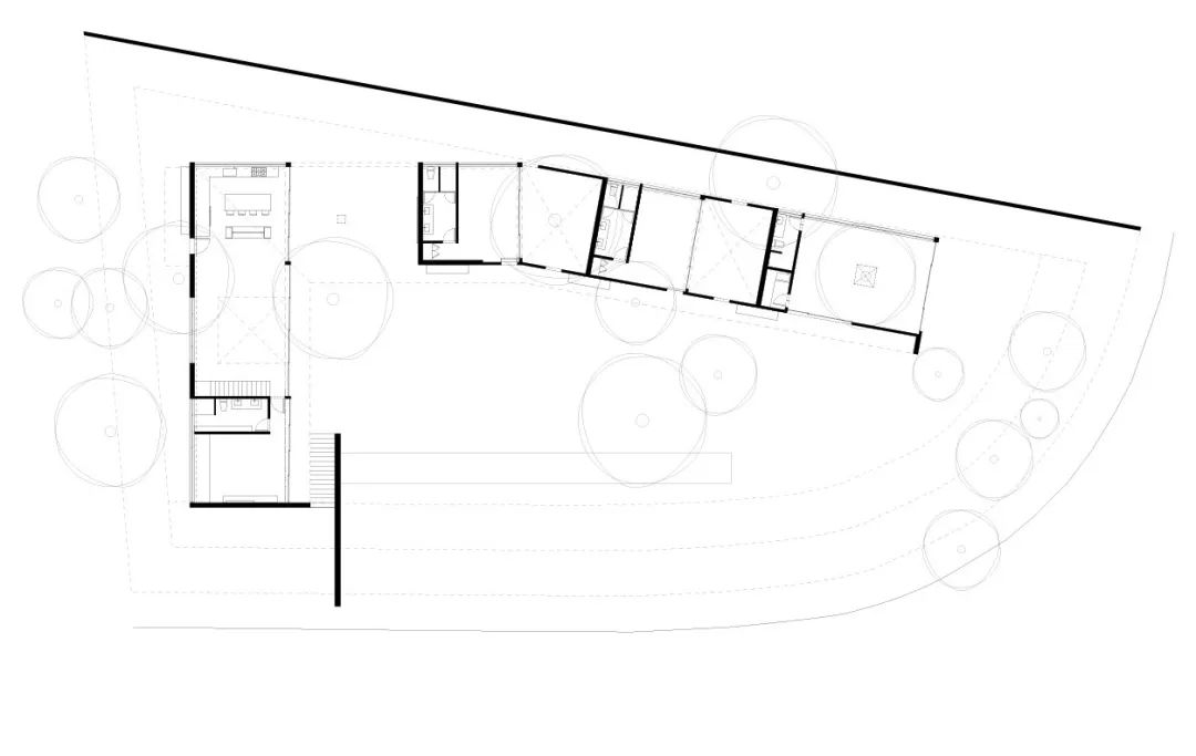
L House
这个周末度假别墅是一座呈L形单面斜屋顶的住宅。天井被镶嵌在最长的空间中,保留了现场现存的树木,并创建一个庭院住宅(但没有庭院)。房屋以这种方式交织植被并探索露台的类型。
房子的布局使客人和主人的空间完全独立。
露台起到了保护隐私的作用,内部走廊通过回廊连接不同的房间。
这所房子的特色是有门窗一直面向园和森林,并且在室内还可以一览无遗的布拉沃湖都的风景。
03.
El Higuerón Community Center
2017年9月19日,墨西哥发生地震,莫雷洛斯市成为一片废墟。一瞬间,大部分基础设施基本上全部被摧毁。
在Infonavit发起一项由多个国家建筑师参与的倡议之后,开始执行一项改组该市主要公共建筑的总体计划。lekamp / Schleich和 AGENdA Agencia de Arquitectura (哥伦比亚)被邀请就两个项目进行合作:两个象征信仰的项目,教堂(El Santuario Senor de Tula)和社区中心(Higueron Park)。
在P
arque el Higueron,许多原本容纳了几个社区空间的建筑都倒塌了,比如一个公共的墨西哥玉米饼店和居民的活动室。
由于建筑物受损严重,又无法使用这些空间,这显示出该中心对社区居民的重要性。
该项目力求修复创伤的地点,并作为一个重建中的社会的社区和团结的象征。体块被定位为基地内部边缘的一个支架,作为中心广场的规划空间和界限。
建筑系统由刚性混凝土框架网格构成,允许自由组合开放和封闭的空间,配置了车间、图书馆和市政办公室的区域。由广场产生的真空保护用户免受气候条件的影响,并直接将提案与其背景联系起来。
04.
Dichotomies Of The Power
权力的两分法希望唤醒参观者的想象力和体验感,将其淹没在权力的三维表现中: 真实、象征和想象。
真正的,以灭绝的殖民地传统货币的生产为代表的,
是
代表一个国家力量的普通方式。
象征,以金字塔为代表,让人回想起前西班牙时代,以前在同一个地方庆祝/象征普遍的力量在不同的地方
客服
消息
收藏
下载
最近




































































