查看完整案例


收藏

下载
Stu/D/O Architects是一家位于曼谷的年轻建筑设计工作室,由Chanasit Cholasuek(D)和Apichart Srirojanapinyo(O)共同创立,其实践跨越了建筑、城市主义和可持续设计领域。基于这样的信念,建筑应该考虑到每个场地的物理和文化特性的所有层面,集中在一个强大的工作室文化,汇集新鲜的想法,产生新的设计方法和创造空间的可能性。Stu/D/O的作品反映了在创造过程中人类经验的重要性,以及建造环境的复杂性。
01.
Casa de Alisa
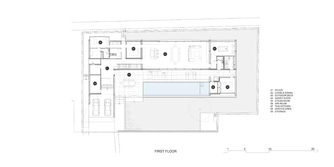
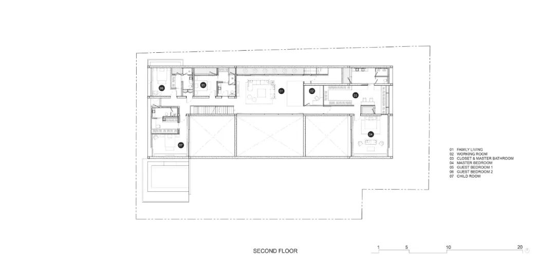
Casa de Alisa是位于泰国暖武里的两层楼住宅,混凝土是该建筑的主要元素之一,内部的大部分空间也几乎全是由混凝土建成。这些平面形成了一个建筑,遮蔽了周围环境中的生活空间,同时也框定了庭院景观,并有效的保证了空间的隐私,当这些平面把下面的混凝土、水和花园以及上面的天空连接在一起时,营造出一种朴质静谧感。
在为周围提供视觉屏障的同时,浇筑的混凝土平面也起到了缓冲的作用,为直接临近场地的公共道路降低了噪音效果。地面上的半公共生活区分为两层,由各种不同的门槛组成,模糊了花园式生活与室内外空间之间的界限,而上层为居民提供了私人居住空间。通过对内部空间和功能的解析,将各个生活区分隔开,以保持隐私。相反,二楼37米长的悬挑平面不仅作为住宅的主立面,而且作为一个连贯的“背景”,将每个单元连接在一起。
裸露混凝土的重要性在各个方面都得到了利用;木框架在混凝土上留下了纹理的印记,也是施工过程的情感记忆,同时它的纹理通过灯光或者天窗愈加明显。在现场进行了各种模板和纹理的实验,以确定住宅的基本材料和特征。这种纯粹的结构组合允许建筑被减少到绝对最小,同时也允许高效的建造和装配时间。其结果是建筑在外观上有些单一,混凝土板似乎从地面漂浮起来,同时在其内部空间中包含一种场所和家的感觉。
02.
Vana Residence
Vana Residence是位于曼谷繁华商业区素坤逸26号的10单元服务公寓。20 .场地又长又窄,规划区域要求最高的效率,住宅设计成一个体积紧凑的单间。为了实现这一效率的同时,还考虑到住宅的居住条件,所需的总规划面积被放置在一到五层,留下地面作为大堂、休闲区、公共区域和停车位。
由于几个办公大楼和私人住宅离基地很近,其中与东部相邻的中层住宅楼最为突出,核心电梯、楼梯和建筑服务区沿着东端布置。并且允许立面在西区开放,最大限度地为居民提供视野、采光和自然通风。
这种住宅建筑的外立面在物质性的表现上是非常独特的。国际复兴开发银行进行了研究,以确定特定方向的特定材料的选择,其方向源自业主委任的顾问的风水哲学,旨在为每个主要方向带来好运。主要使用金属、木材、实心墙和混凝土四种材料,依次对应着北、南、东、西四个方向,其材料与建筑体量的结合赋予了该住宅公寓在密集的城市环境中独特的个性。
03.
Baan 33 Apartment
Baan 33公寓开始作为一个建筑设计实验,在混合使用的方案需求的混合使用私人住宅和四个服务公寓单元之间的空间关系。
根据周围的城市环境和业主提供的要求,整体建筑分区被战略性地组织起来,为所有居住者提供最高程度的隐私,同时与自然环境保持密切联系。私人住宅位于一层,可以与自然紧密相连。从二楼到五楼,私人住宅朝向基地的前面,考虑到周围的环境,而服务公寓朝向后面,每个单元由楼层分隔。
为了最大化住宅业主和公寓租户的隐私,为每个功能创建了两个单独的动线。公寓的核心区和服务区位于东西两侧,周围是相邻的高层建筑。私人住宅的垂直环流被有意安排在两个功能之间,为居住者和租户提供分隔和隐私。
04.
MacroCare Office
MacroCare总部的建筑试图反映出一家值得信赖的科技公司的特征,同时也反映出其“值得信赖的伙伴”的公司经营理念。
环环相扣的建筑和倾斜的平面在建筑的中心形成了一个巨大的空洞,,不仅变成了一个绿色空间,而且吸引了人们的目光,将目光投向这个在公司内部产生社会联系和互动的巨大开放空间。当从巨大的体量中切割或减少空间,在中心创造出一个空间时,内部庭院是不同功能的视觉连接,每个项目空间都能看到这个巨大的室外中庭,给组成MacroCare办公室的不同部门带来凝聚力。
Stu / D / O Architects丨泰国当代建筑的理性与诗意
客服
消息
收藏
下载
最近







































































































