查看完整案例


收藏

下载
luciano kruk毕业于布宜诺斯艾利斯大学,
2012
年
于阿根廷创立luciano kruk arquitectos建筑事务所,
luciano kruk
曾是BAKarquitectos的合伙人。
他们一直
致力于自然纯粹的清水混凝土现代住宅建筑的探索与研究。
Casa Escobar
Location: Argentina
Area: 282 m²
Year: 2019
在阿根廷的哈拉斯圣玛利亚德埃斯科巴,一栋由luciano kruk为一对年轻夫妇设计的度假别墅拔地而起。这栋房屋位于距离布宜诺斯艾利斯中心54公里外,该住宅提供开阔、开放的生活空间,甚至延伸到四周的环境。
该项目最初设计是一个周末度假住宅,现在,客户将其作为一个永久居所。该地块是围绕高尔夫球场布置的大型社区的一部分。Escobar住宅的场地以其平坦的地形为特色,并拥有广阔的高尔夫球场延伸的令人难以置信的景观。为了最大程度地利用此位置,luciano kruk将房屋从地面上抬升,以获得更令人印象深刻的景观。
这栋房屋包括一间套房主卧和两间为将来为孩子准备的卧室。业主还要求起居和就餐区域应敞开,并直接与游泳池相连。这对夫妇还希望内部空间扩展到外部环境,将建筑与自然连接起来,有一个沉思冥想的空间。
luciano kruk旨在创建一个整体协同之间的平面和建筑的形态。为了实现这一目标,设计团队开始设计之初便太高了整个建筑,它包含了住宅的两层高入口和主要的社交区域。在这个中心点上,其余的其他功能以半层的高度连接在两边,形成了最终的建筑。
房子前面的走廊将街道与更多的私人空间分隔开来,让生活区域更具私密性。这条走廊几乎看不到外面,它通过纵向裂缝打开。房子的大部分前部是封闭的,而后部通过一个完全透明的外壳与外部流畅地连通在一起。
房子由暴露的混凝土和玻璃组成,目的是减少维护需求。支撑结构围绕着两根平行的倒梁布置,倒梁贯穿整个房屋。为了在视觉上强调体量的水平性,这些梁从封闭的外壳上向后倾斜,在前面和后面都是如此。此外,在地块的界限上布置了几排树木,这也为邻近住宅提供了私密性。
游泳池是根据客户的要求设置的:与房子的露台融为一体。它被镶嵌到一个矩形水泥板上,有3个悬臂完美的隐藏其深度,以至于让我看到的仿佛是一面漂浮的镜子,无论是从房子的外观还是从内部。站在阳台的顶部,水面都可以映照出一幅生动的天空影像。
紧凑的体量和朴素的外壳包围着室内,不同的天花板高度、自然光线效果和每个房间的围护结构产生了非常不同的空间体验。总的来说,设计的目的是通过简单的线条和自由的空间,与周围的自然环境建立紧密的对话,创造一个舒适的房子。
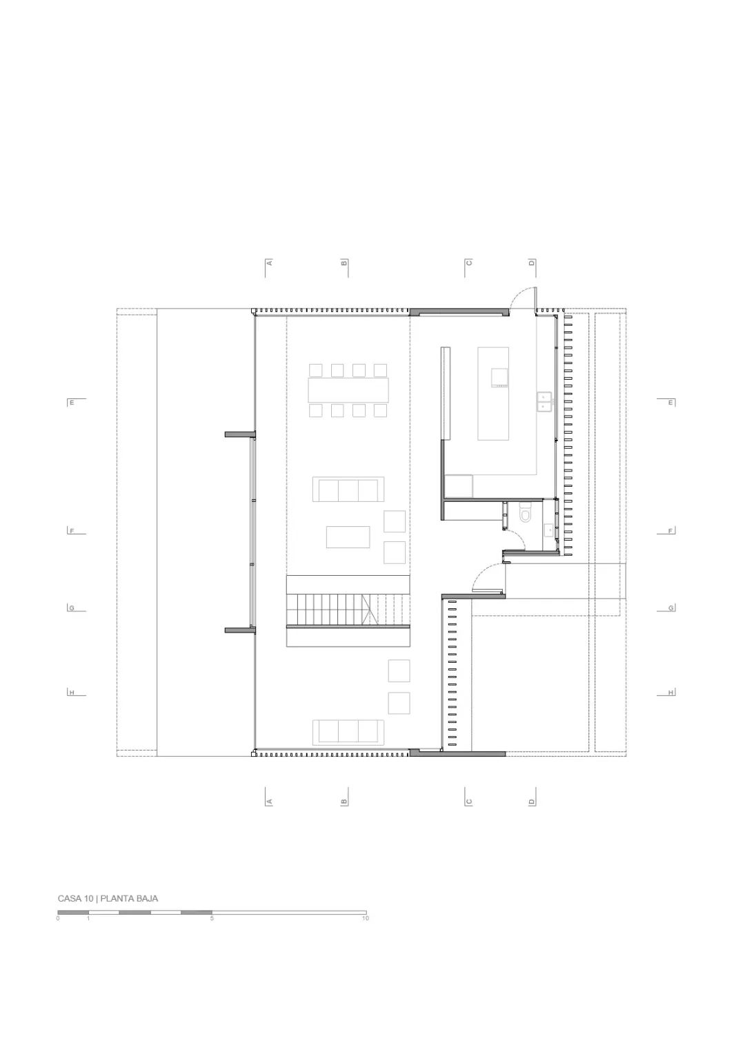
Casa 10
Location: Argentina
Area: 306m²
Year: 2019
位于圣拉斐尔的布宜诺斯艾利斯一侧是“Casa 10”, 受客户(一对年轻夫妇)委托在封闭的Tigre社区中一块土地,要求使用最少的混凝土结构,白里面是白色的,有很大的社交区域,还有他们家庭成长的空间。这座建筑的面积超过300平方米,可俯瞰一个私人游泳池和一个很大的湖泊。该住宅围绕着一个宽敞的双层公共空间而建,并设有带更衣室和套间的主卧室,两个儿童卧室,一个工作室和一个带独立餐厅的厨房。
House in the Trees
Location: Argentina
Area: 185m²
Year: 2019
该建筑坐落在隔离在1.110 m²的深林之中,位于皮纳马(Pinamar)市外8英里处,距布宜诺斯艾利斯(Buenos Aires) 4小时车程。
房子坐落在海岸线和一排松树之间,有一间主卧,两间副卧,一个公共区域和一个室外游泳池。这所房子的设计考虑了环境,并提供了鲜明的并置感,同时对周围的旷野影响最小。为了最小化维护和对地形的结构影响,建筑部分抬升,整个住宅是由混凝土、玻璃和铝框组成的。
楼梯顶部有大量和宽大的天窗,自然采光充足。水池看起来像是一个独立的结构,因为它看起来只与主体结构垂直,而该主体位于一块钢筋混凝土板上-感觉就像是一个漂浮在混凝土上面的镜子。
Carilo House
Location: Argentina
Area: 230m²
Year: 2018
Carilo House名称来自其度假小镇卡里洛(Cariló),距布宜诺斯艾利斯市360公里。该建筑分为两部分,分别通过垂直循环连接,房屋的主要区域在顶部,在地面有一个独立的客房。
该建筑遵循客户设定的非常具体的要求,包括所需的使用功能以及房屋与其自然环境之间的重要关系。绿色的风景透过巨大的玻璃板尽收眼底。
外部空间被设想为内部住宅的延伸,因为停车场和烧烤平台和游泳池与建筑物的形态密切相关完美呼应,观景台和客户自己完成花园构成了这个精心设计整体。
客服
消息
收藏
下载
最近


















































































