查看完整案例


收藏

下载
斉藤智士(Saito Satoshi)1986年出生于日本京都绫部市,2011年毕业于京都艺术设计大学,2009年到2012年期间在Hirotari Architects & DesignOffice,和Freedom Corporation工作。于2013年成立SAISAI建筑设计事务所。
01.
SEKI House
这是在昭和42-54年(1967-1979)建造的大阪丰野町住宅区。由于许多居民大约在40年前居住于此,现在丰野町住宅区慢慢老化。该小镇便利的交通依然非常受人欢迎,最近包括重建在内的翻新变得非常活跃,并且带有商店的小规模房屋也在增加。
这里有一条从北到南的道路,在北边我们可以看到大量的山林。这是一个你可以享受静谧与自然地方。我们计划让居民区也能感受到森林微风拂面,计划在南北之间留出一定的空间,以便能计划在南北之间留出一定的空间,以便在居住区感受到更多的山地森林景观。
02.
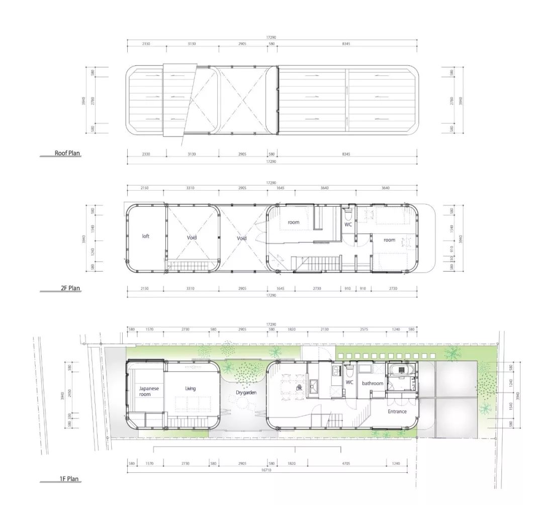
Wall Pillar House
这是位于京都的一个住宅项目,那里的城市规划特别严苛,以保护城市的文化。由于对外墙、屋顶、体量、颜色的严格限定,以及只有30%的建筑覆盖率,我们通过简单而又有效的传统结构作为外观方法,占据整个场地来获得更广阔的空间。我们的旨在重新思考延续京都流传下来的文化,并规划一个适合现代生活方式的住宅。
山墙屋顶是日本传统屋顶的一种,通过在连接区域使用特定的人造五金金属片来代替檩条来进行改造。通过消除檩条,墙柱可以有节奏地排列,以减少推力,从而创造更广阔的空间。由墙柱创建的渐进式隔墙旨在保持私密性,确保舒适的生活方式的同时与当地环境温和地联系在一起。
03.
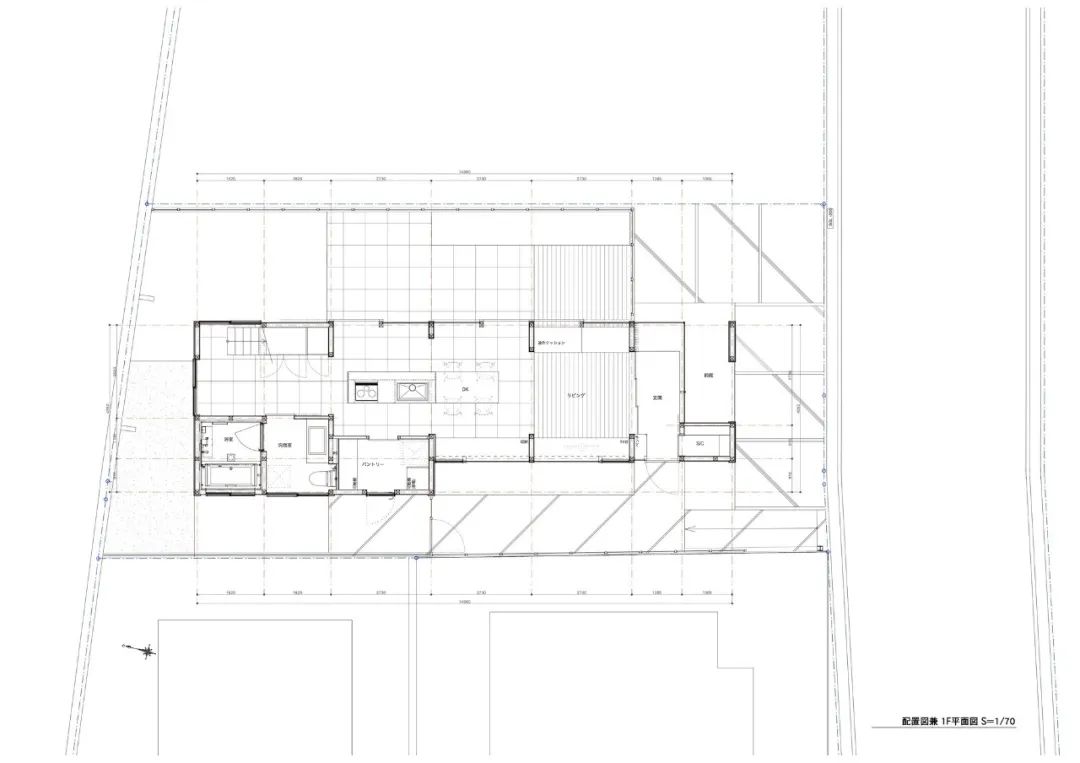
Melt House
这是一个位于山脚下的住宅区的很窄的场地。正面为5.6m,深度为23.7m。客户是一对30多岁的夫妇和两个孩子,他们希望住在一个能让他们感到绿色的地方。
一个感觉绿色的家不是一个你可以从任何地方看到绿色的家,而是一个居民积极利用外部空间并与绿色一起感受交流的家。例如,在树下打盹,触摸树叶,种植新的树或花,感受风和花香与绿叶的味道。创造出忘我的原始体验和丰富的生活。
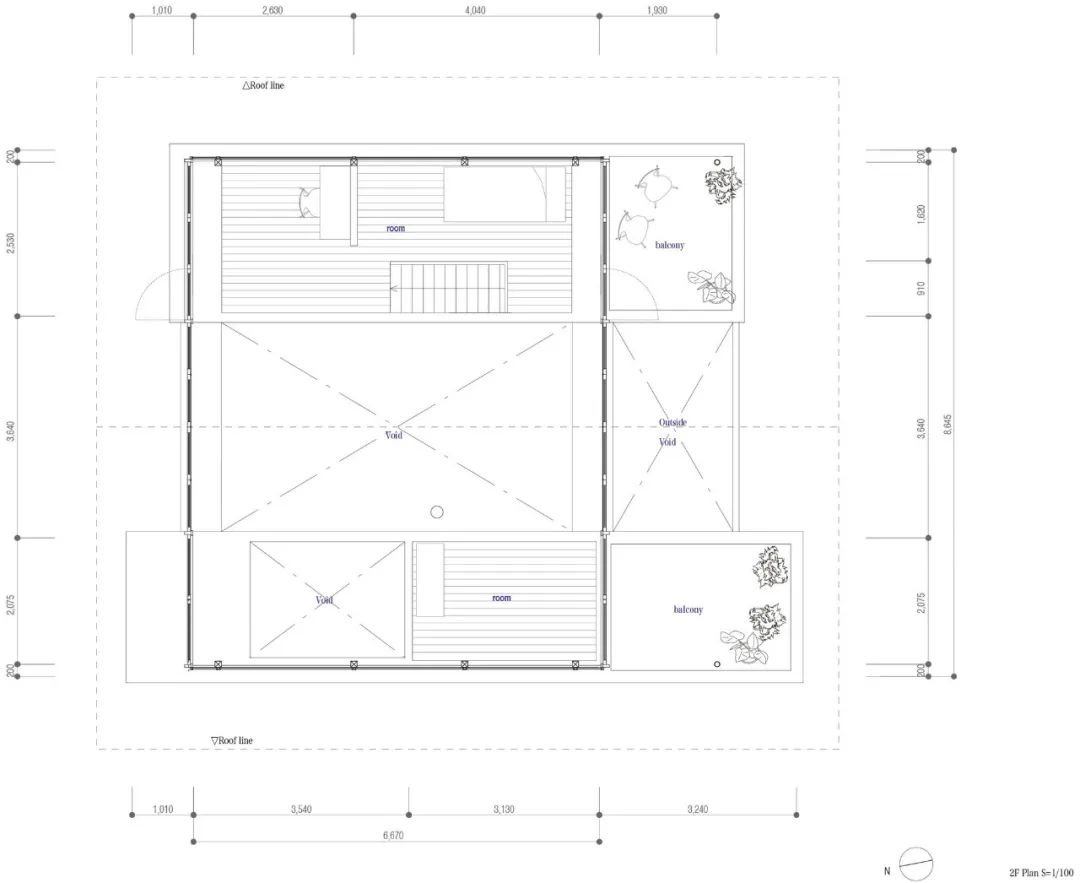
04.
House in Sakai
这是大阪府酒井市一个被指定为防火区的住宅区的木房子。在外围设置防火墙,地板相对墙壁旋转45度。面对防火墙的开口超出了防火规定,可以使用木制配件自由打开。防火墙也可以用作结构墙,可以360度自由打开。
我们计划向外界开放。四个外部是使用漫射光的光井,即使在封闭的场地,你也能捕捉到室内柔和的自然光。通过使用附加在外面的间接照明作为主要照明,可以全天看到来自四个方向的光线。
客服
消息
收藏
下载
最近


































































