查看完整案例


收藏

下载
Co Lateral是一家位于墨西哥建筑设计事务所,今天我们一起来一睹他们最新的项目的风采
Lyons Garden House
里昂斯花园(Lyons Garden)位于芝华塔尼欧(Zihuatanejo)的普拉亚布兰卡滩(Playa Blanca)周围。
除了满足建筑功能外,该住宅的项目还响应了一种更高级的需求:
全面寻求与周围环境交融和互动。
两个内部空间通过一条通道连接起来,这条通道形成了一条充满反差和惊喜的道路:我们可以看到花园、大海,甚至是一些由灰色混凝土和红色提匹特(tepetate)与光线产生的阴影。
这条走廊通向通向露台的楼梯,在露台上可以看到天空、星星和浩瀚的大海。
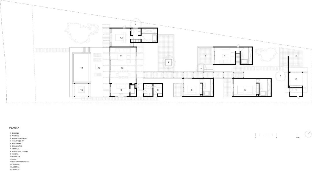
该住宅有两间卧室、带室内花园的浴室、一间工作室、一间多用途房间和一个能看到海景的冥想区。
由于这个房间的甲板上有一个显著的圆形开口,雨、风、光和自然栖息地都自由流畅地融入到这个空间中。
一条泳道与游泳池融为一体,可以作为进入该区域的替代通道,模糊了室内外的空间界限。
该项目的独特功能为里昂花园同时提供了巨大而又轻快的特征。
但是,最重要的是当他们与融入到周围的环境中,还可以在此时此地时找到的内心的平和与宁静。
Casa Lyons
该项目围绕一个中心轴线进行设计,该中心轴轻轻自然地连接房屋中的每个空间。
混凝土墙与红色的管道混合在一起,使人联想到该地区的典型色调,并与壮丽的日落融为一体。
内部和外部空间有机地结合在一起,形成一种微妙的和谐。
这所房子有四间卧室和一间书房。
除了一个享受海景的绝佳泳池外,带有室内花园的浴室是开放的,强调了住宅自由和开放的感觉。
建筑融入到周围的自然环境,从某种意义上来看,建筑成为一种几乎看不见的元素,旨在强调和改善其周围的环境,从而与海洋和山脉建立紧密的联系
客服
消息
收藏
下载
最近




















































