查看完整案例


收藏

下载
KWK Promes是一家建筑工作室,由Robert Konieczny和Marlena Wolnik在卡托维兹创立于1999年,是波兰最成功和最知名的建筑工作室之一。
客户的梦想是拥有一座简单、阳光充足、令人放松的,
跟随太阳轨迹移动的房子。在那里他们可以休息和尽可能多的时间。
他们也喜欢我们的安全屋,它的可变性和与周围环境建立联系和对话的Quadrant House。
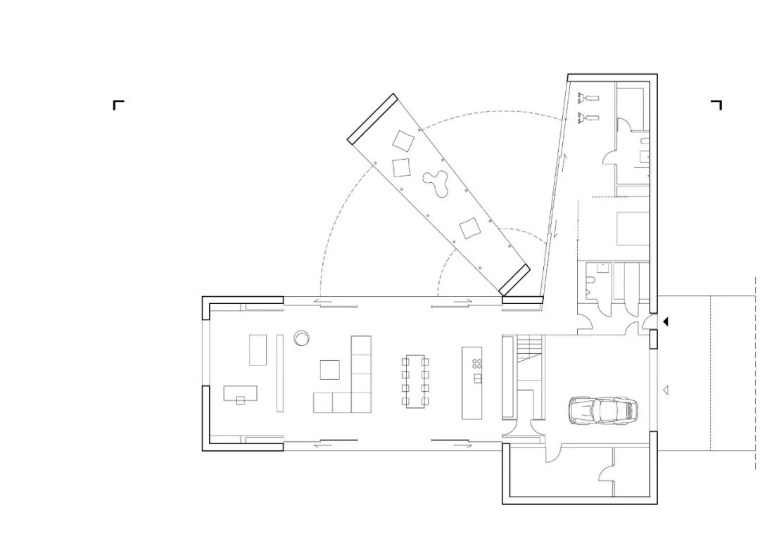
我们把属于一楼的部分转了个弯,以便尽可能地避开路边的行人。在“切割”的空间中,设置了一个客厅,并向花园开放,夜晚的时候
它
和建筑成为一体,白天成为花园中独立的一部分——使建筑和景观之间的界限变得模糊
客户的愿望是一个简单的平顶房子,但后来还是在我们的建议之下做了斜屋顶。
因此,从街道一侧的房子有一个山墙屋顶,而从花园一侧的屋顶是平的。
这一设计同在满足客户需求和空间规律的解决方案,最终创造出一个非标准、有特色的住宅形态。
一层有一个起居室和一个水疗中心,彼此垂直。
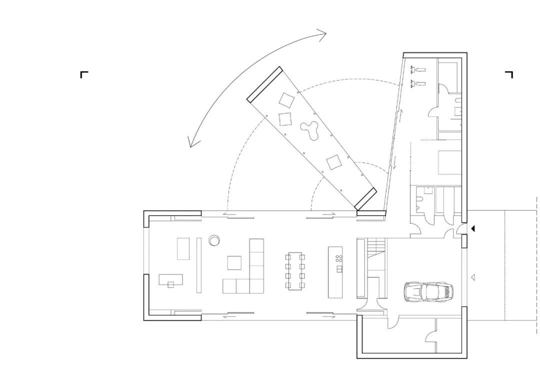
客户希望房子能对太阳的位置做出反应,这就是为什么我们使用象限的主题——一个用来确定星星位置的旧装置。
我们设计了一个平台,它能对太阳做出反应,并跟随太阳的运动:给坐在空间里的人们提供阴凉和宜人的空气;根据一年中的不同时间,它调节了相邻空间的日照量——在夏天提供所需的阴凉,在冬天允许更多的阳光进入室内。
平台的移动和速度适应了太阳的移动。
驱动系统是完全自动化的,并具有先进的安全传感器——如果遇到障碍,平台就会停止,使其完全安全使用。
然而,由于功能上的原因,也可以手动控制,
露台被在白天可以保持恒定的运动。
客服
消息
收藏
下载
最近












































