查看完整案例


收藏

下载
Barozzi Veiga于2004年由Fabrizio Barozzi和Alberto Veiga在巴塞罗那成立。致力于公共和私人领域的建筑、城市和室内设计,他们的项目并在国际上屡获殊荣
Fabrizio Barozzi,1976年出生于意大利罗韦雷托,在威尼斯建筑大学学习建筑学,之后在EscuelaTécnicaSuperiorde Arquitectura de Sevilla和巴黎高等建筑学院完成学业。2007年至2009年,他在巴塞罗那加泰罗尼亚国际大学担任教授,自2009年起,他一直担任赫罗纳大学的教授。他于2013年至2015年期间担任威尼斯建筑大学的客座教授,并于2016年担任麻省理工学院(MIT)的客座教授,并将再次担任客座教授。
❶
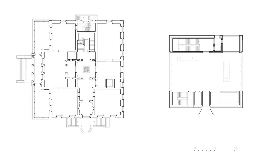
Cantonal Museum of Fine Arts
Alberto Veiga出生于1973年,在西班牙圣地亚哥德孔波斯特拉长大,之后EscuelaTécnicaSuperiorde Arquitectura de Navarra学习建筑。2007年至2010年,他在巴塞罗那加泰罗尼亚国际大学担任教授,并于2014年在威尼斯建筑大学(Istituto Universitario diArchitettura di Venezia)担任客座教授。他曾在西班牙,意大利,瑞士,英国,智利和美国的建筑学院教授和演讲。
❷
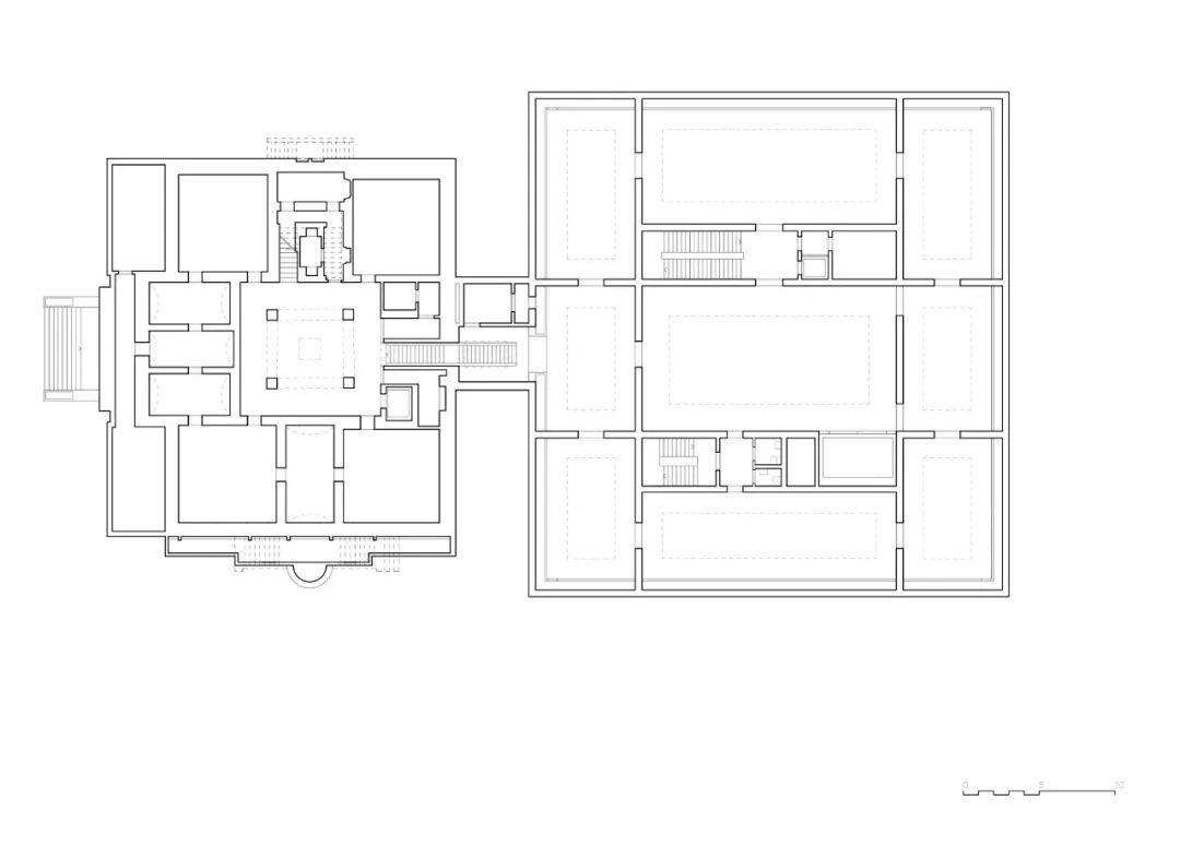
Fine Arts Museum
Barozzi / Veiga在国内和国际比赛中赢得了无数奖项,Úbeda的Palacio de Santa Clara,Águilas的Auditorioum,Roa的DO Ribera del Duero总部,Szczecin的Philharmonic Hall,Musée洛桑的de Beaux-arts,库尔的BündnerKunstmuseum,布鲁尼科的音乐学院和苏黎世的Tanzhaus。
❸
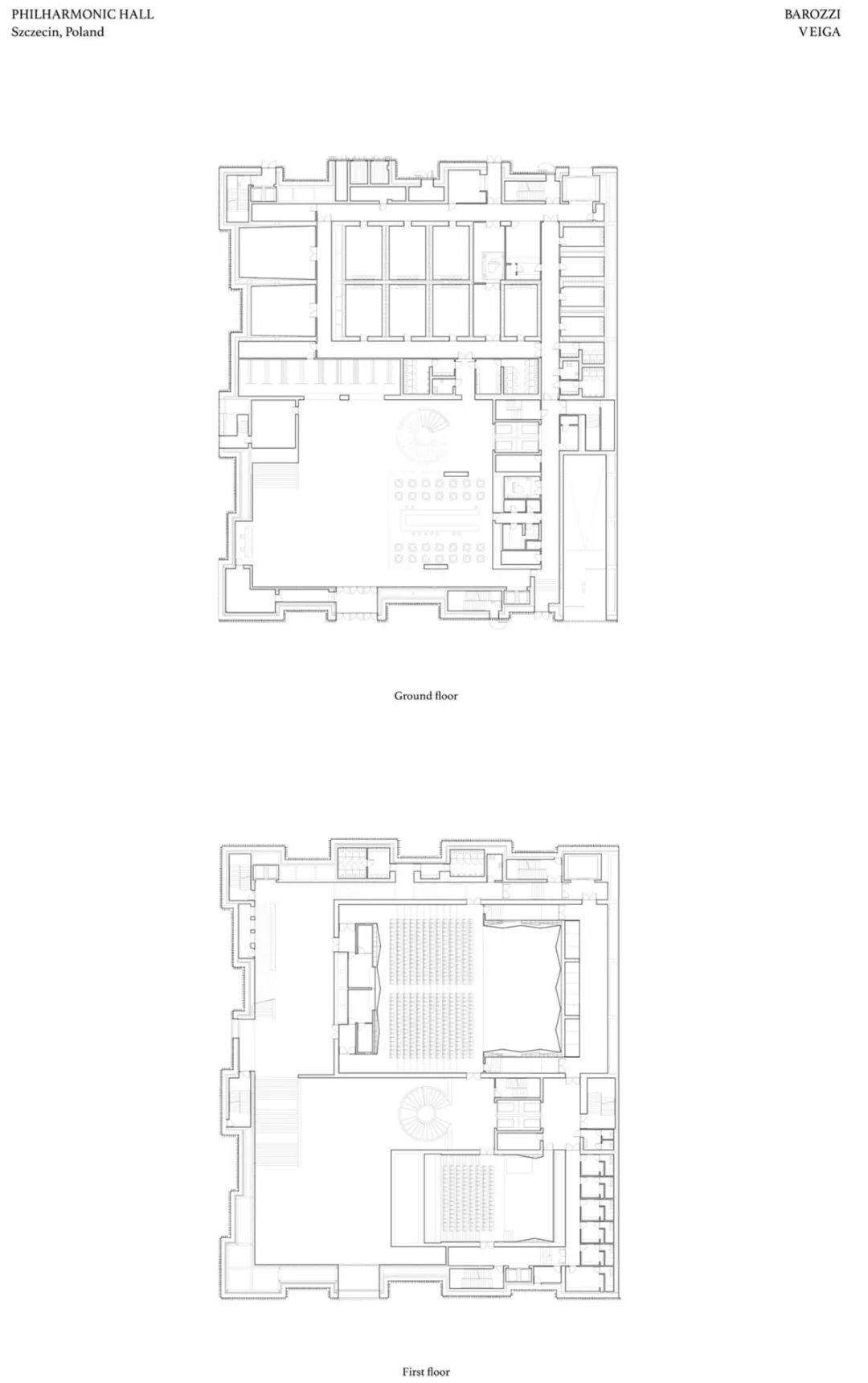
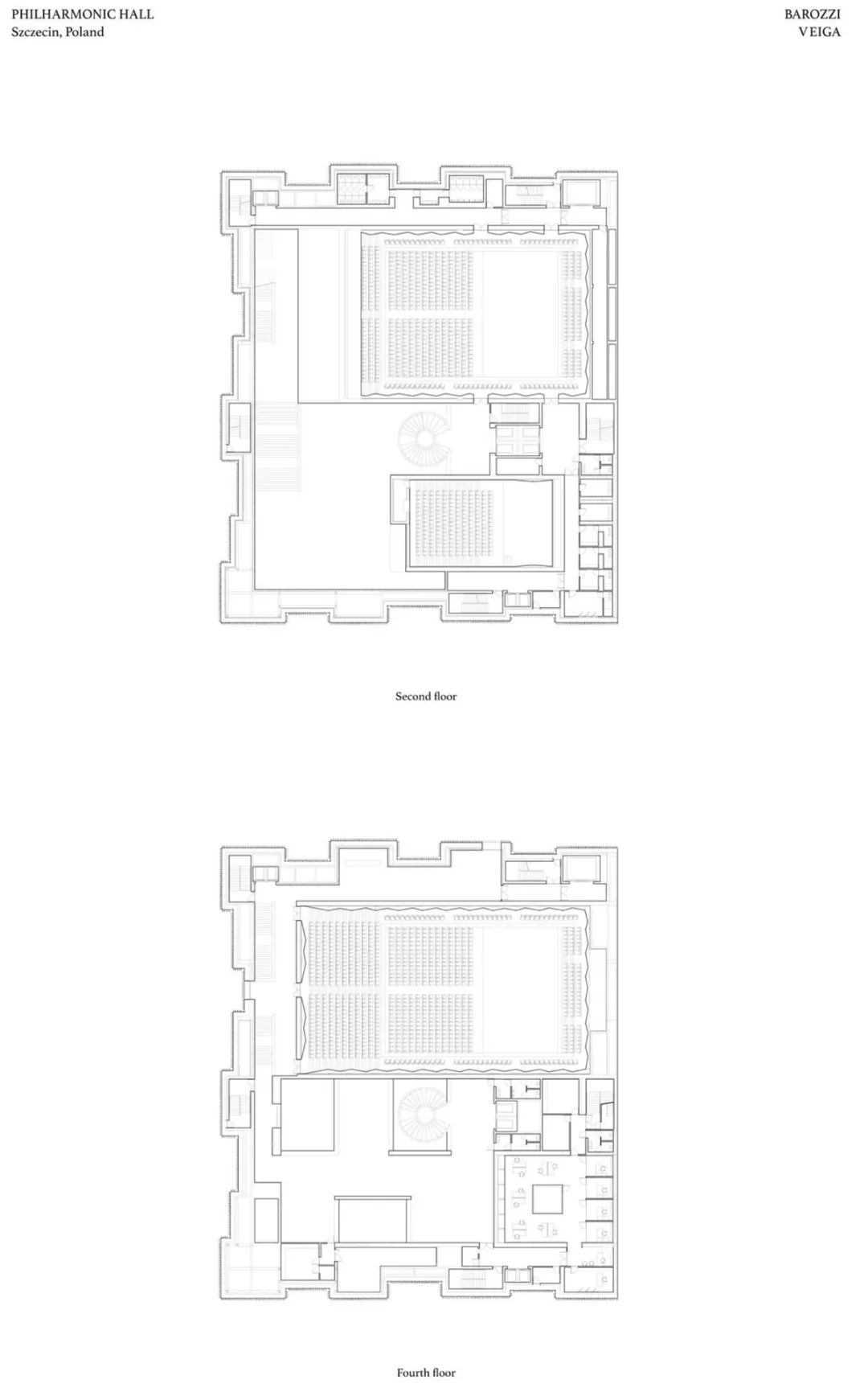
Philharmonic Hall Szczecin
Barozzi / Veiga赢得了许多国际奖项和设计卓越奖,其中包括由巴塞罗那建筑师学院颁发的2007年阿雅克奖,2011年国际建筑奖“BarbaraCappochin”,2012年意大利建筑金奖 米兰三年展,2013年意大利建筑年轻人才奖,由意大利国家建筑师,规划师和景观设计师委员会颁发。2014年,该工作室被“建筑实录”杂志选为今年设计先锋的10家公司之一,2015密斯凡德罗建筑奖等
❹
Brunico school of music
客服
消息
收藏
下载
最近


































































