查看完整案例


收藏

下载
朴 质朴,纯粹
开 开凿,创造
十向 十方空间,谐音实相,表示事物真实的状态以理性的思维去发掘场所的特质,追求简约且具有叙事性的空间状态。
朴开十向创始人熊天宇与张筱锴
朴开十向专注设计与相关领域。致力于为客户提供全方位设计解决方案。我们认为,快速城市化和和全面市场化带来了丰富而刺激的纷杂环境,而更多的局部领域却被单一化。置身其中,探索解决这些矛盾的新方式这正是我们的设计出发点。 以非单一性,多元化方式来满足复杂城市文脉的多重需要,挖掘这看上去问题无穷却又充满生机的城市建筑背后的巨大力量。
SEEING与闻珠宝店
珠宝是时间的沉淀,是故事的见证者,这次我们与SEEING与闻珠宝 合作,希望在满足顾客审美需求的同时,塑造一个能承载故事的空间。
隔离干扰,引导对话
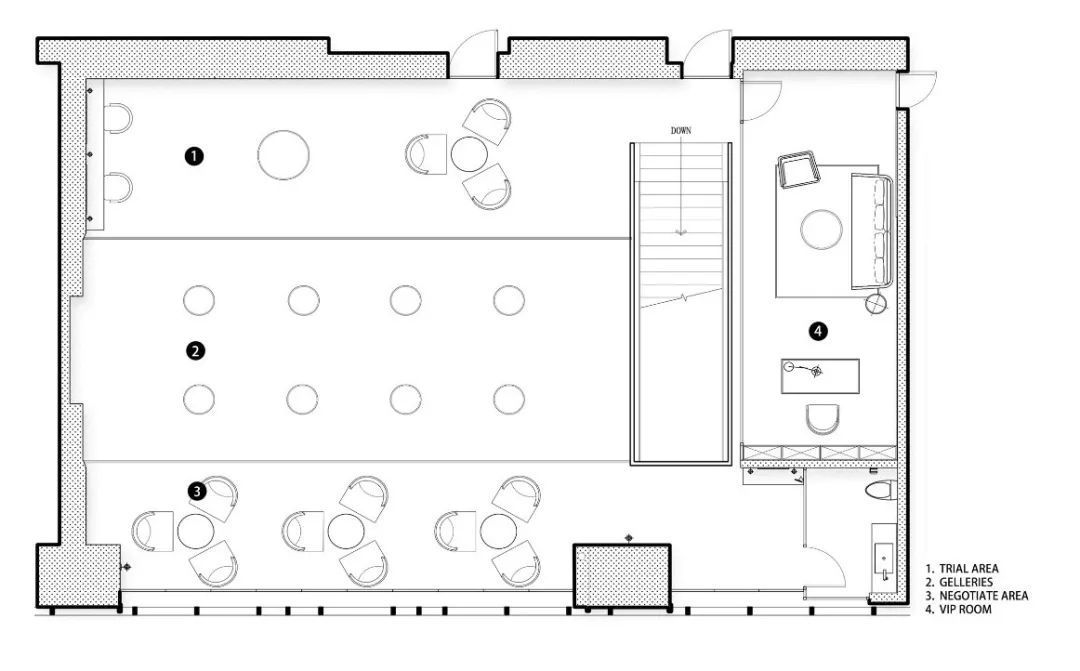
SEEING与闻珠宝是一家集合众多优秀珠宝设计师作品的珠宝店,比起展现珠宝的奢华,更多的是展现每件作品背后的故事,也赋予珠宝特殊意义。为了更好的呈现珠宝背后的故事,我们将空间整体分为两层。
一层为大厅及影音室。大厅可看作缓冲区,悬挑的混凝土楼梯及来自天花的柔和顶光形成了独特的肃穆感,隔离外界干扰,引导顾客抛除杂念沉浸于空间中。
▲大厅-曲线中和混凝土的冷硬
▲影音室-使用形态的转换
二层空间形态灵感则来自于穹顶教堂,拱形造型吊顶在赋予空间宗教仪式感的同时增加视觉层高,配合大面积的胡桃木格栅及长绒地毯,构筑了利于交流的舒适环境,引导顾客参与到故事中。
▲空间形态-两边低中间高的穹顶造型
故事的形状
珠宝是容器,装着矢志不渝的故事,空间亦是容器,承载并引导着故事的发生。我们建了一座“教堂”,希望让故事与空间产生对话,并帮助顾客用珠宝定格故事的形状。
▼一层平面
▼二层平面
设计机构:武汉朴开十向设计事务所
空间设计师:熊天宇 张筱锴
设计执行:陆宏达 冯程程
项目地址:四川省 成都市 府城大道 仁和春天国际广场B座
项目面积:270m²
完工时间:2019.04
摄影:张筱锴
材料:混凝土涂料 / VALPAINT
金属饰面 / 大匠铸鼎金属定制
胡桃木地板 / UGAN concept
ROYALROUTE洛园
ROYAL ROUTE洛园,是一家主营皮肤管理的生物科技公司,2018年11月他们将办公室迁至位于汉街的环球国际大厦,很荣幸能被委托此次设计。
造了一条路,引你遇见梦中的自己
爱美之心人皆有之,洛园则希望能将愿望化作可能,为人们提供改变的机会。基于此愿景,我们对空间进行改造。在空间中置入一条显眼的“路”,连接每个不同的功能区块,这是从传统公共医疗空间中获得的灵感。目的是引导人们在空间中行进,充分了解并体验每一个项目,从而发现并认识到自己的无限可能。
磨去所有棱角,让空气流动
过于开放的场所让人紧张,而过于封闭的环境则使人沉闷。我们以大量的弧形元素替代直角转角,以色块代替隔墙来营造围合感,以装饰性的导视标识代替冰冷的文字,这些都是为了塑造一个舒适柔和的空间氛围。
特制的蓝绿色涂料,奠定了清新的基调。墙上的圆形窗洞,能引导视线并提升通透性和层次感,让薄荷味的风灌满空间。
▼平面图
设计机构:武汉朴开十向设计事务所
空间设计师:熊天宇 张筱锴
设计执行:陆宏达 冯程程 舒心慰
项目地址:武汉市武昌区环球国际大厦
项目面积:175平米 完工时间:2018.11
摄影:张筱锴
材料:地坪漆、冲孔折板
水磨石-TERAZO 乳胶漆-BENJAMIN MOORE 照明-SIKI
JOY BOX盒里
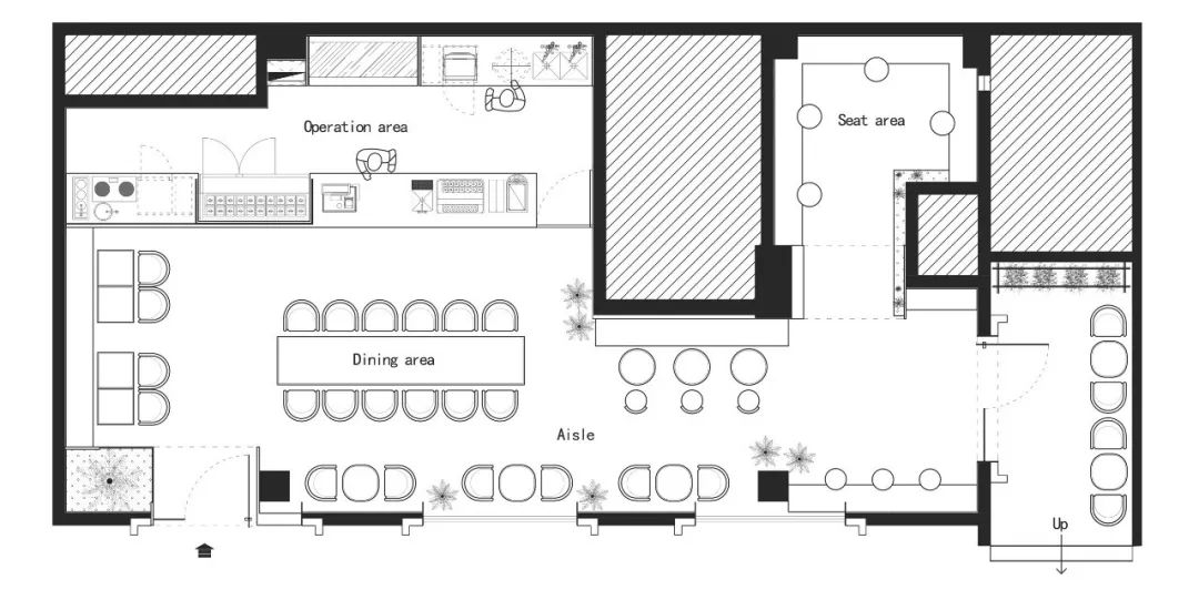
本店位于武汉天地壹方一楼核心位置,总面积70㎡,南北两侧均为展示面,沿街面为5m高的落地玻璃。如何在延续其品牌记忆元素之上,因地制宜的在较小的空间中,保有空间的通透性,又不失层次感而显得平庸,迅速吸引顾客目光,是本次设计中的核心考量。
在原始场地中,街道入口及商场入口分别位于南北两侧,形成一个贯穿的通道。角落处有员工出入口。根据营业需求,备餐区只能位于员工出入口一侧。按照常规做法,即直接由客流动线的贯穿通道将餐厅分为左侧就餐区与右侧备餐区。而我们在思考本案时,将整体布局逆时针旋转23.7°。客流动线在吧台前形成一个折角,使人流在此处聚集。就餐区域也因此变大,能容纳更多的客户。
我们延续使用JOY BOX的品牌记忆点——大面积黑白格立体灯箱作为就餐区与备餐区的空间分隔,餐厅总空高6米,将品牌记忆点集中于点餐区,使关注点更为集中。同时利用灯箱照明最大程度地衬托出全透明的开放式厨房中新鲜食材的颜色以及色泽,几十种各色蔬菜水果罗列开来,视觉的刺激更调动顾客的食欲。
除此之外,在空间透视上,增加了视觉延伸感,使空间更富有层次。从沿街面角度看入店内,品牌昭示黑白格立体灯箱由单面视角转变为双面立体视角,更富有冲击感,增加了视觉吸引力。
个小桌之上对应配备一个长的铜吊灯,在空高6米的空间中,使视觉重心向下延伸,让空间开阔却不空旷
3米的长桌之上,定制2.6米的长条灯与之形成几何呼应关系
室内悬挂的LOGO发光字角度与地面就餐空间界线水平呼应,保持室内空间几何分隔一致,空间布局整齐
墙面装饰使用镜面几何,通过镜面增加空间延伸感,
室内多处使用圆弧元素,形成整体呼应
JOY BOX代表的是一种自然纯粹又时尚的品质生活理念,因此在主材料选择上,我们大面积运用了水磨石。水磨石是一种很传统的材质,将碎石、玻璃、石英石等骨料拌入水泥粘接料制成混凝制品后经表面研磨、抛光而制成。水磨石有两种做法,一种是现场现浇,另一种是工厂预制板材。受商场施工条件的限制,我们采用了预制板材。传统的石材,通过现代工艺的全新加工,可以做到既质朴纯粹又不失时尚与精致。
在两层3CM厚的水磨石板材之间采用黑色金属收边作为夹心,增加整体轻盈感与品质感,也看起来更精致。
所有水磨石边缘都做了1CM倒角处理,不仅保留了3CM厚度带来的雕塑感还增加了触感的舒适性
▼平面图
设计机构:武汉朴开十向设计事务所
空间设计师:熊天宇 张筱锴
项目地址:武汉市江岸区中山大道1515号
项目面积:70m²
完工时间:2018.05
摄影:张筱锴
材料:水磨石
SoJeez粟集
设计项目位于重庆弹子石老街,总面积130m²,周边历史建筑环绕,沿街面为三扇空高3.6米的拱形门洞。如何在结合去繁存简品牌态度的同时,发挥历史街区建筑优势,整合细碎空间保有空间的整体性,在使用较少装饰元素的条件下,保有层次感不失细节,提供良好用餐体验,是此次设计中的核心。
减法有层次,粗糙变细腻
粟集是一个倡导去繁存简轻松生活的轻食品牌,是由朴开十向的深度合作方“成都华航乐星餐饮管理有限公司”打造。我们基于他的品牌态度,提出“减法空间”的概念,既减去繁琐的装饰,保留建筑原始肌理,并通过人工开凿破环墙体表面,使粗糙感更突出,给予顾客最存粹的用餐氛围。在主材料选择上,我们选用光泽感较强的拉丝金属,与粗糙墙面形成强对比,丰富空间层次,并配合原木桌椅作为缓冲,弱化冲突感,优化空间体验。
混凝土、金属、原木、石材,这些质朴的粗加工材料在精心搭配组合后,也能显得层次丰富,细节精致。
将琐碎化为灵活
在原始场地中,空间曲折破碎,窗边的结构柱更是破坏了空间的视觉整体性。按照普通思路,会单一化座位形式,既大量设置软包卡座,在视觉上尽量显得规整。而我们将空间全部打碎,长桌、散座、卡座全部因景设坐,优先保障用餐者入座后的用餐体验。这使得空间富于变化,行走时和入座后体验完全不同。座位形式丰富,就餐形式也因此变得灵活,实际利用率随之上升,能容纳更多顾客。
光是最好的装饰
除了减去繁琐的装饰的“减法”,打破原有墙体也是一种选择。我们在狭长走道的尽头破开一扇拱门,引入更多的自然光线,赋予金属变幻的光影。还结合周边街景形成一个独特的借景窗口,提升用餐体验。
在空间造型上,也延续“减法”的概念,既回归到最简单的几何元素。无论是墙面上的矩形色块,还是贯穿空间的拉丝钢板,都是几何图形的重组与延续,使空间富有变化,增加视觉层次
金属圆桌和原木长椅的组合,使层次感一直延续到顾客入座后,让空间细腻丰满。
我们通过这次合作,想传达出一种新的看待问题的方式,同时它也是粟集所倡导的:去繁存简、返璞归真,卸下复杂的外壳,以最质朴的形态勇敢去面对生活的难题。
▼平面图
设计机构:武汉朴开十向设计事务所
空间设计:熊天宇 张筱锴
设计执行:陆宏达 姚睿博
编辑:冯程程
摄影:张筱锴
餐饮顾问公司:成都华航乐星餐饮管理有限公司
项目地址:重庆市南岸区长嘉汇购物公园L6-1
项目面积:130平米
完工时间:2018.10
材料:水磨石,不锈钢,风化木
投稿丨商务
丨
合作
阅读原文
客服
消息
收藏
下载
最近





































































