查看完整案例


收藏

下载
每当我在沙发上懒着,柔和的光总能透过窗帘的缝隙洒满我的身上,我想将光揉进生活,洒满家的每一处,从此与温柔共舞。
项目信息
Item Information
深圳·博林君瑞 x「桓普设计」
Shen Zhen. Bo Lin Jun Rui x Huan Pu Design
项目面积丨130㎡
Project area丨130㎡
项目风格丨现代简约
Project Style 丨 Modern Simplicity
项目设计丨深圳.桓普设计
Project Design Company 丨 ShenZhen. Huan Pu Design
“人活在世上,有的人活成了面子,有的人活成了里子。”本次作品在收纳储物方面会格外注重,并且会把各个空间的利用率最大化。虽然只有两人居住,但想要把生活过得精致,并非易事。真正的精致,是给生活做减法,让心灵回归理性。对生活抱以取其精华,去其糟粕的态度,过上一种极简又精致的生活。对本次作品的设计也是如此,期待实景落地后的精致成品。
本户型是一个三居室,常住人口只有男主人和女主人。在整体风格上,业主热衷于低饱和度的颜色,如浅灰色和浅燕麦色。整体颜色不用太杂,用少许亮色点缀显得温馨明亮即可。此次案例使用了大量木饰面,在选材方面也非常着重质感。由此可以看出男女主人对生活的态度:追求简单生活,不代表随意生活。
如何做到看起来简单但细看却有精心设计的感觉,是本次设计的宗旨。
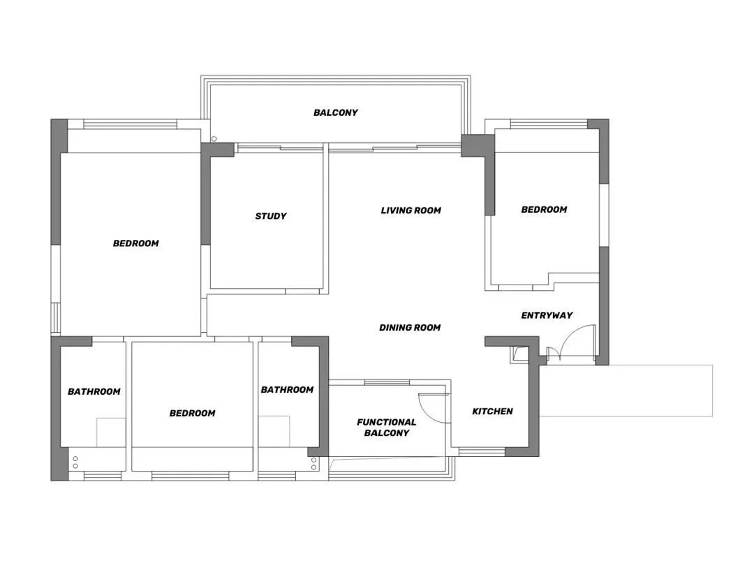
原始结构
Original structure diagram
· 玄关的采光相对于客餐厅弱一些,玄关内外都需要放置鞋柜,业主的储物需求非常高。
· 客餐厅的面积可以适当扩大,餐桌需要容纳 7-8 人且不影响过道及活动区域。
· 靠主卧的房间做成多功能房,未来可能作为儿童房使用,暂时灵活放置家具。
· 主卧需要有衣帽间和梳妆台,对衣服和化妆品的收纳有着重要求。
· 主卫需要放置独立式浴缸和两个盥洗盆,淋浴间的储物空间尽可能多。
设 计 概 念
Design concept
·将入户的卧室分一部分出来做成储物间,同时也扩大了客餐厅的面积。解决了玄关原本采光不足的问题,也满足了业主的储物需求。
·原书房的位置打通,做成了客厅,而餐厅位置挪到了原客厅的位置,同时增设了西厨区域。横厅的结构改成了竖厅结构,使得客餐厅的面积更加宽敞,动线更加分明。
·原功能阳台的位置做成了多功能房,且将墙体往外推至与厨房平齐,为保证以后作为儿童房使用时的活动空间够大。
·将靠主卧的次卧拆分出来,一部分纳入主卧空间,作为衣帽间使用,且放置梳妆台。
·另一部分纳入主卫,将主卫面积扩大,有足够空间放置浴缸、盥洗盆等。
设 计 效 果
Design effect diagram
感谢观赏
陶磊.Kirat
桓普建筑空间设计.
创始人
▼深圳桓普建筑空间设计
|专注于私宅项目改造|
|建筑 Architecture|住宅 House|改造 Creativity|
Mobile:15817406518
深圳市布吉南湾街道南新路 13-16 号南岭 1983 创意小镇 C5 栋 303
桓
HUANPU
DESIGN
往期精彩回顾
客服
消息
收藏
下载
最近






































