查看完整案例


收藏

下载
△点开视频食用更佳
项目地址:深圳宝安·QCC 前城天樽
设计风格:现代简约
建筑面积:185㎡
项目设计:深圳.桓普设计
主案设计:陶磊、黄伟杰
执行设计:李金龙、温贻略、李荣滔
#FREFACE
前言
原户型是一套 185㎡的四居平层复式,常住人口是一对完婚一年多的夫妻。女主人是一名美妆博主,考虑到她的职业需求和爱好,我们会更加注重实用性与美观度。因为女主人很喜欢木质品,所以家里会有很多木柜、木饰面等原木元素。除此之外,女主人还很喜欢养小动物,因此在设计的时候不仅会满足人的需求,也会让宠物们喜欢上这个家。
结合女主人的需求清单,如何在保持活动空间充足的前提下,最大化增加收纳储存空间是我们做这个作品的初衷。
#FLOOR PLAN
原始结构
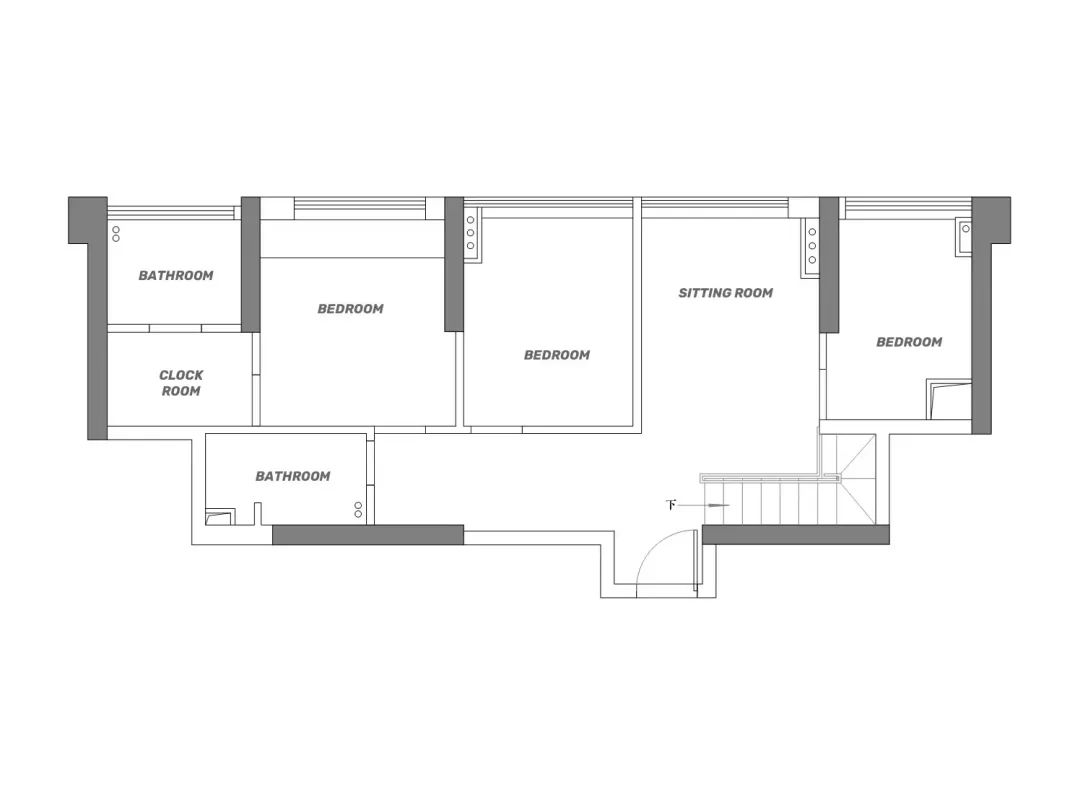
△F-1
❶客餐厅的空间有些局限,而阳台占地面积较大,没有太大的实际意义。
❷整体一层布局流线,对于只需要一间卧室的他们来说,显得有些许混乱。
△F-2
❶二层在不减少房间保证使用功能的前提下,尽可能的保持每个空间的宽敞舒适。
❷主卧需要一间超级衣帽间,满足无敌多的箱包、各种首饰、两个人的四季衣物和近百双的鞋子等等。同时还要兼顾美妆时的视频拍摄,所以对空间,储物,灯光都有特别的要求。
❸二层需要一个可以同时满足两人娱乐、剪辑修图还有能日常办公的大书房,且要能放下女主人大量盲盒手办、书籍等收纳空间。
❹女主人想在二层有个水吧,满足日常饮水。尽量不用为了喝水、泡咖啡等需求而上下楼梯的奔波。
#PLAN
方 案 设 计
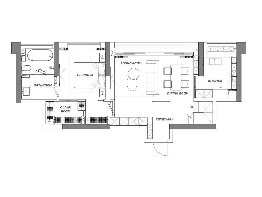
△F-1
❶将阳台往外推,扩大客餐厅的面积,增加公共活动空间。
❷一层卧室作为父母房使用,把公卫的面积纳入父母房,在原公卫的位置做成衣帽间。再将原衣帽间的位置与原次卫打通,做成干湿分离的卫生间。
❸玄关左侧和转角处都安装了置物柜,除此之外还安装了餐边柜、电视柜、厨房高柜,尽可能利用起各个角落,提升储物空间,达到能把东西都藏起来的效果。
△F-2
❶楼梯边的卧室在设计时是作为一个多功能房使用,在实景落地后业主新养了两只猫,便将其作为猫房使用。
❷考虑到阳台使用频率,在二层装了个小的生活阳台,放置洗衣机烘干机,满足基本的晾晒需求。
❸原本的起居厅改造成了开放式书房,平时可供业主办公学习,采光充足,营造出一个良好的工作环境。
❹楼梯上来左侧便是一个小型水吧,有一面展示柜,可以放置红酒香槟等。日常学习工作累了,还能在那小酌一杯。
❺通向公卫的过道也安装了一排储物柜,可以放置生活必需品或是一些收藏品,收纳做到了最大化。
❻主卧里藏了个大型衣帽间,最引人注目的就是那一长条的衣柜,可以放置大量衣服、包包、鞋子等。还有一张开合式化妆桌,充分满足了女主人的职业需求。
#EFFECT
设 计 效 果
#01
「 玄 关 」
Entryway
△玄关左侧鞋柜
玄关鞋柜运用了木质材质和大理石的拼接,提升了层次感与设计感。柜子里还能放置出门必备的东西,如充电宝、遛狗用到的工具等,大大节省了出门的准备时间。
△从玄关看向客餐厅
玄关与客餐厅之间立了一幅屏风,起到隔断的作用,既朦胧优雅又不沉闷,阳光透过格栅呈现出一种朦胧之美。
#02
「 餐 厅 」
Dining Room
△从楼梯看客餐厅
餐桌选用了一张大理石岩板桌,配上马鞍皮质餐椅,用餐的仪式感瞬间拉满了。
餐桌旁还设计了一个餐边柜,中间是展示柜,可放置咖啡机、苏打水机器等。而上下都是储物柜,放一些狗狗罐头等。
#03 「 厨 房 」 Kitchen ▼
餐桌旁就是厨房,进门右侧是蒸烤箱,再往里走能看到边上很多柜子。只要我不说,你肯定不知道这里放了嵌入式冰箱,不仅节省空间还很美观。灶台使用的是黑色岩板,看起来更时尚高级。
#04 「 客 厅 」Living Room ▼
在购置软装的时候,业主挑了一款灰色沙发,头部可调节至与头部平齐,日常看电视时可以防止葛优躺。
电视柜也是用了拼接设计,是仿大理石的木质柜子与木纹拼接,使得空间不那么单调。
电视上的柜子主要是放置零食等日常在客厅会使用到的用品,放眼望去,东西很少也非常整洁干净。这就达到了业主的基本需求——想让所有东西都能藏起来。
△从餐厅看客厅
走廊旁看着全是木板,其实全是柜子。柜子里放置各种杂物,如生活必需品、男主人的钓鱼装备、狗狗的口粮、用品等。电视柜左侧是一扇隐形门,能与墙面及电视柜完整的融合在一起,形成一个整体。
#05
「 父 母 房 」
Parent Bedroom
父母房使用了大量木饰面,床头设置了氛围灯,营造出温馨舒适的休息环境。
入门处有一扇小小的格栅,有一定的设计感,还能为居住者带来稍许安全感。
门旁边还有一个步入式小型衣帽间,方便衣物收纳。
床品选择了与木饰面相配的棕灰色,很适合长辈居住,有种独特稳重的气质。
次卫采用干湿分离,盥洗区分体盆用的是黑色岩板,与灰色墙面相辅相成。这里的盥洗盆用的是暗埋龙头,这个“盆”不像传统盥洗盆能储水,因为它是一个斜面,看起来更加精致漂亮。干区湿区都有设计壁龛,可以放置洗浴用品和护肤品。
#06
「 多 功 能 房 」
Multi Function Room
△楼梯
△楼梯拐角处的多功能房
业主把这里暂时作为猫房,养了两只非常可爱的小猫。这个天花特地做成了小屋顶的感觉,有点童趣感,设计灵感源自于他们两在美国留学时的阁楼,以后也可作为儿童房的备用。我们还做了一个榻榻米的设计,木板底下是抽拉式储物抽屉,目前是拿来放置猫猫使用的物品。边上的展示柜拿来放业主的另一群宠物——寄居蟹,简直就是动物的天堂。
#07
「 书 房 」
Study
从楼梯一上来就可以看到这个开放式书房,首映眼帘的就是女主人的盲盒墙,为简洁的空间带来了一抹可爱色彩。书房旁有个生活阳台,不仅有洗衣机烘干机,还有自动晾衣架,满足了日常盥洗需求,同时也增加了书房的无限采光。
书房对着的就是一个小型水吧,业主特别喜欢这个像音箱的小冰箱。它作为一个冰箱,除了可以冷藏,还能起到一个装饰的作用。可以看到有大面展示柜,主要是放置红酒香槟等。工作学习之余,还能在这小酌一杯,真是浪漫人生的惬意瞬间。
#08
「 公 卫 」
Public Bathroom
公卫的盥洗盆与一层次卫的盥洗盆是一样的,采用斜面设计,视觉上达到满足。采用镜柜设计,依旧是无处不在的柜子,丝毫不担心没地方收纳。
#09
「 主 卧 」
Main Bedroom
主卧床头做了一个格栅板与黑色岩板的拼接,设计感满满。暗藏灯带给卧室带来氛围感,增添舒适度。床对面还做了一个可伸缩投影幕布,在床上看电影真的太舒服了。
#10
「 衣 帽 间 」
Cloak Room
△从主卧进入衣帽间
本次案例亮点莫过于是主卧的超级衣帽间,进门右侧是一张长条化妆桌。看起来平平无奇,其实这张桌是一种翻盖式梳妆台。打开之后有一面带灯的镜子,而桌子内部就是可以放置日常会使用到的化妆工具和化妆品。
再看向桌子旁边的那一整块亚克力展示柜,里面放的全是美妆用品。划重点,全部按类别分好了,不得不感叹一下女主人的收纳能力,赞不绝口。
入门左侧是一排柜子,包括隐藏木柜和亚克力展示柜。一路走到尽头,可以看到亚克力展示柜里放着女主人华丽的包包,还有男主人摆放整齐的球鞋。简直就是收纳界的明星阵容,好看又实用!
亚克力收纳柜除了满足基本的收纳功能之外,还有展示功能。柜子里还设计了会亮灯的功能,美观又方便。
#11
「 主 卫 」
Main Bathroom
主卫没有安装浴缸,采用的是淋浴房设计,节省空间。墙面用的是木纹瓷砖,迎合了业主喜欢的原木元素。细看会发现盥洗盆右侧是一面柜子,主要放置大量护肤品囤货,起到分类收纳的作用。而镜柜里主要放置日常会使用到的护肤品,不会因为放置在盥洗盆上而显得乱糟糟。
#END
后 记
“收纳用品给了人的囤积癖以正当性,有了收纳用品你就有理由填满它,最好的收纳方法是把需要被收纳的东西精简、扔掉。”
如果要为这个作品取个名字,我愿称其为柜子之家。从玄关进入就会发现无处不在的柜子,这对于强迫症患者来说简直就是一个 Dream home!任何东西都有它的归属地,整整齐齐的让人极度舒适。虽然在这个案例的装修过程中出现了很多小插曲,但好在最后都能顺利解决。
可能有人会觉得把所有东西都藏起来会没有生活的气息,但他们家可是有三只狗三只猫的呀!撸猫遛狗的幸福感,就是他们的专属人间烟火气。
陶磊.Kirat
桓普建筑空间设计.创始人
▼深圳桓普建筑空间设计
|专注于私宅项目改造|
|建筑 Architecture|住宅 House|改造 Creativity|
Mobile:15817406518
weibo:桓普设计
深圳市布吉南湾街道南新路 13-16 号南岭 1983 创意小镇 C5 栋 303
桓
HUANPU
DESIGN
往期精彩回顾
桓普设计|用爱缀起满天星光,与你度过一日二人三餐四季
点击图片查看原文
桓普设计|预告·用精致的态度过上极简生活
点击图片查看原文
桓普设计|预告·刚柔并济的极简风
点击图片查看原文
客服
消息
收藏
下载
最近
















































