查看完整案例


收藏

下载
「 前 言
」
阳光栖息的窗台,暖意融融。
四人一屋的小日子,时光渐渐。
「南山 · 香山美墅果岭」 x「桓普设计」
项目面积丨176㎡
项目风格丨现代简约
项目设计丨深圳.桓普设计
主案设计丨陶磊、黄伟杰
执行设计丨麦庭宇、李金龙、龚林辉
软装指导丨瓦特空间
摄影团队丨南木摄影
透过玻璃撒进柔软的光,在空间留下的影迹,随着时间的推移而变化,如一杯淳厚的酒,在不同时刻有着不一样的口感。
大理石冷峻的姿态让空间透着沉稳,木的暖意与之交融,平衡整个空间。
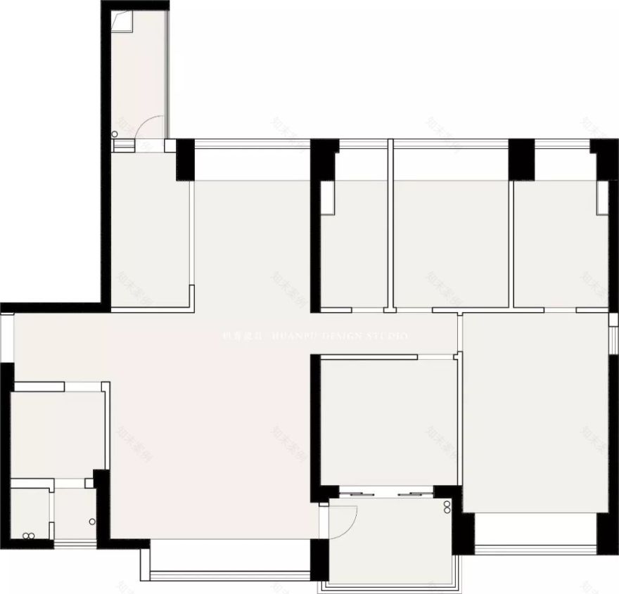
「 原 始 结 构 」
「 方 案 设 计 」
修正零散的小空间,提升空间利用率,厨房外移,放大餐厅空间,增加西厨区,即让空间变得宽敞明亮又不浪费空间使用功能。
入户保姆房打通,作为书房及临时客房使用,翻板床无疑是好用物,即收纳方便,又不失美观。
空间的设计使用有千万种,唯有贴近生活为最佳,我们对生活的理解与诠释,便是具有温度的设计。
「 设 计 效 果 」
「
玄 关 vestibule
」
▼
多功能房的使用空间有限,巧用翻板床,让空间利用率更大。
「
客 厅 Living Room
」
▼
简质空间,客厅大面积的大理石,与木饰面的碰撞,搭配冷色系沙发,使整个空间成熟稳重,又不失一些木质带来的轻与暖。
「
餐 厅 Dining room
」
▼
我们过着一加一等于四的小日子,
一日三餐都是家该有的模样。
「
厨 房 Kitchen
」
▼
年轻时你总说烹饪太复杂,
成为了妈妈后的你,
却不厌其烦的为孩子做美味的便当。
「
主 卧 Master BedRoom
」
▼
你带着暖意,扑向了我。
如同栖息在窗台上的光。
与影交织并存,恰似你的温柔。
「
卫 浴
Bath Room
」
▼
墙地同色,干净利落。
「
次 卧 Second BedRoom
」
▼
男孩长大的过程需要勇气更需要坚定,
新家落成的第一天,
你告诉我们,你喜欢这个房间且必须住进来。
「
儿
童 房
Children’s BedRoom
」
▼
愿你依旧拥有清澈如水的眼眸,
永远做着粉色的美梦。
「 花 絮 」
「 心 得 」
七年前认识的D哥和L姐,那会男孩很小,为他们设计的第一套房子,现在仍保持原样。
七年后D哥和L姐又有了可爱的女孩,再次为他们设计新家。
时光荏苒,他们见证了我的成长,包容了我曾经的稚嫩,亦再次将家托付于我。
感谢D哥与L姐七年前的信任支持,七年后依旧选择我们!
陶 磊 . Kirat
桓普建筑空间设计
.
创始人
▼
深圳桓普建筑空间设计
| 专 注 于 私 宅 项 目 改 造 |
| 建 筑 Architecture | 住 宅 House | 改 造 Creativity |
Mobile :15817406518
深圳市布吉南湾街道南新路13-16号南岭1983创意小镇C5栋303
过 往 案 例
客服
消息
收藏
下载
最近

















































